Maison 115m² à menars

— Menars 41500 —
82 000 €
115 m² / 235 m²
5 pièces
jardin

MENARS - MAISON DE BOURG A RÉHABILITER

Située dans le centre bourg de Menars à proximité des commerces et de la Loire, cette maison de bourg d'environ 115 m² habitables offre un beau potentiel après travaux de réhabilitation.
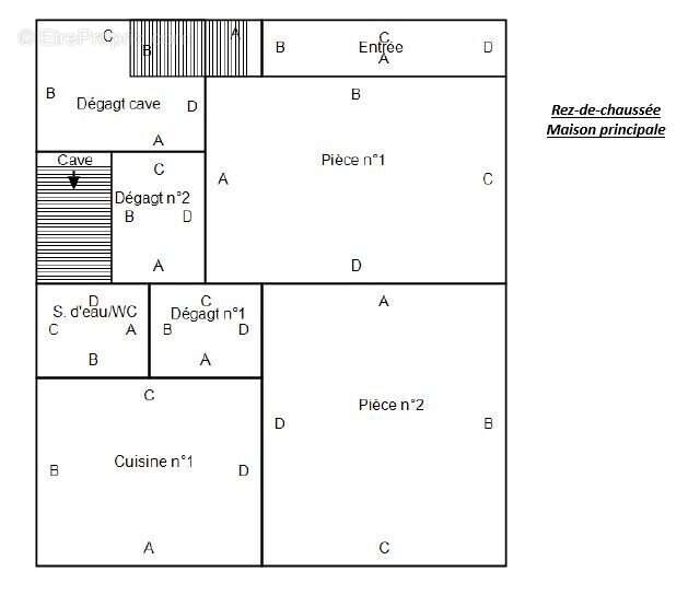
En rez-de-chaussée, un premier plateau de 75 m²: Entrée sur rue, cuisine, 2 pièces, salle d'eau.
Au premier étage: cuisine, 3 pièces, grenier, ancien wc.
Au deuxième étage: grenier.
L'accès au premier étage et au grenier peut se faire depuis la rue sans passer par le logement du rez-de-chaussée.
Cave sous partie.
Petite dépendance.
Terrain clos de murs de 235 m².

Aucun système de chauffage à ce jour.
Maison raccordée à l' eau et l'électricité .

Les honoraires sont à la charge de l'acquéreur.
82 000 € FAI dont 7 000 € à la charge de l'acquéreur soit 8.54 % du prix net vendeur
Prix hors honoraires : 75 000€.
Honoraires à la charge de l'acquéreur : 7 000 €


Non soumis au DPE. Les informations sur les risques auxquels ce bien est exposé sont disponibles sur le site Géorisques : georisques.gouv.fr.
Voir plus

Référence: 1468-AB-FMCONSEIL
Honoraires à la charge de l'acquéreur.
Barème des honoraires

Prêt immobilier

Vous souhaitez connaître votre capacité d’emprunt et trouver le meilleur crédit immobilier ?
Réaliser une simulation gratuite

Maison à MENARS
Maison à MENARS
Maison à MENARS
Maison à MENARS
Maison à MENARS
Maison à MENARS
Maison à MENARS
Maison à MENARS
Maison à MENARS
Ce site est protégé par reCAPTCHA la Politique de confidentialité et les Conditions d’utilisation de Google s’appliquent.
Obtenir un prêt immobilier au meilleur taux ?

En poursuivant votre navigation sans modifier vos paramètres, vous acceptez l'utilisation de cookies susceptibles de réaliser des statistiques de visite. Cliquez ici pour plus d'informations