Bénéficiez des services de nos partenaires locaux soigneusement sélectionnés
pour vous accompagner dans votre parcours d'achat immobilier

Appartement fréjus 3 pièce(s) 61.57 m2 idéal investisseur

— Frejus 83600 —
275 000 €
61 m²
3 pièces
parkingbalcon/terrasseascenseurpiscine

Nos partenaires locaux
A vendre appartement à fort potentiel d'investissement
Emplacement recherché, opportunité rare !

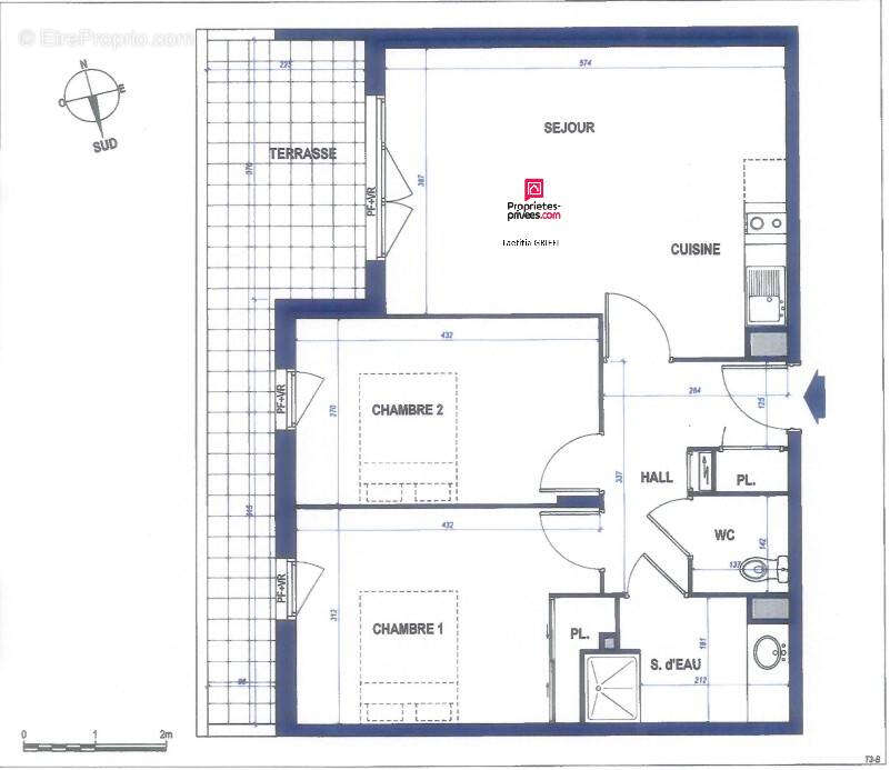
Fréjus quartier Valescure appartement T3 de 61.57m2 au 4ème et dernier étage avec ascenseur.
Situé au coeur d'un quartier dynamique, cet appartement représente une opportunité idéale pour un investissement (des loyers sécurisés versés tous les mois que votre bien soit occupé ou non, nets de charges courantes, sans souci de gestion et d'entretien). Vous pouvez même investir dans une autre région que celle de votre résidence principale, sur un marché réel, porteur, et bénéficier de nombreux avantages fiscaux afin de défiscaliser une partie de vos impôts ou percevoir des revenus peu ou pas imposables.
Ce bien se situe dans une résidence Séniors offrant un cadre de vie idéal aux personnes de 60 ans et plus, désireuses de vivre plus sereinement tout en conservant leur indépendance.

Description :
Bel appartement 3 pièces comprenant un hall avec placard, une pièce à vivre climatisée de 23m2 avec cuisine aménagée , deux chambres avec placard de 13.24m2 et 11m2, une salle d'eau aux normes PMR, 1 WC. Une place de parking en sous-sol fermé complète ce bien.
Toutes les pièces donnent sur une terrasse de 14.49m2 avec store exposée sud-ouest sans vis-à-vis.
Volets roulants électriques, double vitrage PVC, fibre.
La résidence possède une piscine, une salle de sport, un restaurant, un bar, un salon et un espace beauté.

Cet appartement se situe à 5 minutes en voiture de la plage et proches de toutes les commodités : arrêt de bus et commerces à moins de 500m. Navette directe pour la plage.
Taxe foncière : 1222 euros
Charges de copropriété : 260 euros par mois incluant des services à la personne.
Prix : 275000 euros
Honoraires à la charge du vendeur

DPE C / GES A
Montant estimé des dépenses annuelles d'énergie pour un usage standard entre 594 euros et 804 euros euros indexées sur l'années 2021.

Un investissement intelligent dans un secteur en plein essor.
Ne laissez pas passer cette opportunité de faire fructifier votre patrimoine !
Pour visiter et vous accompagner dans votre projet, contactez Laetitia GRIFFI, au [Coordonnées masquées] ou, par courriel à [Coordonnées masquées].
Selon l'article L.561.5 du Code Monétaire et Financier, pour l'organisation de la visite, la présentation d'une pièce d'identité vous sera demandée.
Cette présente annonce a été rédigée sous la responsabilité éditoriale de Laetitia GRIFFI agissant en qualité de conseiller immobilier indépendant sous portage salarial auprès de SAS PROPRIETES PRIVEES, au capital de 44 920 euros, ZAC LE CHÊNE FERRÉ - 44 ALLÉE DES CINQ CONTINENTS 44120 VERTOU; SIRET 487 624 777 00040, RCS Nantes. Carte Professionnelle Transactions sur immeubles et fonds de commerce (T) et Gestion immobilière (G) n°CPI 44[Coordonnées masquées]10 388 délivrée par la CCI Nantes - Saint Nazaire. Compte séquestre n°3[Coordonnées masquées] BPA SAINT-SEBASTIEN-SUR-LOIRE (44230). Garantie GALIAN-SMABTP - 89 rue de la Boétie, 75008 Paris - n°28137 J pour 2 000 000 euros pour T et 120 000 euros pour G. Assurance responsabilité civile professionnelle par GALIAN-SMABTP n° de police 28137.J

Mandat réf : 411286 - Le professionnel garantit et sécurise votre projet immobilier.
Copropriété de 198 lots ().

Charges annuelles : 7200 euros.
Les informations sur les risques auxquels ce bien est exposé sont disponibles sur le site Géorisques : www. georisques. gouv. fr
Voir plus

Référence: 411286LGRI
Bien en copropriété. Nombre de lots : 198. Charges de copropriété : 600 €.
Honoraires à la charge du vendeur.
DPE
A
B
C
D
E
F
G
GES
A
B
C
D
E
F
G

Prêt immobilier

Vous souhaitez connaître votre capacité d’emprunt et trouver le meilleur crédit immobilier ?
Réaliser une simulation gratuite

Appartement à FREJUS
Appartement à FREJUS
Appartement à FREJUS
Appartement à FREJUS
Appartement à FREJUS
Appartement à FREJUS
Appartement à FREJUS
Appartement à FREJUS
Appartement à FREJUS
Appartement à FREJUS
Appartement à FREJUS
Appartement à FREJUS
Appartement à FREJUS
Ce site est protégé par reCAPTCHA la Politique de confidentialité et les Conditions d’utilisation de Google s’appliquent.
Obtenir un prêt immobilier au meilleur taux ?

En poursuivant votre navigation sans modifier vos paramètres, vous acceptez l'utilisation de cookies susceptibles de réaliser des statistiques de visite. Cliquez ici pour plus d'informations