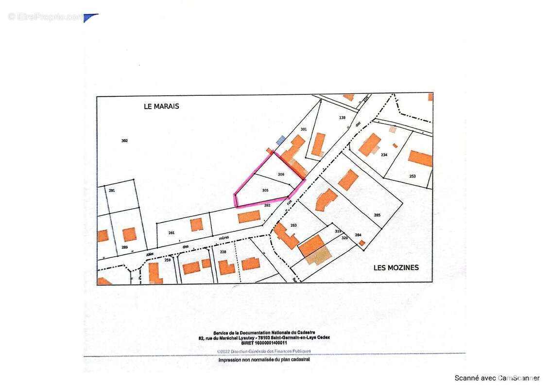
Terrain 1345m² à mons

— Mons 63310 —
35 000 €
1 345 m²

Iad France - Loïc Hernandez vous propose : Opportunité à Mons : Terrain à bâtir de 1345 m²

À la recherche d'un terrain pour construire votre maison ? Ce terrain de 1345 m² situé à Mons est fait pour vous !
Dans un cadre calme et verdoyant, il offre l'espace idéal pour un projet sur mesure : grande maison, jardin, terrasse... tout est possible.

Situation idéale : proche des commerces, écoles et axes routiers, dans une commune dynamique.
Libre de constructeur : concevez votre projet selon vos envies, les viabilités passent le long du terrain.

Ne laissez pas passer cette belle opportunité ! Contactez-moi pour en savoir plus ou planifier une visite.

Honoraires d'agence à la charge du vendeur.
Bien non soumis au DPE. Les informations sur les risques auxquels ce bien est exposé, y compris l'obligation légale de débroussaillement, sont disponibles sur le site Géorisques : http://www.georisques.gouv.fr.
La présente annonce immobilière a été rédigée sous la responsabilité éditoriale de M Loïc Hernandez mandataire indépendant en immobilier (sans détention de fonds), agent commercial de la SAS I@D France immatriculé au RSAC de CLERMONT FERRAND sous le numéro 428810550, titulaire de la carte de démarchage immobilier pour le compte de la société I@D France SAS.
Informations LOI ALUR :
Honoraires charge vendeur. (gedeon_6727_31435654)
Voir plus

Référence: 1788708
Honoraires à la charge du vendeur.

Prêt immobilier

Vous souhaitez connaître votre capacité d’emprunt et trouver le meilleur crédit immobilier ?
Réaliser une simulation gratuite

Photo 1 - Terrain à MONS
Photo 1
Photo 2 - Terrain à MONS
Photo 2
Photo 3 - Terrain à MONS
Photo 3
Ce site est protégé par reCAPTCHA la Politique de confidentialité et les Conditions d’utilisation de Google s’appliquent.
Obtenir un prêt immobilier au meilleur taux ?

En poursuivant votre navigation sans modifier vos paramètres, vous acceptez l'utilisation de cookies susceptibles de réaliser des statistiques de visite. Cliquez ici pour plus d'informations