Bénéficiez des services de nos partenaires locaux soigneusement sélectionnés
pour vous accompagner dans votre parcours d'achat immobilier

Terrain 1018m² à la tour-de-salvagny

— La Tour-De-Salvagny 69890 —
275 000 €
1 018 m²
parkingbalcon/terrassepiscine

Nos partenaires locaux
Nouveauté signée Lilian TOMMASINI !
L'agence Dufossé Immobilier de La Tour-de-Salvagny vous présente une opportunité :
dernier lot disponible sur le secteur résidentiel de Fontbonne, au calme absolu, à proximité immédiate du centre, des écoles et des transports TCL.
Découvrez ce magnifique terrain plat, libre de constructeur et hors lotissement, d'une superficie de 1 018 m².
Les viabilités sont en bordure, et le coefficient d'emprise au sol (CES) de 20 % permet d'ériger jusqu'à 203 m² de surface au sol.
Ce bien offre la possibilité de réaliser :
une villa familiale d'exception, ou
un projet mixte de deux maisons jumelées, idéal pour un usage familial ou locatif.
Le projet de construction (permis de construire validé et purgé)
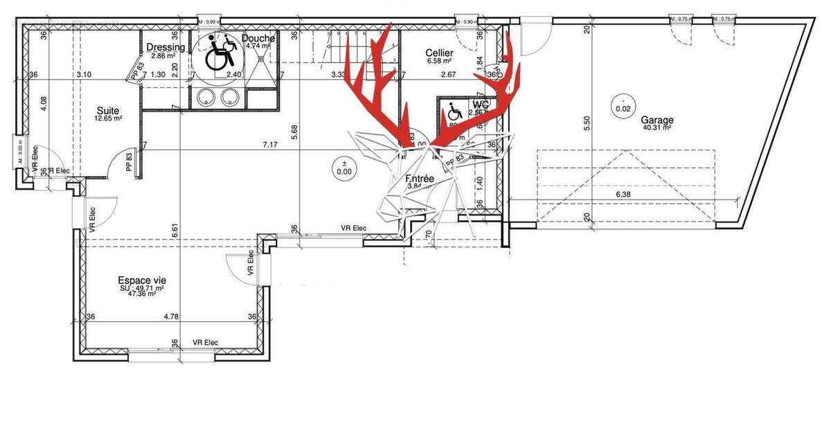
Le terrain est vendu avec un permis de construire validé et purgé de tout recours, permettant la réalisation immédiate d'une maison contemporaine à toit plat, d'une surface habitable de 145 m² (extensible jusqu'à 200 m² selon le CES), accompagnée d'un garage double de 40 m² et d'une piscine 6x4 m.
Agencement prévu :
Rez-de-jardin :
Entrée avec dressing
WC séparé
Buanderie avec accès direct au garage double
Grande pièce de vie d'environ 50 m², ouverte sur la terrasse et le jardin plein sud
Suite parentale de 20 m² avec salle d'eau privative et accès direct à la piscine.
Étage :
Bureau indépendant de 7 m² (idéal télétravail)
Trois chambres d'environ 12,5 m² chacune
Salle de bains de 7 m² avec baignoire, douche, double vasque et WC
Les atouts :
Terrain plat de 1 018 m², libre de constructeur et hors lotissement
Permis de construire validé et purgé, prêt à construire
Emprise au sol de 20 % (soit jusqu'à 203 m² possibles)
Piscine prévue de 6x4 m
Quartier Fontbonne
Accès rapide à Techlid, Écully, Lyon 9e et A89
Projet architectural haut de gamme, alliant modernité, confort et luminosité.
Un terrain à La Tour-de-Salvagny, parfaitement proportionné et idéalement orienté.
Son permis validé pour une maison contemporaine avec piscine en fait un projet clé en main, sans contrainte administrative.
Vous pouvez taper 'Lilian TOMMASINI' dans votre moteur de recherche pour découvrir l'ensemble des biens que je propose.
Professionnel ancré sur le secteur, je vous accompagne dans :
l'estimation de votre bien sous 48h,
le conseil en financement via un courtier de confiance,
ou la mise en relation avec un architecte et un constructeur pour votre projet.
Contactez-moi pour plus d'informations ou organiser une visite :
Lilian TOMMASINI - O7 88 99 35 55
Dufossé Immobilier - La Tour-de-Salvagny
'Qui mieux qu'un Tourellois pour vous accompagner dans vos projets immobiliers ? '
L'immobilier Passion Lilian TOMMASINI [Coordonnées masquées] [Coordonnées masquées].
Informations LOI ALUR :
Statut du négociateur : Agent immobilier.
Honoraires charge vendeur. (gedeon_5278_31442800)
Voir plus

Référence: 12660
Honoraires à la charge du vendeur.

Prêt immobilier

Vous souhaitez connaître votre capacité d’emprunt et trouver le meilleur crédit immobilier ?
Réaliser une simulation gratuite

Photo 1 - Terrain à LA TOUR-DE-SALVAGNY
Photo 1
Photo 2 - Terrain à LA TOUR-DE-SALVAGNY
Photo 2
Photo 3 - Terrain à LA TOUR-DE-SALVAGNY
Photo 3
Photo 4 - Terrain à LA TOUR-DE-SALVAGNY
Photo 4
Photo 5 - Terrain à LA TOUR-DE-SALVAGNY
Photo 5
Photo 6 - Terrain à LA TOUR-DE-SALVAGNY
Photo 6
Photo 7 - Terrain à LA TOUR-DE-SALVAGNY
Photo 7
Ce site est protégé par reCAPTCHA la Politique de confidentialité et les Conditions d’utilisation de Google s’appliquent.
Obtenir un prêt immobilier au meilleur taux ?

En poursuivant votre navigation sans modifier vos paramètres, vous acceptez l'utilisation de cookies susceptibles de réaliser des statistiques de visite. Cliquez ici pour plus d'informations