Bénéficiez des services de nos partenaires locaux soigneusement sélectionnés
pour vous accompagner dans votre parcours d'achat immobilier

Rosteig - maison de 123 m² sur un terrain de 9,59 ares

— Wingen-Sur-Moder 67290 —
166 000 €
123 m² / 959 m²
6 pièces
parkingbalcon/terrassejardin

Nos partenaires locaux
Découvrez cette charmante maison familiale de 123 m², qui dispose de 5 pièces et sont terrain de 9,59 ares composé d'une partie plane et d'une autre partie en pente prononcée, idéalement située à ROSTEIG. Nichée dans un village paisible entouré de forêts, cette propriété bénéficie d'une belle luminosité et offre une vue panoramique imprenable sur le village et la nature environnante.

Côté accessibilité, à seulement 5 minutes de Wingen-sur-Moder, où vous trouverez une gare, des commerces, des services et des professionnels de santé. Vous rejoindrez Ingwiller en moins de 15 minutes, Diemeringen en 20 minutes, Bouxwiller en 25 minutes et Strasbourg en 1 heure en voiture (ou 35 minutes en train).

Elle se compose comme suit :
Une entrée dessert une cuisine séparée dotée d'un conduit de cheminée et de nombreux rangements, un salon et une salle à manger avec un beau Kachelofe, une chambre, ainsi qu'une salle d'eau avec une douche et un toilette séparée.
À l'étage, un palier dessert une chambre avec placard de rangement, deux chambres donnant sur un balcon, une petite pièce d'eau avec un lavabo, un bureau, et trois petits greniers.
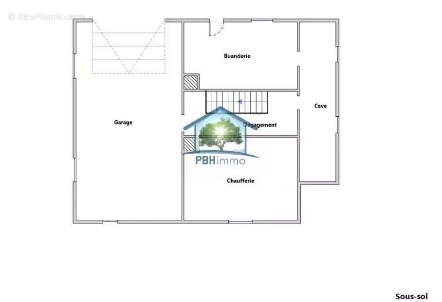
Le sous-sol comprend une buanderie/cuisine d'été, un cellier, une petite cave, une chaufferie avec un toilette et un garage.
Une vaste cour, un petit espace vert à l'avant, un jardin et un abri de jardin viennent compléter ce bien.

Chauffage central au fioul, un kachelofe, et un conduit de cheminée.

Les points +++ de ce bien : une maison familiale de 4 chambres dont une au rez-de-chaussée, spacieuse et lumineuse offrant une vue imprenable, bien entretenue, équipée de la fibre, dans un secteur paisible tout en restant proche des commodités.

Prix HAI : 166 000 € (dont 7% d'honoraires agence inclus, à la charge de l'acquéreur, 155 140 € net vendeur - Les honoraires agence à la charge de l'acquéreur limite les frais de notaire).

!!! Co-Exclusivité !!! « Cette maison vous est proposée en co-exclusivité par les agences PBHimmo et ERA immobilier de Schiltigheim. Vous pouvez contacter l'une ou l'autre de deux agences qui travaillent en partenariat pour ce bien. »

Contactez-moi pour plus d'informations et/ou pour organiser une visite :
Isabelle RUCH (EI) O6 73 77 8O 47 / [Coordonnées masquées]
agent commercial en immobilier, pour le réseau national PBHimmo
inscrite au Greffe du Tribunal de Grande Instance de Sarreguemines N° RSAC 802 309 369;
Mandat N°7915

Classe énergie : E indice290 ; climat : E indice 62.
Conso théorique estimée entre 2 170 € et 3 000 €/an indice 2021 (abonnements compris).


Les informations sur les risques auxquels ce bien est exposé sont disponibles sur le site Géorisques : www.georisques.gouv.fr
Voir plus

Référence: 7915
DPE
A
B
C
D
E
F
G
GES
A
B
C
D
E
F
G

Prêt immobilier

Vous souhaitez connaître votre capacité d’emprunt et trouver le meilleur crédit immobilier ?
Réaliser une simulation gratuite

Maison à WINGEN-SUR-MODER
Maison à WINGEN-SUR-MODER
Maison à WINGEN-SUR-MODER
Maison à WINGEN-SUR-MODER
Maison à WINGEN-SUR-MODER
Maison à WINGEN-SUR-MODER
Maison à WINGEN-SUR-MODER
Maison à WINGEN-SUR-MODER
Maison à WINGEN-SUR-MODER
Maison à WINGEN-SUR-MODER
Maison à WINGEN-SUR-MODER
Maison à WINGEN-SUR-MODER
Maison à WINGEN-SUR-MODER
Maison à WINGEN-SUR-MODER
Maison à WINGEN-SUR-MODER
Maison à WINGEN-SUR-MODER
Maison à WINGEN-SUR-MODER
Maison à WINGEN-SUR-MODER
Ce site est protégé par reCAPTCHA la Politique de confidentialité et les Conditions d’utilisation de Google s’appliquent.
Obtenir un prêt immobilier au meilleur taux ?

En poursuivant votre navigation sans modifier vos paramètres, vous acceptez l'utilisation de cookies susceptibles de réaliser des statistiques de visite. Cliquez ici pour plus d'informations