Bénéficiez des services de nos partenaires locaux soigneusement sélectionnés
pour vous accompagner dans votre parcours d'achat immobilier

A vendre barraine immo plouzane grande maison independante vie de plain pied secteur dellec ref : pz00257-th

— Plouzane 29280 —
299 900 €
150 m² / 1 016 m²
7 pièces
parkingbalcon/terrassejardin

Nos partenaires locaux
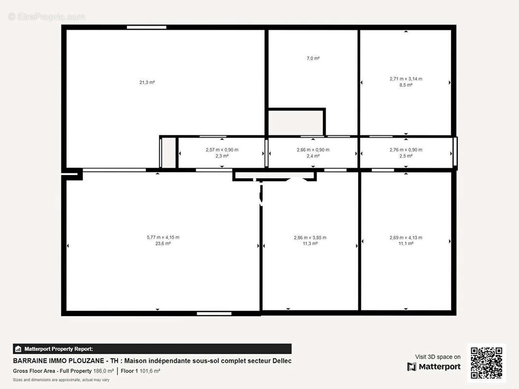
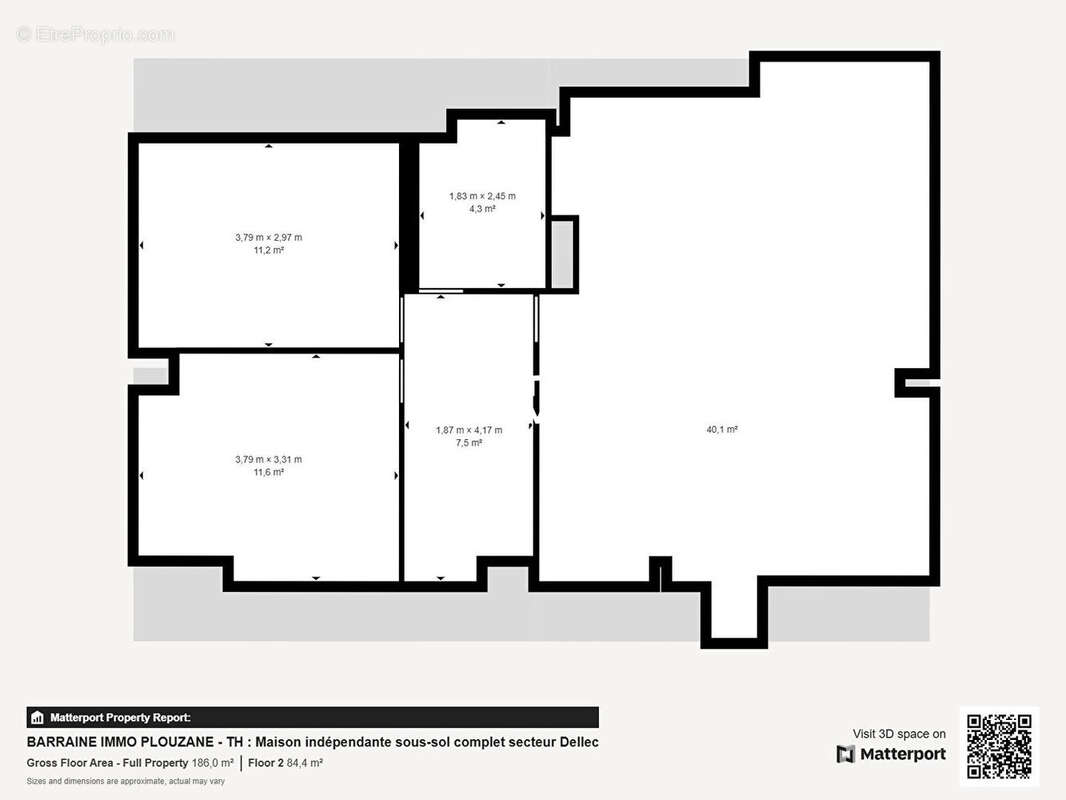
A VENDRE BARRAINE IMMO PLOUZANE GRANDE MAISON INDEPENDANTE VIE DE PLAIN PIED SECTEUR DELLEC ref : PZ00257-TH A vendre sur le littoral et à quelques kilomètres de Brest, à PLOUZANE (29280), Agence Barraine IMMO - Plouzané vous propose cette maison de 7 pièces au calme exposée nord-sud, de 120 m² et de 1 016 m² de terrain. Le rez de chaussée s'agence en un séjour exposé au sud de 24 m², cuisine ouverte de 21m², trois chambres de 8 m² à 11 m² et une salle de bains. Au premier étage, on trouve deux chambres de 11 m² et 12 m² , une salle de bains. Grand grenier à aménager à ce même niveau . La maison est équipée de radiateurs fonctionnant au gaz (chaudière récente) . De l'espace supplémentaire est apporté par un jardin et une terrasse. La maison est complétée par aussi un grenier et un sous sol complet . C'est une maison construite en 1972 de 3 niveaux. L'extérieur de la maison est en bon état mais l'intérieur nécessite d'être rafraîchi. Pour les véhicules, elle dispose d'un garage (deux places) et de stationnement dans l'allée. Cette maison se trouve dans un quartier calme. Plusieurs établissements scolaires (élémentaire, primaire et collège) y sont implantés, tout comme l'école École nationale d'ingénieurs de Brest à moins de 10 minutes à pied. Niveau transports, il y a la ligne de bus 52 (Faraday) à quelques pas de la maison. Les nationales N12, N165 et N265 et l'aéroport Brest-Bretagne sont accessibles à moins de 16 km. On trouve un tennis dans les environs. Qu'il s'agisse de classe énergie (175 kWh/m²/an) ou d'émissions de gaz à effet de serre (classe climat) (de l'ordre de 36 Kg CO2/m²/an), la notation est la même : D. Le montant estimé des dépenses annuelles d'énergie pour un usage standard s'élève entre 1 910 euros et 2 640 euros. Les informations sur les risques auxquels ce bien est exposé sont disponibles sur le site Géorisques : www.georisques.gouv.fr. Votre agence immobilière Agence Barraine IMMO - Plouzané vous invite à découvrir toutes les originalités de cette maison en vente en prenant rendez-vous avec l'un de nos conseillers immobilier. (5.23 % honoraires TTC à la charge de l'acquéreur.)
Voir plus

Référence: PZ00257-TH
Honoraires d'agence de 5.23% à la charge de l'acquéreur
Barème des honoraires
DPE
A
B
C
D
E
F
G
GES
A
B
C
D
E
F
G

Prêt immobilier

Vous souhaitez connaître votre capacité d’emprunt et trouver le meilleur crédit immobilier ?
Réaliser une simulation gratuite

Maison à PLOUZANE
Maison à PLOUZANE
Maison à PLOUZANE
Maison à PLOUZANE
Maison à PLOUZANE
Maison à PLOUZANE
Maison à PLOUZANE
Maison à PLOUZANE
Maison à PLOUZANE
Maison à PLOUZANE
Maison à PLOUZANE
Maison à PLOUZANE
Maison à PLOUZANE
Maison à PLOUZANE
Maison à PLOUZANE
Maison à PLOUZANE
Maison à PLOUZANE
Maison à PLOUZANE
Maison à PLOUZANE
Maison à PLOUZANE
Ce site est protégé par reCAPTCHA la Politique de confidentialité et les Conditions d’utilisation de Google s’appliquent.
Obtenir un prêt immobilier au meilleur taux ?

En poursuivant votre navigation sans modifier vos paramètres, vous acceptez l'utilisation de cookies susceptibles de réaliser des statistiques de visite. Cliquez ici pour plus d'informations