Maison de charme au cœur d’ambrières-les-vallées (53300)

— Ambrieres-Les-Vallees 53300 —
241 680 €
170 m² / 443 m²
8 pièces
balcon/terrassejardin

Maison de ville de charme à Ambrières-les-Vallées
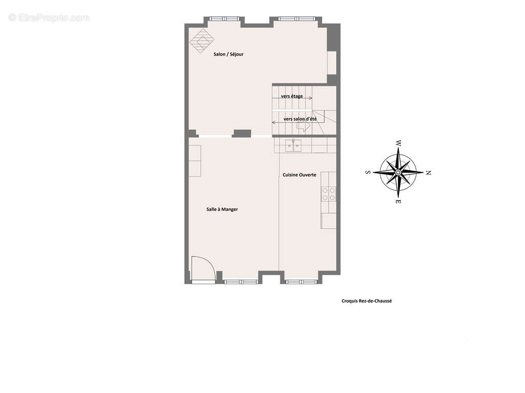
Nichée au cœur du bourg ancien d’Ambrières-les-Vallées, cette maison de ville mitoyenne déploie ses 170 m² habitables sur quatre niveaux, alliant le cachet de l’ancien à un confort chaleureux et fonctionnel.
Dès l’entrée, l’atmosphère se révèle : un bel escalier en bois massif, des volumes lumineux, un poêle à bois en cœur de salon, une cuisine américaine sur estrade pensée pour les moments conviviaux.
À l’étage, la chambre parentale dispose d’un dressing attenant. Une deuxième chambre, une lingerie et une salle de bains complètent ce niveau. Trois chambres supplémentaires et une salle d’eau occupent le second étage. Le grenier sur le tout offre un potentiel d’aménagement intéressant.
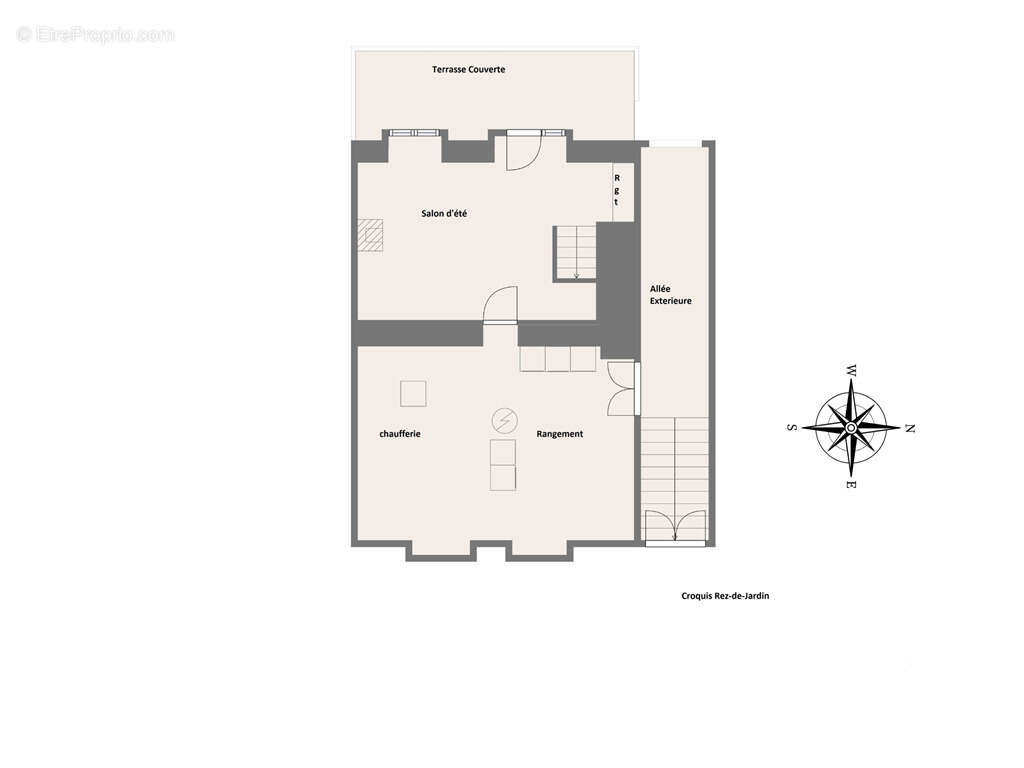
En rez-de-jardin, un salon avec cheminée, une chaufferie/atelier, un préau et un chalet de jardin prolongent agréablement l’espace de vie. Le tout s’ouvre sur une terrasse donnant sur un jardin clos et arboré de 443 m², avec vue et accès direct à la Varenne, rivière emblématique traversant la commune.
Chauffage central performant par chaudière à granulés en complément du poêle à bois.
Un bien rare, empreint de charme, où chaque niveau raconte une histoire. Idéal pour une vie de famille ou une résidence secondaire au calme, à deux pas de la nature.
Classe énergie : D, Classe climat :D Montant moyen estimé des dépenses annuelles d'énergie pour un usage standard, établi à partir des prix de l'énergie de l'année 2[Coordonnées masquées]3 : entre 2990 € et 4100 € / - /Les informations sur les risques auxquels ce bien est exposé sont disponibles sur le site Géorisques :www.georisques.gouv.fr / Prix :241 680 € / Honoraires à la charge du vendeur / Visite virtuelle guidée disponible / Conformément à l'article L. 561-5 du code monétaire et financière, la copie de la pièce d'identité de tous les visiteurs vous sera demandée avant toute visite / Pour visiter et vous accompagner dans votre projet, contactez Mme Christelle LEFRAIS, négociatrice au [Coordonnées masquées]. Plus d’informations sur notre site www.agencethom.fr
Voir plus

Référence: 1454
DPE
A
B
C
D
E
F
G
GES
A
B
C
D
E
F
G

Prêt immobilier

Vous souhaitez connaître votre capacité d’emprunt et trouver le meilleur crédit immobilier ?
Réaliser une simulation gratuite

Maison à AMBRIERES-LES-VALLEES
Maison à AMBRIERES-LES-VALLEES
Maison à AMBRIERES-LES-VALLEES
Maison à AMBRIERES-LES-VALLEES
Maison à AMBRIERES-LES-VALLEES
Maison à AMBRIERES-LES-VALLEES
Maison à AMBRIERES-LES-VALLEES
Maison à AMBRIERES-LES-VALLEES
Maison à AMBRIERES-LES-VALLEES
Maison à AMBRIERES-LES-VALLEES
Maison à AMBRIERES-LES-VALLEES
Maison à AMBRIERES-LES-VALLEES
Maison à AMBRIERES-LES-VALLEES
Maison à AMBRIERES-LES-VALLEES
Maison à AMBRIERES-LES-VALLEES
Maison à AMBRIERES-LES-VALLEES
Maison à AMBRIERES-LES-VALLEES
Maison à AMBRIERES-LES-VALLEES
Maison à AMBRIERES-LES-VALLEES
Maison à AMBRIERES-LES-VALLEES
Ce site est protégé par reCAPTCHA la Politique de confidentialité et les Conditions d’utilisation de Google s’appliquent.
Obtenir un prêt immobilier au meilleur taux ?

En poursuivant votre navigation sans modifier vos paramètres, vous acceptez l'utilisation de cookies susceptibles de réaliser des statistiques de visite. Cliquez ici pour plus d'informations