Bénéficiez des services de nos partenaires locaux soigneusement sélectionnés
pour vous accompagner dans votre parcours d'achat immobilier

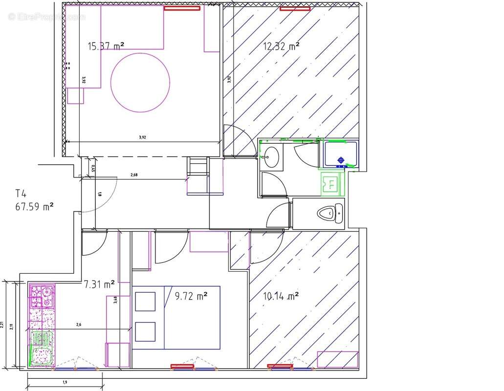
Appartement 65m² à grenoble

— Grenoble 38000 —
154 000 €
65 m²
4 pièces
ascenseur

Nos partenaires locaux
Exclusivité -A VENDRE- GRENOBLE - Je vous présente "CHAMPON" situé dans une copropriété, proche du Parc Paul Mistral et du cinéma Chavant. Dernièrement, avec ses trois belles chambres, il était destiné à la colocation (loyer 3X370€ HC) mais actuellement on peut en faire sa résidence principale. "CHAMPON" possède également une pièce de vie chaleureuse avec climatisation réversible, une cuisine équipée, une salle d'eau, un WC indépendant et une cave. Son emplacement est idéal car il se situe à 5 min à pied de l'hyper centre ce qui est un atout majeur. Le tram et le bus sont à ses pieds ainsi que toutes les commodités : écoles, écoles supérieures, collèges, lycées et conservatoire le tutoient pour faire de lui un élève studieux.
Venez rencontrer "CHAMPON" au plus vite !!

Pour plus de renseignements et toutes visites n’hésitez pas à contacter: Thomas MIARA o6 72724268/t.miara@ mon-nid-immobilier.fr
Le bien immobilier est soumis au statut de la copropriété.

La présente annonce est rédigée par un agent commercial mandataire immatriculé au Registre Spécial des Agents Commerciaux (RSAC) du tribunal de Commerce de Grenoble sous le n°809901986.
Voir plus

Référence: Champon-4803783

Prêt immobilier

Vous souhaitez connaître votre capacité d’emprunt et trouver le meilleur crédit immobilier ?
Réaliser une simulation gratuite

Appartement à GRENOBLE
Appartement à GRENOBLE
Appartement à GRENOBLE
Appartement à GRENOBLE
Appartement à GRENOBLE
Appartement à GRENOBLE
Ce site est protégé par reCAPTCHA la Politique de confidentialité et les Conditions d’utilisation de Google s’appliquent.
Obtenir un prêt immobilier au meilleur taux ?

En poursuivant votre navigation sans modifier vos paramètres, vous acceptez l'utilisation de cookies susceptibles de réaliser des statistiques de visite. Cliquez ici pour plus d'informations