Bénéficiez des services de nos partenaires locaux soigneusement sélectionnés
pour vous accompagner dans votre parcours d'achat immobilier

Maison marseille 6 pièce(s) 156 m2

— Marseille-4e 13004 —
569 000 €
156 m² / 117 m²
6 pièces
jardin

Nos partenaires locaux
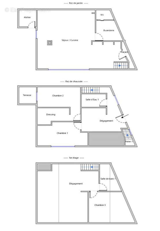
C'est sur l'avenue de Montolivet que se trouve cette jolie maison de ville que l'Aparté Immobilier vous propose aujourd'hui. Située à 5 min à pieds du métro Les Chartreux, de ses commerces, ses petits restaurants et son église, elle est aussi proche du village de Montolivet un peu plus haut et saura vous apporter un cadre de vie familial et paisible. Cette maison se développe sur trois niveaux, dispose d'un jardin et d'une piscine qui feront le bonheur de vos apéritifs d'été. On accède au hall d'entrée directement depuis la rue, qui dessert une salle d'eau avec douche à l'italienne et WC, 2 chambres donnant sur jardin dont une avec un rangement intégré et l'autre avec un grand dressing et une terrasse. Un vaste puit de lumière vous embarque dans le séjour par l'escalier principal, qui dessert au niveau bas une cuisine US entièrement équipée - four, plaques, hotte, lave vaisselle - le salon et la buanderie. La cuisine est épurée et charmante, avec une crédence en Beijmat au mur et sur l'îlot central. Ce dernier d'une taille conséquente permettra de dîner ou cuisiner en famille. Le salon est composé d'un coin canapé spacieux à côté duquel se trouve la buanderie. Cette dernière dispose d'un réfrigérateur congélateur, lave linge et évier et à l'arrière se trouve un WC séparé. Enfin, l'espace repas peut accueillir de nombreux convives. L'ensemble de ce niveau est composé de voûtains au plafond, de niches intégrées et électrifiées qui confèrent un charme fou à cet espace. Ce niveau s'ouvre par de très grandes baies à galandages sur un jardin sud-ouest et une piscine (10m2), un abri de jardin à l'arrière permettra de créer un atelier ou du rangement supplémentaire. Enfin, le dernier niveau -au dernier étage- accessible depuis un escalier au RDC, dispose d'un grand espace pouvant être refermé en chambre comprenant déjà un dressing, d'une chambre avec dressing et d'une salle de bain avec WC. Cet espace compte 3 grands Velux, 1 dans chaque pièce. Cette maison familiale a été entièrement repensée et rénovée par un architecte, son organisation en fait un bien agréable et pratique à vivre. A vous les après-midi barbecue piscine! Parking à la location ou à l'achat possible dans une résidence neuve à côté. Foncier : 1357 euros Performance énergétique : B Emissions GES : A
Voir plus
GES
A
B
C
D
E
F
G

Prêt immobilier

Vous souhaitez connaître votre capacité d’emprunt et trouver le meilleur crédit immobilier ?
Réaliser une simulation gratuite

Maison à MARSEILLE-4E
Maison à MARSEILLE-4E
Maison à MARSEILLE-4E
Maison à MARSEILLE-4E
Maison à MARSEILLE-4E
Maison à MARSEILLE-4E
Maison à MARSEILLE-4E
Maison à MARSEILLE-4E
Maison à MARSEILLE-4E
Maison à MARSEILLE-4E
Maison à MARSEILLE-4E
Maison à MARSEILLE-4E
Maison à MARSEILLE-4E
Maison à MARSEILLE-4E
Maison à MARSEILLE-4E
Maison à MARSEILLE-4E
Ce site est protégé par reCAPTCHA la Politique de confidentialité et les Conditions d’utilisation de Google s’appliquent.
Obtenir un prêt immobilier au meilleur taux ?

En poursuivant votre navigation sans modifier vos paramètres, vous acceptez l'utilisation de cookies susceptibles de réaliser des statistiques de visite. Cliquez ici pour plus d'informations