Bénéficiez des services de nos partenaires locaux soigneusement sélectionnés
pour vous accompagner dans votre parcours d'achat immobilier

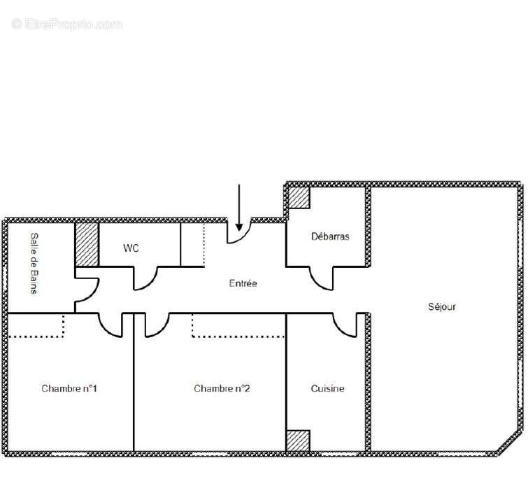
Appartement 73m² à maintenon

— Maintenon 28130 —
217 830 €
74 m²
3 pièces
parking

Nos partenaires locaux
MAINTENON Centre Bel appartement de 73 m² MAINTENON, au rez-de-chaussée d'une résidence sécurisée et récente, située à deux pas du centre ville, nous vous invitons à découvrir cet appartement spacieux de type F3 composé d'une entrée, un séjour, une cuisine, deux chambres, salle de bains, wc. Volets électriques. Une place de parking extérieur. (6.00 % d'honoraires TTC à la charge de l'acquéreur.) Copropriété de 18 lots - dont 8 lots habitation. (Pas de procédure en cours). Charges annuelles : 1323.00 euros.
Voir plus

Référence: CH4840
Honoraires d'agence de 6% à la charge de l'acquéreur
Barème des honoraires
DPE
A
B
C
D
E
F
G
GES
A
B
C
D
E
F
G

Prêt immobilier

Vous souhaitez connaître votre capacité d’emprunt et trouver le meilleur crédit immobilier ?
Réaliser une simulation gratuite

Appartement à MAINTENON
Appartement à MAINTENON
Appartement à MAINTENON
Appartement à MAINTENON
Appartement à MAINTENON
Appartement à MAINTENON
Appartement à MAINTENON
Appartement à MAINTENON
Ce site est protégé par reCAPTCHA la Politique de confidentialité et les Conditions d’utilisation de Google s’appliquent.
Obtenir un prêt immobilier au meilleur taux ?

En poursuivant votre navigation sans modifier vos paramètres, vous acceptez l'utilisation de cookies susceptibles de réaliser des statistiques de visite. Cliquez ici pour plus d'informations