Bénéficiez des services de nos partenaires locaux soigneusement sélectionnés
pour vous accompagner dans votre parcours d'achat immobilier

Appartement 88m² à neuilly-sur-seine

— Neuilly-Sur-Seine 92200 —
990 000 €
88 m² / 58 m²
2 pièces
ascenseur

Nos partenaires locaux
Iad France - Georges Rambaldi vous propose : Appartement lumineux de 88 m² avec jardin - Quartier prestigieux de Neuilly-sur-Seine

Rare opportunité sur le marché.
Niché au calme dans une résidence de standing avec gardien au coeur d'un quartier prisé et recherché de Neuilly,
nous vous proposons cet appartement spacieux de 88 m² offrant un cadre de vie paisible et serein dans un espace modulable qui saura s'adapter à tous vos besoins.
Avec ses 2 pièces et sa superficie généreuse, les possibilités sont infinies.
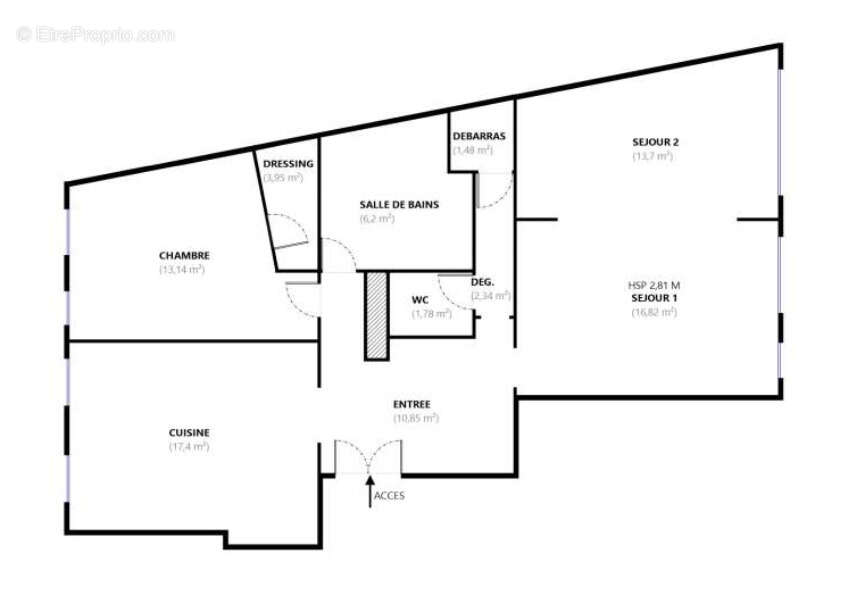
L'appartement comprend une entrée, un double séjour s'ouvrant sur un jardin privatif verdoyant, une grande cuisine, une chambre avec son dressing, une salle d'eau, des toilettes indépendantes ainsi que de nombreux rangements.
Cet appartement bénéficie d'une exposition Sud-est, offrant une luminosité naturelle tout au long de la journée.
N'hésitez pas à le visiter vous serez séduit par son charme et son caractère.

Ce bien est complété par deux caves.
Charge annuelles : 5800¤ environ

Possibilité d'obtenir un box fermé en sus.



La presente annonce immobiliere vise 2 lots situés dans une copropriété de 150 lots au total et ne faisant l'objet d'aucune procédure en cours citée à l'article L. 721-1 du code de la construction et de l'habitation. Montant moyen mensuel de charges déclaré par le vendeur : 483.33¤ par mois (soit 5800 ¤ annuel). Honoraires d'agence à la charge de l'acquéreur. Prix honoraires inclus : 990000 euros. Prix hors honoraires : 945250 euros. Honoraires TTC à la charge de l'acquéreur (4,73% du prix du bien hors honoraires) : 44750 euros.
Information d'affichage énergétique sur ce bien : classe ENERGIE E indice 223 et classe CLIMAT E indice 59. Les informations sur les risques auxquels ce bien est exposé, y compris l'obligation légale de débroussaillement, sont disponibles sur le site Géorisques : http://www.georisques.gouv.fr.
La présente annonce immobilière a été rédigée sous la responsabilité éditoriale de M Georges Rambaldi mandataire indépendant en immobilier (sans détention de fonds), agent commercial de la SAS I@D France immatriculé au RSAC de NANTERRE sous le numéro 902890284, titulaire de la carte de démarchage immobilier pour le compte de la société I@D France SAS.
Informations LOI ALUR :
Soumis au régime de copropriété.
Nombre de lots : 150.
Quote part annuelle(moyenne) : 5800 euros.
Honoraires charge vendeur. (gedeon_6727_31516613)
Voir plus

Référence: 1798035
Bien en copropriété. Nombre de lots : 150. Charges de copropriété : 5800 €.
Honoraires à la charge du vendeur.
DPE
A
B
C
D
E
F
G
GES
A
B
C
D
E
F
G

Prêt immobilier

Vous souhaitez connaître votre capacité d’emprunt et trouver le meilleur crédit immobilier ?
Réaliser une simulation gratuite

Photo 1 - Appartement à NEUILLY-SUR-SEINE
Photo 1
Photo 2 - Appartement à NEUILLY-SUR-SEINE
Photo 2
Photo 3 - Appartement à NEUILLY-SUR-SEINE
Photo 3
Photo 4 - Appartement à NEUILLY-SUR-SEINE
Photo 4
Photo 5 - Appartement à NEUILLY-SUR-SEINE
Photo 5
Ce site est protégé par reCAPTCHA la Politique de confidentialité et les Conditions d’utilisation de Google s’appliquent.
Obtenir un prêt immobilier au meilleur taux ?

En poursuivant votre navigation sans modifier vos paramètres, vous acceptez l'utilisation de cookies susceptibles de réaliser des statistiques de visite. Cliquez ici pour plus d'informations