Maison neuve brindas centre !

— Brindas 69126 —
420 000 €
83 m²
4 pièces
parkingjardin

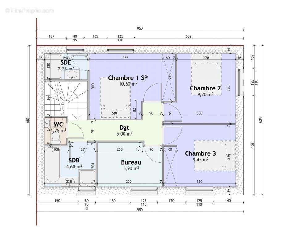
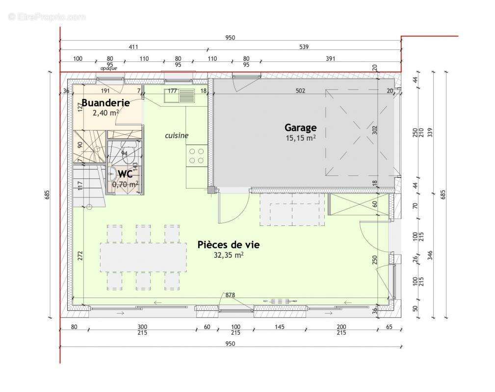
A 7 min à pied du centre de Brindas, projet de maison neuve de 83m2 sur un terrain de 220m2 au calme absolu. Mitoyenne par un seul côté, mais avec une intimité totalement préservée, elle comprend au rez de chaussée une belle pièce de vie de plus de 30m2 ouvrant sur le jardin, une buanderie et un wc. L'étage se compose de 3 chambres dont une suite parentale avec salle d'eau, une salle de bains, un wc séparé et un bureau. Un garage attenant complète ce bien. Frais de notaire réduits ! Emplacement idéal proches de toutes les commodités tout en étant dans un environnement préservé.
Référence agence : 477
Voir plus

Référence: OB6Z-WJC-DWR
Honoraires à la charge du vendeur.
Barème des honoraires

Prêt immobilier

Vous souhaitez connaître votre capacité d’emprunt et trouver le meilleur crédit immobilier ?
Réaliser une simulation gratuite

Maison à BRINDAS
Maison à BRINDAS
Maison à BRINDAS
Maison à BRINDAS
Maison à BRINDAS
Ce site est protégé par reCAPTCHA la Politique de confidentialité et les Conditions d’utilisation de Google s’appliquent.
Obtenir un prêt immobilier au meilleur taux ?

En poursuivant votre navigation sans modifier vos paramètres, vous acceptez l'utilisation de cookies susceptibles de réaliser des statistiques de visite. Cliquez ici pour plus d'informations