Bénéficiez des services de nos partenaires locaux soigneusement sélectionnés
pour vous accompagner dans votre parcours d'achat immobilier

Maison à vendre 5 pièces cergy (95)

— Cergy 95000 —
320 000 €
90 m² / 98 m²
5 pièces
parkingjardin

Nos partenaires locaux
Bienvenue dans cette charmante maison mitoyenne située à Cergy-Préfecture, au cœur du quartier recherché des Touleuses. Si vous rêvez d'un cadre de vie paisible, tout en étant à proximité des commerces, écoles, transports dont le RER A, cette maison est faite pour vous.
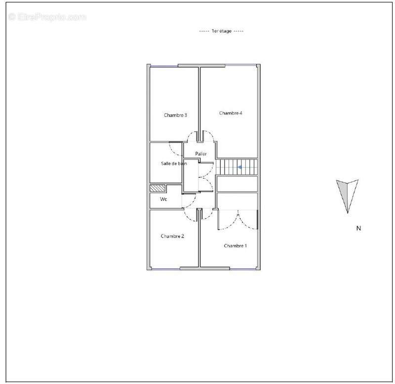
Elle se compose d'un séjour baigné de lumière naturelle, d'une cuisine aménagée, 2 débarras, de nombreux espaces de rangements.
Cette maison comprend 4 chambres lumineuses dont 2 avec dressing, offrant à chacun son propre espace. Les deux toilettes séparées sont un atout indéniable pour les familles, facilitant ainsi la vie quotidienne. La salle d'eau est élégamment aménagée. Vous apprécierez également de pouvoir profiter des beaux jours dans le jardin. 2 places de parking viennent compléter ce bien.

Cette ravissante maison est une opportunité rare sur le marché, alliant confort, espace et emplacement idéal. Ne manquez pas l'occasion de la visiter !

Pour plus d'informations ou pour organiser une visite, n'hésitez pas à me contacter. Je serai ravis de vous accompagner dans votre projet immobilier et de vous faire découvrir ce bien d'exception.

Nombre de lots de la copropriété : 13, Montant moyen annuel de la quote-part de charges (budget prévisionnel) : 537€ soit 44€ par mois. Les honoraires sont à la charge du vendeur.
Les informations sur les risques auxquels ce bien est exposé sont disponibles sur le site Géorisques : www. georisques. gouv. fr.

Réseau Immobilier CAPIFRANCE - Votre agent commercial (RSAC N°928 280 734 - Greffe de PONTOISE) Jim TOUSSAINT Entrepreneur Individuel [Coordonnées masquées] - Réf.897529
Voir plus

Référence: 340936569552
Bien en copropriété. Nombre de lots : 13. Charges de copropriété : 44 €.
Honoraires à la charge du vendeur.
DPE
A
B
C
D
E
F
G
GES
A
B
C
D
E
F
G

Prêt immobilier

Vous souhaitez connaître votre capacité d’emprunt et trouver le meilleur crédit immobilier ?
Réaliser une simulation gratuite

Maison à CERGY
Maison à CERGY
Maison à CERGY
Maison à CERGY
Maison à CERGY
Maison à CERGY
Maison à CERGY
Maison à CERGY
Maison à CERGY
Maison à CERGY
Maison à CERGY
Maison à CERGY
Maison à CERGY
Maison à CERGY
Maison à CERGY
Maison à CERGY
Maison à CERGY
Maison à CERGY
Maison à CERGY
Maison à CERGY
Ce site est protégé par reCAPTCHA la Politique de confidentialité et les Conditions d’utilisation de Google s’appliquent.
Obtenir un prêt immobilier au meilleur taux ?

En poursuivant votre navigation sans modifier vos paramètres, vous acceptez l'utilisation de cookies susceptibles de réaliser des statistiques de visite. Cliquez ici pour plus d'informations