Bénéficiez des services de nos partenaires locaux soigneusement sélectionnés
pour vous accompagner dans votre parcours d'achat immobilier

Appartement t3 avec terrasse et garage

— Perpignan 66000 —
229 000 €
66 m²
3 pièces
parkingbalcon/terrasse

Nos partenaires locaux
Situé au Sud-Ouest de PERPIGNAN, à proximité immédiate de toutes les commodités et commerces (Auchan 3 min, Leclerc...), écoles et entrée Autoroute A9 à 6 minutes.
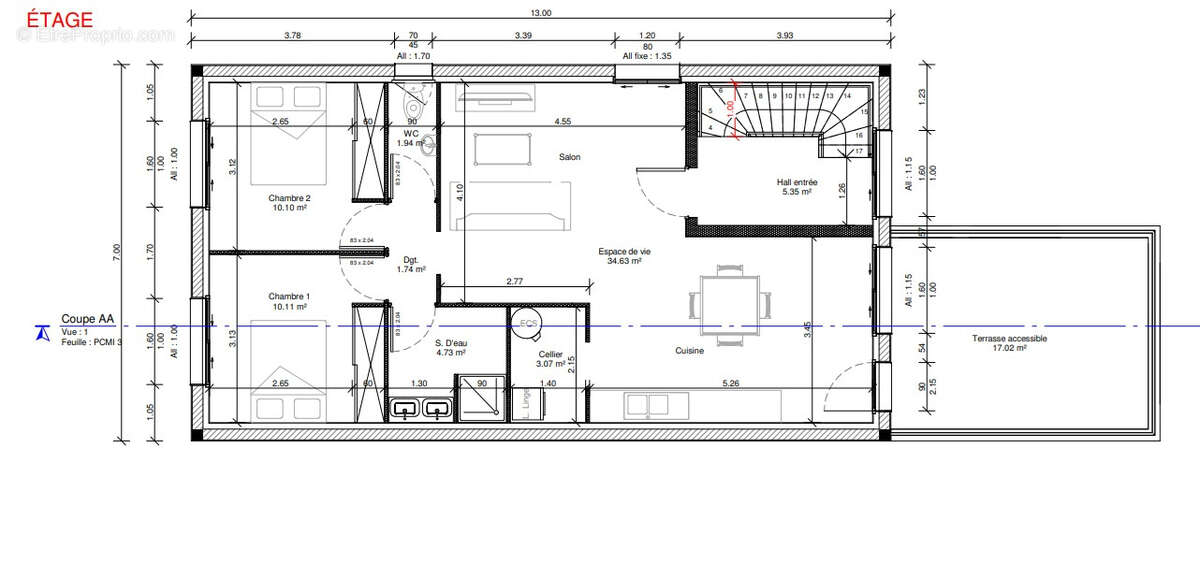
Appartement T3 lumineux situé au 1 er et dernier étage d'une copropriété de 2 lots uniquement.
L'appartement comprend une entrée indépendant (pas de partie commune), un séjour/salon de 35 m2 avec accès sur la terrasse de 17 m2, une salle d'eau équipée avec double vasque et douche de 120 cm extra plat, 2 chambres avec placards.
L'appartement est vendu avec son gargage et une place de parking.
Concernant les prestations, Menuiserie de la marque MILLET, Electricté LEGRAND avec évolution possible en domotique, gaine prévue pour le home cinéma, prises TV et Ethernet dans les chambres.
Très faible consommation énergétique avec sa climatisation gainable AIRZONE réversible et son ballon d'eau thermodinamyque. Prestations rares et de qualité pour ce type de bien.
photos et illustrations non contractuelles.
Tout renseignement et visites auprès de notre agence Le 9 immobilier
Voir plus

Bien en copropriété. Nombre de lots : 2.
Barème des honoraires
DPE
A
B
C
D
E
F
G
GES
A
B
C
D
E
F
G

Prêt immobilier

Vous souhaitez connaître votre capacité d’emprunt et trouver le meilleur crédit immobilier ?
Réaliser une simulation gratuite

Appartement à PERPIGNAN
Appartement à PERPIGNAN
Appartement à PERPIGNAN
Appartement à PERPIGNAN
Ce site est protégé par reCAPTCHA la Politique de confidentialité et les Conditions d’utilisation de Google s’appliquent.
Obtenir un prêt immobilier au meilleur taux ?

En poursuivant votre navigation sans modifier vos paramètres, vous acceptez l'utilisation de cookies susceptibles de réaliser des statistiques de visite. Cliquez ici pour plus d'informations