Bénéficiez des services de nos partenaires locaux soigneusement sélectionnés
pour vous accompagner dans votre parcours d'achat immobilier

Saint secondin

— Saint-Secondin 86350 —
75 500 €
112 m²
6 pièces
parking

Nos partenaires locaux
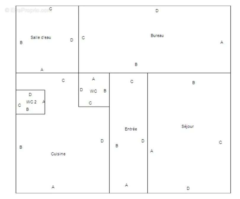
MAISON DE BOURG à rénover
comprenant 1 pièce principale (ancien bureau poste), entrée, séjour, cuisine, salle d'eau, wc.
A l'étage, 3 chambres.
Cave. Garage indépendant.
Jardin de 567 m².

Référence: 86081932
Barème des honoraires
DPE
A
B
C
D
E
F
G
GES
A
B
C
D
E
F
G

Prêt immobilier

Vous souhaitez connaître votre capacité d’emprunt et trouver le meilleur crédit immobilier ?
Réaliser une simulation gratuite

Maison à SAINT-SECONDIN
Maison à SAINT-SECONDIN
Maison à SAINT-SECONDIN
Maison à SAINT-SECONDIN
Maison à SAINT-SECONDIN
Maison à SAINT-SECONDIN
Maison à SAINT-SECONDIN
Maison à SAINT-SECONDIN
Maison à SAINT-SECONDIN
Maison à SAINT-SECONDIN
Maison à SAINT-SECONDIN
Maison à SAINT-SECONDIN
Maison à SAINT-SECONDIN
Maison à SAINT-SECONDIN
Maison à SAINT-SECONDIN
Maison à SAINT-SECONDIN
Ce site est protégé par reCAPTCHA la Politique de confidentialité et les Conditions d’utilisation de Google s’appliquent.
Obtenir un prêt immobilier au meilleur taux ?

En poursuivant votre navigation sans modifier vos paramètres, vous acceptez l'utilisation de cookies susceptibles de réaliser des statistiques de visite. Cliquez ici pour plus d'informations