Bénéficiez des services de nos partenaires locaux soigneusement sélectionnés
pour vous accompagner dans votre parcours d'achat immobilier

Nice carré d'or - 2 pièces au calme

— Nice 06000 —
319 000 €
41 m²
2 pièces
ascenseur

Nos partenaires locaux
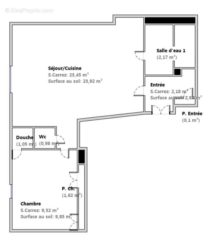
Nice Carré d'Or / Masséna : Dans un Immeuble Bourgeois de style Belle Époque datant de 1866, découvrez ce ravissant Deux Pièces de 41 m², situé à deux pas de la Place Masséna.

Il se compose d’un Hall d’entrée avec espace de Rangement,

Un Séjour Lumineux avec sa Cuisine ouverte, entièrement Aménagée et Équipée,

Une Salle d’eau attenante,

Une Chambre avec Parquet au sol, un pan de mur optimisé avec Rangements, et sa Salle de douche Privative.

Véritable coup de Cœur pour ce bien niché dans un passage au Calme, idéal en Pied-à-terre niçois ou en Investissement locatif.

Location Saisonnière autorisée.

Dossier de présentation disponible sur demande.

Les honoraires sont à la charge du Vendeur.

Les informations sur les risques auxquels ce bien est exposé sont disponibles sur le site Géorisques : georisques.gouv.fr
Voir plus

Référence: JT2525
DPE
A
B
C
D
E
F
G
GES
A
B
C
D
E
F
G

Prêt immobilier

Vous souhaitez connaître votre capacité d’emprunt et trouver le meilleur crédit immobilier ?
Réaliser une simulation gratuite

Appartement à NICE
Appartement à NICE
Appartement à NICE
Appartement à NICE
Appartement à NICE
Appartement à NICE
Appartement à NICE
Appartement à NICE
Appartement à NICE
Appartement à NICE
Appartement à NICE
Appartement à NICE
Appartement à NICE
Appartement à NICE
Appartement à NICE
Appartement à NICE
Ce site est protégé par reCAPTCHA la Politique de confidentialité et les Conditions d’utilisation de Google s’appliquent.
Obtenir un prêt immobilier au meilleur taux ?

En poursuivant votre navigation sans modifier vos paramètres, vous acceptez l'utilisation de cookies susceptibles de réaliser des statistiques de visite. Cliquez ici pour plus d'informations