Maison de bourg t3 avec cour et dependances - libre d'occupation

— Chavagnes 49540 —
106 500 €
68 m² / 267 m²
3 pièces
parkingjardin

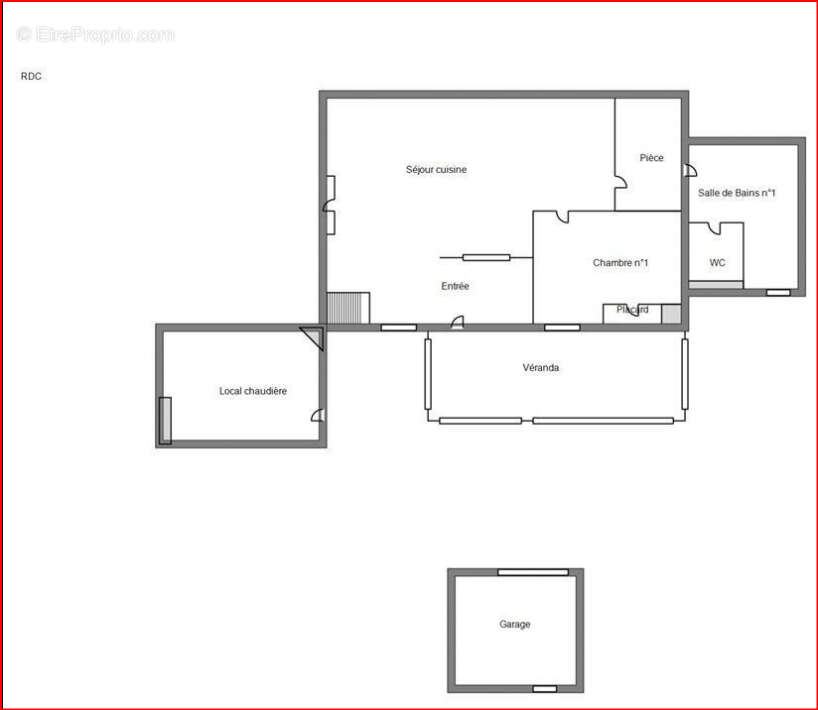
Martigné-Briand - Maison Libre d'occupation LES ARÈNES IMMOBILIER ANGERS vous propose en exclusivité cette maison T3, située au coeur de Martigné-Briand, à deux pas des commerces, écoles et services (tout à pied). Idéal pour investisseurs souhaitant bénéficier d'un revenu locatif immédiat (location 770 euros/mois cc) ou pour primo-accédants. -Caractéristiques principales : Surface habitable : 68 m² - Rez-de-chaussée : Entrée Salon avec cuisine ouverte 1 chambre avec placards Buanderie Salle de bains WC séparé A l'étage : 1 chambre 1 seconde salle de bains - Annexes : Véranda Cave Local chaudière fioul 2 GRANDS GARAGES DPE : E / GES : E Servitude de passage (fond dominant) Une opportunité rare pour un placement locatif clé en main ou un futur projet d'habitation. A visiter rapidement ! (Agent commercial - EI) (6.50 % honoraires TTC à la charge de l'acquéreur.)
Voir plus

Référence: 337
Honoraires d'agence de 6.5% à la charge de l'acquéreur
Barème des honoraires
DPE
A
B
C
D
E
F
G
GES
A
B
C
D
E
F
G

Prêt immobilier

Vous souhaitez connaître votre capacité d’emprunt et trouver le meilleur crédit immobilier ?
Réaliser une simulation gratuite

Maison à CHAVAGNES
Maison à CHAVAGNES
Maison à CHAVAGNES
Maison à CHAVAGNES
Maison à CHAVAGNES
Maison à CHAVAGNES
Maison à CHAVAGNES
Maison à CHAVAGNES
Maison à CHAVAGNES
Maison à CHAVAGNES
Maison à CHAVAGNES
Maison à CHAVAGNES
Ce site est protégé par reCAPTCHA la Politique de confidentialité et les Conditions d’utilisation de Google s’appliquent.
Obtenir un prêt immobilier au meilleur taux ?

En poursuivant votre navigation sans modifier vos paramètres, vous acceptez l'utilisation de cookies susceptibles de réaliser des statistiques de visite. Cliquez ici pour plus d'informations