Bénéficiez des services de nos partenaires locaux soigneusement sélectionnés
pour vous accompagner dans votre parcours d'achat immobilier

Appartement 23m² à nantes

— Nantes 44200 —
68 500 €
23 m²
1 pièce
ascenseur

Nos partenaires locaux
Iad France - Jocelyn Rouet vous propose : ILE DE NANTES - SPÉCIAL INVESTISSEURS LMNP
Située en plein coeur de l'Ile de Nantes, la résidence hôtelière Urban Seven propose des prestations haut-de-gamme. Tous les appartements viennent d'être rénovés (mobilier, peintures. ).
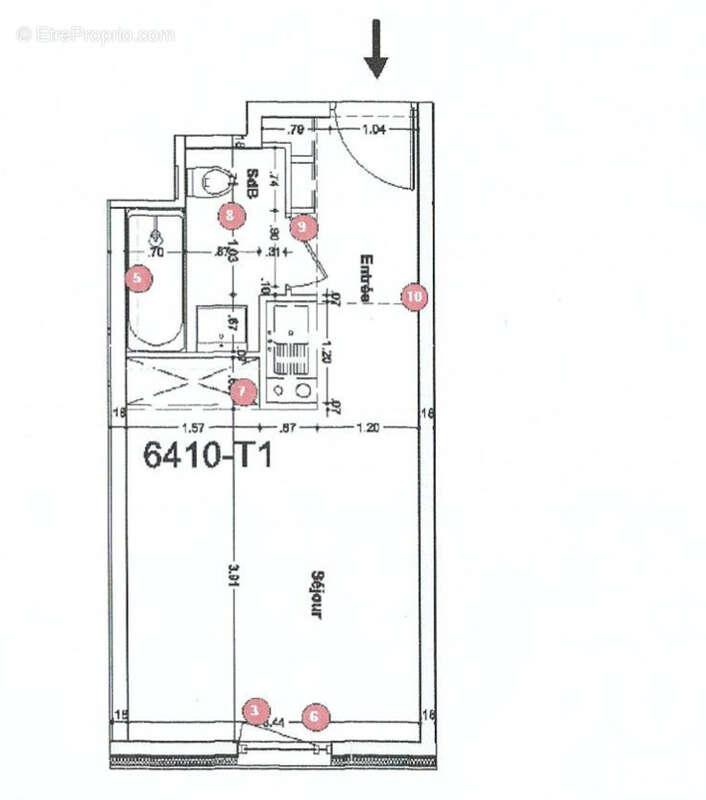
Le studio de 23 m² se situe au 5ème étage. Il comprend une entrée avec placard, une belle pièce avec coin-cuisine américaine équipée et aménagée (équipements neufs) ainsi qu'une salle de bains avec WC. L'appartement est vendu avec une place de parking.
La résidence offre à ses clients de nombreux services : spa, salle de sport, salles de réunion, bar et restauration, accueil ouvert 24h / 24, pressing etc.
Le loyer annuel garanti est de 4600¤ HC pour une rentabilité brute aux alentours de 6,7%.
Prestations, emplacement privilégié, prix au m2 et belle rentabilité, n'hésitez plus, contactez-moi !



La presente annonce immobiliere vise 2 lots situés dans une copropriété de 200 lots au total et ne faisant l'objet d'aucune procédure en cours citée à l'article L. 721-1 du code de la construction et de l'habitation. Montant moyen mensuel de charges déclaré par le vendeur : 26¤ par mois (soit 312 ¤ annuel). Honoraires d'agence à la charge du vendeur.
Information d'affichage énergétique sur ce bien : classe ENERGIE C indice 125 et classe CLIMAT A indice 4. Les informations sur les risques auxquels ce bien est exposé, y compris l'obligation légale de débroussaillement, sont disponibles sur le site Géorisques : http://www.georisques.gouv.fr.
La présente annonce immobilière a été rédigée sous la responsabilité éditoriale de M Jocelyn Rouet mandataire indépendant en immobilier (sans détention de fonds), agent commercial de la SAS I@D France immatriculé au RSAC de NANTES sous le numéro 753806850, titulaire de la carte de démarchage immobilier pour le compte de la société I@D France SAS.
Informations LOI ALUR :
Soumis au régime de copropriété.
Nombre de lots : 200.
Quote part annuelle(moyenne) : 312 euros.
Honoraires charge vendeur. (gedeon_6727_31557801)
Voir plus

Référence: 1804965
Bien en copropriété. Nombre de lots : 200. Charges de copropriété : 312 €.
Honoraires à la charge du vendeur.
DPE
A
B
C
D
E
F
G
GES
A
B
C
D
E
F
G

Prêt immobilier

Vous souhaitez connaître votre capacité d’emprunt et trouver le meilleur crédit immobilier ?
Réaliser une simulation gratuite

Photo 1 - Appartement à NANTES
Photo 1
Photo 2 - Appartement à NANTES
Photo 2
Photo 3 - Appartement à NANTES
Photo 3
Photo 4 - Appartement à NANTES
Photo 4
Photo 5 - Appartement à NANTES
Photo 5
Photo 6 - Appartement à NANTES
Photo 6
Photo 7 - Appartement à NANTES
Photo 7
Ce site est protégé par reCAPTCHA la Politique de confidentialité et les Conditions d’utilisation de Google s’appliquent.
Obtenir un prêt immobilier au meilleur taux ?

En poursuivant votre navigation sans modifier vos paramètres, vous acceptez l'utilisation de cookies susceptibles de réaliser des statistiques de visite. Cliquez ici pour plus d'informations