A vendre maison t11 sur 1000 m2 terrain

— Blienschwiller 67650 —
545 000 €
224 m² / 1 000 m²
11 pièces
parkingjardin

 

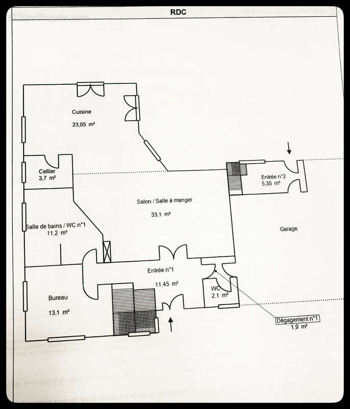
À vendre Maison individuelle de 224 m2 avec appartement T2 attenant et grand garage Terrain de 1000 m2 Proche Strasbourg (Alsace)
 Situation idéale À seulement quelques minutes de Strasbourg, découvrez cette spacieuse maison individuelle de 224 m2 habitables, édifiée sur un terrain plat  de 1000 m2. Parfaitement entretenue, elle offre confort, volume et potentiel, dans un cadre de vie paisible, à proximité immédiate des commodités, écoles, transports et axes routiers.
 Maison principale Vaste pièce de vie lumineuse, salon/séjour traversant avec cheminée /Cuisine indépendante entièrement équipée avec accès terrasse / 4 chambres dont une suite parentale avec salle d’eau privative  / Salle de bain + WC séparés / Nombreux rangements, buanderie, cellier

 Appartement T2 attenant
Idéal pour un logement indépendant, un bureau professionnel ou du locatif : Séjour avec coin cuisine / 1 chambre Salle d’eau avec WC / Entrée indépendante

Grand garage & stationnements   Garage spacieux avec espace atelier.  Nombreuses possibilités de stationnement dans la cour

 Extérieurs.   Terrain de 1000 m2, entièrement clos, plat et piscinable. / Belle terrasse exposée sud / Jardin arboré et sans vis-à-vis

 Points forts. Volumes généreux et belle luminosité / Environnement calme et verdoyant / Double vitrage, chauffage performant / Appartement attenant avec accès séparé / Proche Strasbourg, accès rapide à l’autoroute

Bien rare à la vente dans le secteur ! Parfait pour une grande famille, une profession libérale ou un investisseur locatif.
Contactez-nous dès aujourd’hui pour organiser une visite et découvrir tout le potentiel de cette belle propriété. AGENCE AGATHEA [Coordonnées masquées] 
Voir plus

Référence: 32
Honoraires à la charge du vendeur.
Barème des honoraires
DPE
A
B
C
D
E
F
G
GES
A
B
C
D
E
F
G

Prêt immobilier

Vous souhaitez connaître votre capacité d’emprunt et trouver le meilleur crédit immobilier ?
Réaliser une simulation gratuite

Maison à BLIENSCHWILLER
Maison à BLIENSCHWILLER
Maison à BLIENSCHWILLER
Maison à BLIENSCHWILLER
Maison à BLIENSCHWILLER
Maison à BLIENSCHWILLER
Maison à BLIENSCHWILLER
Maison à BLIENSCHWILLER
Maison à BLIENSCHWILLER
Maison à BLIENSCHWILLER
Maison à BLIENSCHWILLER
Maison à BLIENSCHWILLER
Maison à BLIENSCHWILLER
Maison à BLIENSCHWILLER
Maison à BLIENSCHWILLER
Maison à BLIENSCHWILLER
Maison à BLIENSCHWILLER
Ce site est protégé par reCAPTCHA la Politique de confidentialité et les Conditions d’utilisation de Google s’appliquent.
Obtenir un prêt immobilier au meilleur taux ?

En poursuivant votre navigation sans modifier vos paramètres, vous acceptez l'utilisation de cookies susceptibles de réaliser des statistiques de visite. Cliquez ici pour plus d'informations