Bénéficiez des services de nos partenaires locaux soigneusement sélectionnés
pour vous accompagner dans votre parcours d'achat immobilier

Maison macon 3 pièces 96.38 m2

— Macon 71000 —
199 000 €
96 m²
3 pièces

Nos partenaires locaux
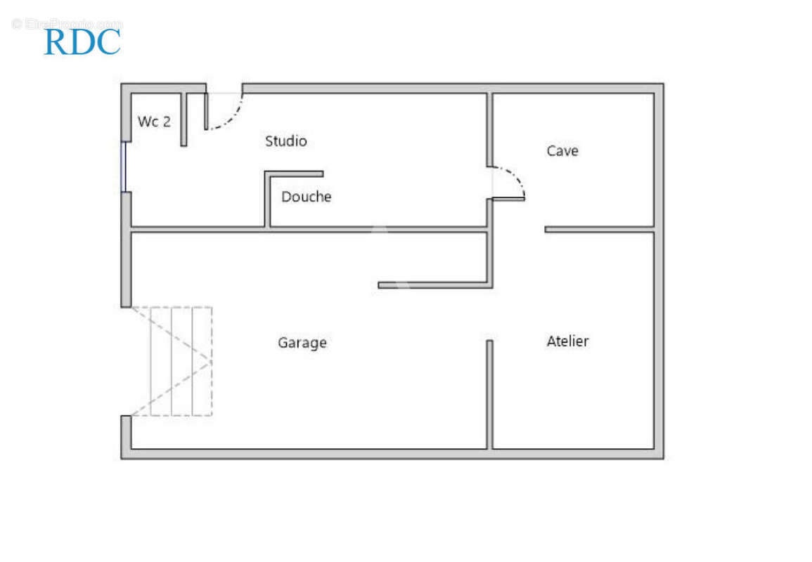
Située dans un quartier calme, cette maison sur deux niveaux offre une surface habitable de 96,38 m² (surface totale au sol : 145,89 m²). Elle se compose à l'étage d'une entrée, d'un séjour lumineux, d'une cuisine, de deux chambres et d'une salle de bains. Le sous-sol accueille un garage, un atelier, une cave et un studio indépendant, idéal pour un projet locatif ou un espace de travail. Des travaux de rénovation sont à prévoir (huisseries, volets, cuisine, peintures, sols), mais la maison présente un fort potentiel pour un projet de rénovation à votre image. Chauffage au fioul Pour plus d'informations ou organiser une visite, n'hésitez pas à nous contacter ! *Honoraires charges vendeur
Voir plus

Référence: 3690
Honoraires à la charge du vendeur.
Barème des honoraires
DPE
A
B
C
D
E
F
G
GES
A
B
C
D
E
F
G

Prêt immobilier

Vous souhaitez connaître votre capacité d’emprunt et trouver le meilleur crédit immobilier ?
Réaliser une simulation gratuite

Maison à MACON
Maison à MACON
Maison à MACON
Maison à MACON
Maison à MACON
Maison à MACON
Maison à MACON
Maison à MACON
Maison à MACON
Maison à MACON
Maison à MACON
Maison à MACON
Maison à MACON
Maison à MACON
Ce site est protégé par reCAPTCHA la Politique de confidentialité et les Conditions d’utilisation de Google s’appliquent.
Obtenir un prêt immobilier au meilleur taux ?

En poursuivant votre navigation sans modifier vos paramètres, vous acceptez l'utilisation de cookies susceptibles de réaliser des statistiques de visite. Cliquez ici pour plus d'informations