Bénéficiez des services de nos partenaires locaux soigneusement sélectionnés
pour vous accompagner dans votre parcours d'achat immobilier

Maison 126 m2 terrain de 700 m2

— Frans 01480 —
415 000 €
126 m² / 700 m²
4 pièces
jardin

Nos partenaires locaux


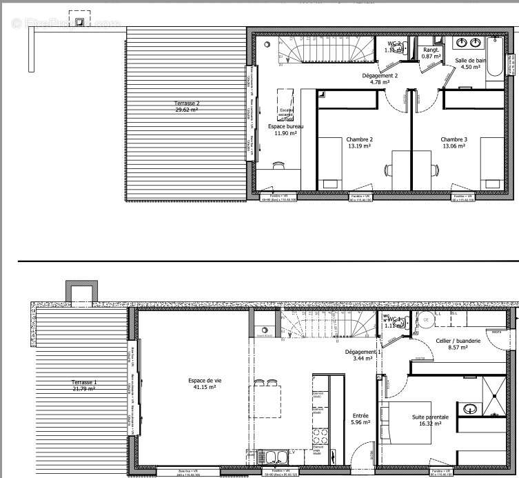
Frans , ( 01480) Bureau Sully vous présente cette ravissante maison en parfait état avec de très belles prestations de 126m2 environ, édifiée sur une parcelle de 700 m2, 2 grandes terrasses, un jardin & terrain piscinable idéalement située dans un secteur résidentiel proche tts commodités, transports, commerces, écoles, cabinet médical...

Evoluant au coeur d'une commune dynamique et conviviale, cela sans nuisance, idéalement conçue pour une famille, cette belle construction combine espace, lumière et tranquillité.

Elle se compose:
Au premier niveau :
Une belle pièce à vivre de 40 m2 environ, parfaitement orientée, donnant sur la terrasse & le jardin, d'une cuisine ouverte, équipée, fonctionnelle, avec un ilot central.

Une configuration parfaite offre de grandes ouvertures vitrées donnant un sentiment d'espace très agréable.

Cet ensemble très bien agencé se trouve en parfait état, pour votre confort, un poêle à bois est présent.

Une belle suite parentale avec salle d'eau & dressing.

Un espace Buanderie & cellier.


Au second niveau:
Un dégagement pouvant faire office de bureau donnant sur une terrasse suspendue.
Un très bel agencement de 2 chambres, une salle de bain & wc.


Les extérieurs :
Belle terrasse parfaitement exposée, une deuxième terrasse suspendue à l'étage, terrain cloturé & arboré.
Terrain piscinable.



Tarif : 415 000 € honoraires inclus à la charge du vendeur.

Pour une visite, des informations, contactez David BENOIT o6 74 59 2o 76 agent commercial Agence Bureau Sully.
Les informations sur les risques auxquels ce bien est exposé sont disponibles sur le site.
Géorisques : www.géorisques.gouv.fr
Voir plus

Honoraires à la charge du vendeur.
Barème des honoraires
DPE
A
B
C
D
E
F
G
GES
A
B
C
D
E
F
G

Prêt immobilier

Vous souhaitez connaître votre capacité d’emprunt et trouver le meilleur crédit immobilier ?
Réaliser une simulation gratuite

Maison à FRANS
Maison à FRANS
Maison à FRANS
Maison à FRANS
Maison à FRANS
Maison à FRANS
Maison à FRANS
Maison à FRANS
Maison à FRANS
Maison à FRANS
Maison à FRANS
Maison à FRANS
Maison à FRANS
Maison à FRANS
Maison à FRANS
Maison à FRANS
Maison à FRANS
Maison à FRANS
Ce site est protégé par reCAPTCHA la Politique de confidentialité et les Conditions d’utilisation de Google s’appliquent.
Obtenir un prêt immobilier au meilleur taux ?

En poursuivant votre navigation sans modifier vos paramètres, vous acceptez l'utilisation de cookies susceptibles de réaliser des statistiques de visite. Cliquez ici pour plus d'informations