Bénéficiez des services de nos partenaires locaux soigneusement sélectionnés
pour vous accompagner dans votre parcours d'achat immobilier

2 lots de copropriété à aménager en duplex / secteur jaude - gaillard - palais de justice / fort potentiel / i

— Clermont-Ferrand 63000 —
44 000 €
25 m²
2 pièces

Nos partenaires locaux
2 LOTS DE COPROPRIÉTÉ À AMÉNAGER EN DUPLEX / SECTEUR JAUDE - GAILLARD - PALAIS DE JUSTICE / FORT POTENTIEL / IDÉAL INVESTISSEUR

SOUS COMPROMIS DE VENTE

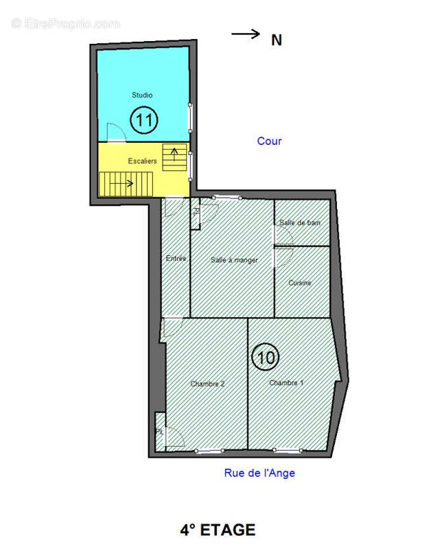
L’agence ACCORD IMMOBILIER 63 vous propose deux lots de copropriété bruts à rénover intégralement au 3 ème et 4 ème étages, situés Rue de l’Ange, en plein cœur de Clermont-Ferrand, dans un secteur recherché, à proximité immédiate de la place de Jaude, du quartier Gaillard et du Palais de Justice.

Situés dans un immeuble ancien, ces deux lots donnent sur une cour intérieure. Ils offrent une surface respective de 12,63 m2 (lot no9) et 12,56 m2 (lot no11), soit une surface totale d’environ 25,19 m2.

Une transformation en duplex est envisageable. Le bien nécessite une rénovation complète (électricité, plomberie, isolation, revêtements...).

Ce bien représente une opportunité rare pour un investisseur ou marchand de biens, dans un quartier central offrant une forte demande locative (étudiants, professionnels, courte durée).

Tous les commerces, transports et services sont accessibles à pied.

À découvrir rapidement !

Pour plus de renseignements, contactez votre agence ACCORD IMMOBILIER 63 au [Coordonnées masquées].

Nous recherchons tous types de biens pour des acquéreurs qualifiés. Estimation sous 48h. N'hésitez pas à nous consulter.

Le prix indiqué comprend les honoraires à la charge de l'acheteur : 10.00 % TTC du prix du bien hors honoraires

Prix hors honoraires : 40 000 €

Les informations sur les risques auxquels ce bien peut-être exposé, y compris l'obligation légale de débroussaillement, sont disponibles sur le site Géorisques : www.georisques.gouv.fr
Voir plus

Référence: 3038
Bien en copropriété. Nombre de lots : 13.
Honoraires d'agence de 10% à la charge de l'acquéreur
Barème des honoraires

Prêt immobilier

Vous souhaitez connaître votre capacité d’emprunt et trouver le meilleur crédit immobilier ?
Réaliser une simulation gratuite

Appartement à CLERMONT-FERRAND
Appartement à CLERMONT-FERRAND
Appartement à CLERMONT-FERRAND
Appartement à CLERMONT-FERRAND
Appartement à CLERMONT-FERRAND
Ce site est protégé par reCAPTCHA la Politique de confidentialité et les Conditions d’utilisation de Google s’appliquent.
Obtenir un prêt immobilier au meilleur taux ?

En poursuivant votre navigation sans modifier vos paramètres, vous acceptez l'utilisation de cookies susceptibles de réaliser des statistiques de visite. Cliquez ici pour plus d'informations