Appartement t2 de 49 m² avec un balcon et une cave à vendre - epinay sous senart (91)

— Epinay-Sous-Senart 91860 —
136 000 €
49 m²
2 pièces
ascenseur

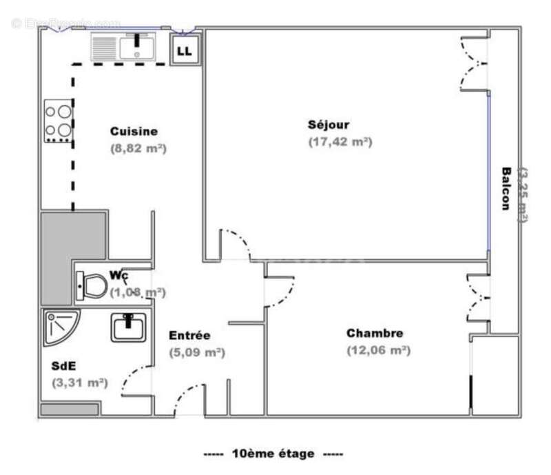
Distribution fonctionnelle pour cet appartement T2 de 49 m² avec un balcon de 3.25 m² et une cave en sous-sol.

Au dixième étage : une entrée, une salle d'eau, un WC indépendant, un séjour de 18 m², une accueillante cuisine aménagée, une petite buanderie, une chambre de 12 m² avec placards intégrés et un balcon.

Informations complémentaires :

- Résidence bien entretenue,
- 117.00 € de charges de copropriété comprenant l'eau chaude et le chauffage collectif,
- Volets roulants électriques,
- Fenêtres en PVC,
- 2 ascenseurs,
- Cave,
- Place de parking libre.

Vous êtes intéressés, vous avez des questions ? Je suis à votre service pour vous faire découvrir ce bien.
Nombre de lots de la copropriété : 310, Montant moyen annuel de la quote-part de charges (budget prévisionnel)(Chauffage collectif) : 1400€ soit 116€ par mois. Les honoraires sont à la charge du vendeur.
Les informations sur les risques auxquels ce bien est exposé sont disponibles sur le site Géorisques : www. georisques. gouv. fr.

Réseau Immobilier CAPIFRANCE - Votre agent commercial (RSAC N°512 888 165 - Greffe de MELUN) Michel ASSELIE Entrepreneur Individuel [Coordonnées masquées] - Réf.915074
Voir plus

Référence: 340939353356
Bien en copropriété. Nombre de lots : 310. Charges de copropriété : 116 €.
Honoraires à la charge du vendeur.
DPE
A
B
C
D
E
F
G
GES
A
B
C
D
E
F
G

Prêt immobilier

Vous souhaitez connaître votre capacité d’emprunt et trouver le meilleur crédit immobilier ?
Réaliser une simulation gratuite

Appartement à EPINAY-SOUS-SENART
Appartement à EPINAY-SOUS-SENART
Appartement à EPINAY-SOUS-SENART
Appartement à EPINAY-SOUS-SENART
Appartement à EPINAY-SOUS-SENART
Appartement à EPINAY-SOUS-SENART
Appartement à EPINAY-SOUS-SENART
Appartement à EPINAY-SOUS-SENART
Ce site est protégé par reCAPTCHA la Politique de confidentialité et les Conditions d’utilisation de Google s’appliquent.
Obtenir un prêt immobilier au meilleur taux ?

En poursuivant votre navigation sans modifier vos paramètres, vous acceptez l'utilisation de cookies susceptibles de réaliser des statistiques de visite. Cliquez ici pour plus d'informations