Bénéficiez des services de nos partenaires locaux soigneusement sélectionnés
pour vous accompagner dans votre parcours d'achat immobilier

Commerce 75m² à eurre

— Eurre 26400 —
95 000 €
75 m²

Nos partenaires locaux
Mandat : 2211

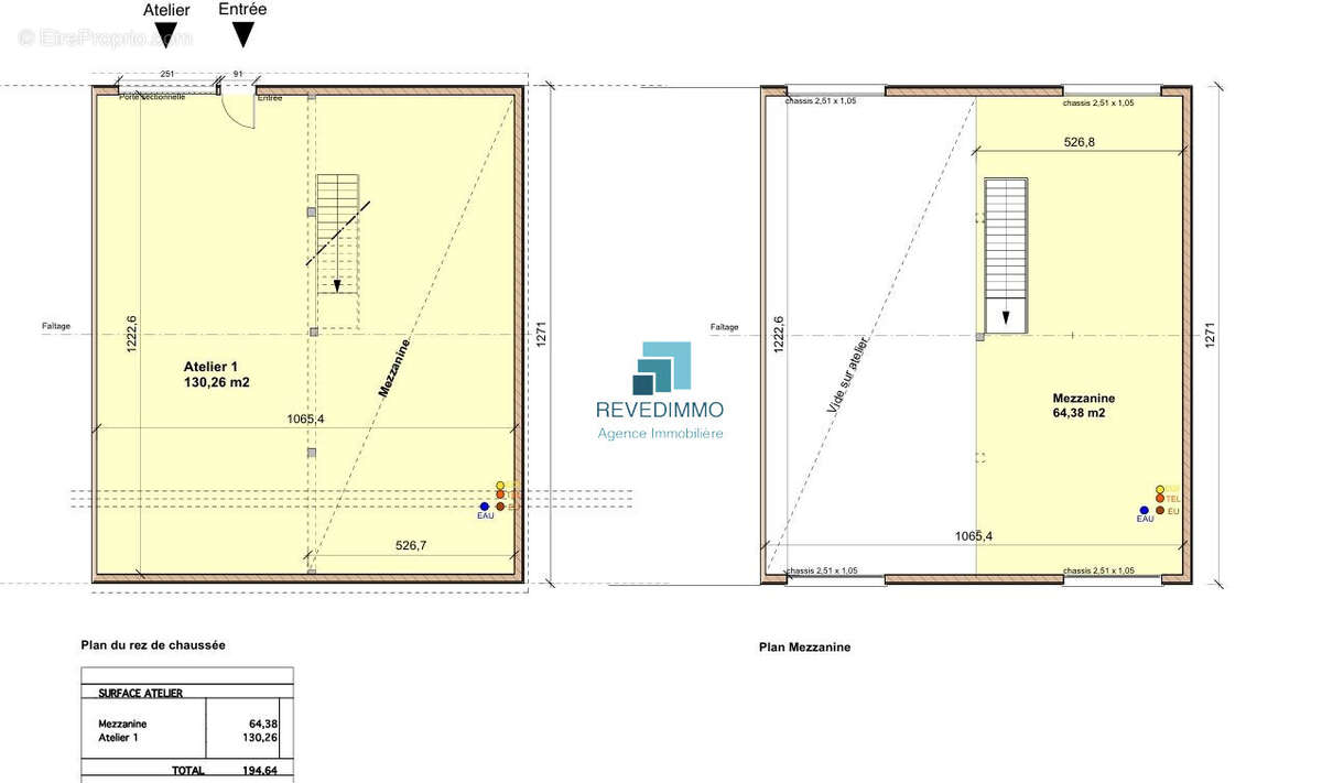
18 ateliers / local / bureau en cour de construction
Livraison pour octobre / novembre 2025
Le terrain, situé sur la commune de Eurre (Drôme – 26),

Distribution:
12 locaux de 75m2 en vente au prix de 95 00€ HAI chacun
4 locaux de 150m2 en vente au prix de 174 000€ HAI chacun
2 locaux de 200m2 en vente au prix de 211 000€ HAI chacun

Caractéristiques :
Construction biosourcée (ossature bois, laine de bois) – norme RE 2020
Menuiseries aluminium – dalle béton
Porte sectionnelle 2,50 x 3 m – hauteur sous plafond 5 m
Mezzanine lumineuse avec fenêtre coulissante – bureau aménageable
Lave-mains et WC privatifs
Électricité monophasée & triphasée
Fibre optique disponible dans chaque local
Accès poids lourds – aire de manoeuvre et de déchargement

Zone en plein essor, avec navettes régulières vers Crest, forte attractivité économique et soutien communal.

Les aménagements de stationnement se situeront uniquement sur les côtés ouest et est de
la parcelle.
Un retrait de 15 mètres est respecté conformément au plan de composition.
Les zones de giration des camions sont prévues.
Les revêtements des aires de stationnement seront drainants.
Au total, 36 places de stationnement seront créées.
Dès que possible, les espaces libres seront végétalisés.

- Eaux pluviales : principe d'infiltration directe sur la parcelle
- Eau potable : raccordement prévu au réseau public
- Eaux usées : rejet dans le réseau public d'assainissement, par réseaux enterrés
- Réseaux câblés (électricité, téléphonie, internet) : installations prévues en souterrain
Photos sur demande – visites possibles sur d'autres autres sites déjà en activité.

Les informations sur les risques auxquels ce bien est exposé sont disponibles sur le site Géorisques http://www.georisques.gouv.fr

Numéro SIREN : 831671128
Numéro RSAC : 830251216
Numéro de Carte Pro : CPI 83[Coordonnées masquées]00 011
Nom du Mandataire : Tania Trenty
Honoraires charges vendeur : 5%

Honoraires à la charge du vendeur. Non soumis au DPE. Les informations sur les risques auxquels ce bien est exposé sont disponibles sur le site Géorisques : georisques.gouv.fr.

Votre conseiller Revedimmo : Tania TRENTY
Agent commercial (Entreprise individuelle)
RSAC 850251216
RCP Fréjus
Voir plus

Référence: 2211-REVEDIMMO83
Honoraires à la charge du vendeur.

Prêt immobilier

Vous souhaitez connaître votre capacité d’emprunt et trouver le meilleur crédit immobilier ?
Réaliser une simulation gratuite

Commerce à EURRE
Commerce à EURRE
Commerce à EURRE
Commerce à EURRE
Commerce à EURRE
Commerce à EURRE
Commerce à EURRE
Commerce à EURRE
Commerce à EURRE
Ce site est protégé par reCAPTCHA la Politique de confidentialité et les Conditions d’utilisation de Google s’appliquent.
Obtenir un prêt immobilier au meilleur taux ?

En poursuivant votre navigation sans modifier vos paramètres, vous acceptez l'utilisation de cookies susceptibles de réaliser des statistiques de visite. Cliquez ici pour plus d'informations