Bénéficiez des services de nos partenaires locaux soigneusement sélectionnés
pour vous accompagner dans votre parcours d'achat immobilier

Maison chalet ugine 11 pièces 190 m2

— Ugine 73400 —
250 000 €
190 m² / 30 800 m²
7 pièces
balcon/terrassejardin

Nos partenaires locaux
En exclusivité sur Héry-sur-Ugine 73400 Savoie que se situe ce tènement immobilier plein de charme sur un terrain de 30 800 m² environ idéalement situé en lisière de forêt et de champs agricoles.
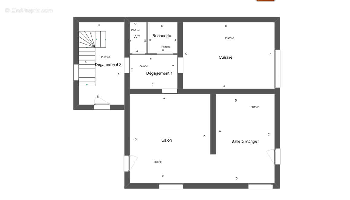
Un chalet à finir à rénover de 114 m² carrez environ sur trois niveaux avec au rez-de-chaussée : un salon /séjour, une cuisine aménagée, une buanderie, un WC avec lavabo, une pièce palière qui mène au 1er étage. Cet étage offre une pièce libre interprétation pouvant accueillir un espace rangements, deux chambres donnant accès à un balcon avec une exposition privilégiée est et le sud-est, une salle de douche avec un toilette, une pièce libre interprétation donnant sur l'extérieur peut offrir une belle suite parentale. Au 2e étage, une mezzanine espace qui multiplie les possibilités (bureau, bibliothèque, chambre) sur le même palier une porte dérobée nous mène aux combles aménageables. Deux caves viennent compléter ce bien.
Une maison de 80 m² à réhabiliter comprend quatre pièces et un sous-sol.
Côté jardin, à l'abri des regards vous permettra de savourer le calme et l'ensoleillement de cet espace dédié au farniente, pas que ce joli parc arboré vous invite à la balade sur vos terres, vous pourriez y croiser les vestiges de l'ancienne bergerie qui fait partie de la propriété. N'oublions pas, nous avons aussi un four à pain.
Ce lieu est un pied-à-terre idéal ou un lieu de vie hors norme pour acquéreurs sensibles au charme de l'atypique ! Rajoutons havre de paix à moins de 10 km de l'espace Diamant, domaine skiable de renom avec ses 192 km d'itinéraires de tout niveau.
DPE : E - GES : B - Montant estimé des dépenses annuelles d'énergies pour un usage standard entre 2170 euros et 2990 euros prix moyen des énergies indexés au 1er janvier 2021 (abonnements compris)
Prix du bien 250 000 euros, honoraires charge vendeur.
Pour visiter et vous accompagner dans votre projet, contactez Maïmouna LY, au [Coordonnées masquées] ou, par courriel à [Coordonnées masquées].
Selon l'article L.561.5 du Code Monétaire et Financier, pour l'organisation de la visite, la présentation d'une pièce d'identité vous sera demandée.
Cette présente annonce a été rédigée sous la responsabilité éditoriale de Maïmouna LY agissant sous le statut d'agent commercial immatriculé au RSAC CHAMBERY 839110053 auprès de SAS PROPRIETES PRIVEES, au capital de 44 920 euros, ZAC LE CHÊNE FERRÉ - 44 ALLÉE DES CINQ CONTINENTS 44120 VERTOU; SIRET 487 624 777 00040, RCS Nantes. Carte Professionnelle Transactions sur immeubles et fonds de commerce (T) et Gestion immobilière (G) n°CPI 44[Coordonnées masquées]10 388 délivrée par la CCI Nantes - Saint Nazaire. Compte séquestre n°3[Coordonnées masquées] BPA SAINT-SEBASTIEN-SUR-LOIRE (44230). Garantie GALIAN-SMABTP - 89 rue de la Boétie, 75008 Paris - n°28137 J pour 2 000 000 euros pour T et 120 000 euros pour G. Assurance responsabilité civile professionnelle par GALIAN-SMABTP n° de police 28137.J

Mandat réf : 395272 - Le professionnel garantit et sécurise votre projet immobilier.

Maïmouna LY (EI) Agent Commercial - Numéro RSAC : CHAMBERY 839110053 - .
Voir plus

Référence: 395272MLYPAMOPONMLY
Honoraires à la charge du vendeur.
DPE
A
B
C
D
E
F
G
GES
A
B
C
D
E
F
G

Prêt immobilier

Vous souhaitez connaître votre capacité d’emprunt et trouver le meilleur crédit immobilier ?
Réaliser une simulation gratuite

Maison à UGINE
Maison à UGINE
Maison à UGINE
Maison à UGINE
Maison à UGINE
Maison à UGINE
Maison à UGINE
Maison à UGINE
Maison à UGINE
Maison à UGINE
Maison à UGINE
Maison à UGINE
Maison à UGINE
Maison à UGINE
Maison à UGINE
Maison à UGINE
Maison à UGINE
Ce site est protégé par reCAPTCHA la Politique de confidentialité et les Conditions d’utilisation de Google s’appliquent.
Obtenir un prêt immobilier au meilleur taux ?

En poursuivant votre navigation sans modifier vos paramètres, vous acceptez l'utilisation de cookies susceptibles de réaliser des statistiques de visite. Cliquez ici pour plus d'informations