Bénéficiez des services de nos partenaires locaux soigneusement sélectionnés
pour vous accompagner dans votre parcours d'achat immobilier

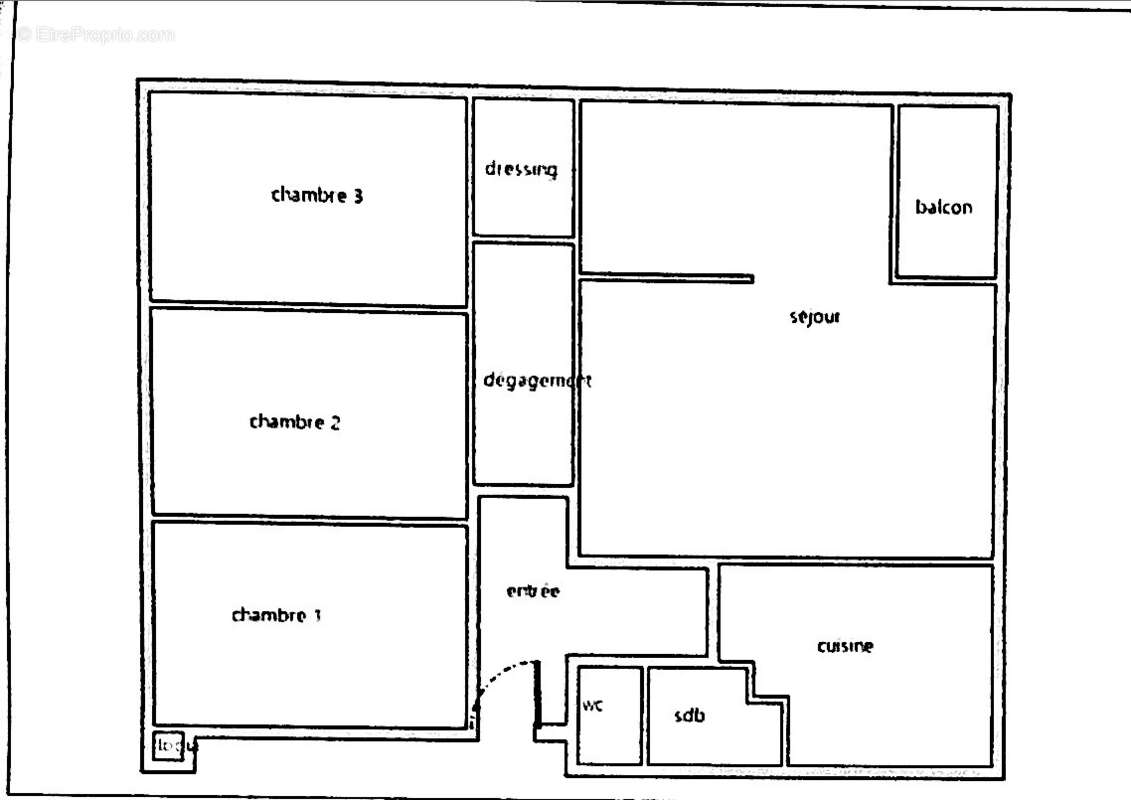
Appartement 4/5 pieces - 81m2 + cave bois lemaitre - marseille 13012

— Marseille-12e 13012 —
164 000 €
81 m²
5 pièces
balcon/terrasse

Nos partenaires locaux
Au cœur du quartier recherché de Bois Lemaître, AC’COM IMMOBILIER vous propose en EXCLUSIVITE un grand appartement, à rénover, de 81m2 (loi Carrez), situé dans un environnement calme et verdoyant au 2ème étage d’un immeuble de 4 niveaux sans ascenseur.

Ce bien se compose d’un double séjour lumineux de 28m2, d’une cuisine indépendante, de trois chambres exposées ouest, d’une salle de bain, d’un WC séparé ainsi que de nombreux rangements. Il se complète par une cave et le stationnement demeure libre dans la résidence. L'immeuble bénéficie d'un accès sécurisé par badge et interphone.

À deux pas des commerces, des écoles et des transports en commun, cet appartement bénéficie d’un cadre de vie idéal pour une famille ou un projet d’investissement. Il pourrait facilement devenir le 5 pièces d’origine en réduisant la partie séjour pour la création d’une 4ème chambre.

Ce bien au fort potentiel n’attend plus que votre touche personnelle : imaginez, rénovez, transformez-le à votre image. Venez le découvrir sans tarder lors d'une visite ! Une opportunité rare dans un secteur prisé ! Contactez-nous.

La copropriété compte 857 lots - Pas de procédure en cours. Charges annuelles de copropriété : 1816€ / Taxe Foncière : 1154€

Coût annuel estimé des dépenses d’énergie du logement pour une utilisation standard basé sur 5 usages (chauffage, eau chaude sanitaire, climatisation, auxiliaires) indexés sur les années 2021, 2022, 2023 : entre 1480 et 2070€.

Honoraires à la charge du vendeur / Mandat No35

Les informations sur les risques auxquels ce bien est exposé sont disponibles sur le site Géorisques https://www.georisques.gouv.fr
Voir plus

Référence: 35
Bien en copropriété. Nombre de lots : 857. Charges de copropriété : 1816 €.
Honoraires à la charge du vendeur.
Barème des honoraires
DPE
A
B
C
D
E
F
G
GES
A
B
C
D
E
F
G

Prêt immobilier

Vous souhaitez connaître votre capacité d’emprunt et trouver le meilleur crédit immobilier ?
Réaliser une simulation gratuite

Appartement à MARSEILLE-12E
Appartement à MARSEILLE-12E
Appartement à MARSEILLE-12E
Appartement à MARSEILLE-12E
Appartement à MARSEILLE-12E
Appartement à MARSEILLE-12E
Appartement à MARSEILLE-12E
Appartement à MARSEILLE-12E
Appartement à MARSEILLE-12E
Appartement à MARSEILLE-12E
Ce site est protégé par reCAPTCHA la Politique de confidentialité et les Conditions d’utilisation de Google s’appliquent.
Obtenir un prêt immobilier au meilleur taux ?

En poursuivant votre navigation sans modifier vos paramètres, vous acceptez l'utilisation de cookies susceptibles de réaliser des statistiques de visite. Cliquez ici pour plus d'informations