Bénéficiez des services de nos partenaires locaux soigneusement sélectionnés
pour vous accompagner dans votre parcours d'achat immobilier

Appartement 57m² à toulouse

— Toulouse 31200 —
99 500 €
57 m²
3 pièces
parkingbalcon/terrasse

Nos partenaires locaux
Idéal investisseur – Forom® Immobilier

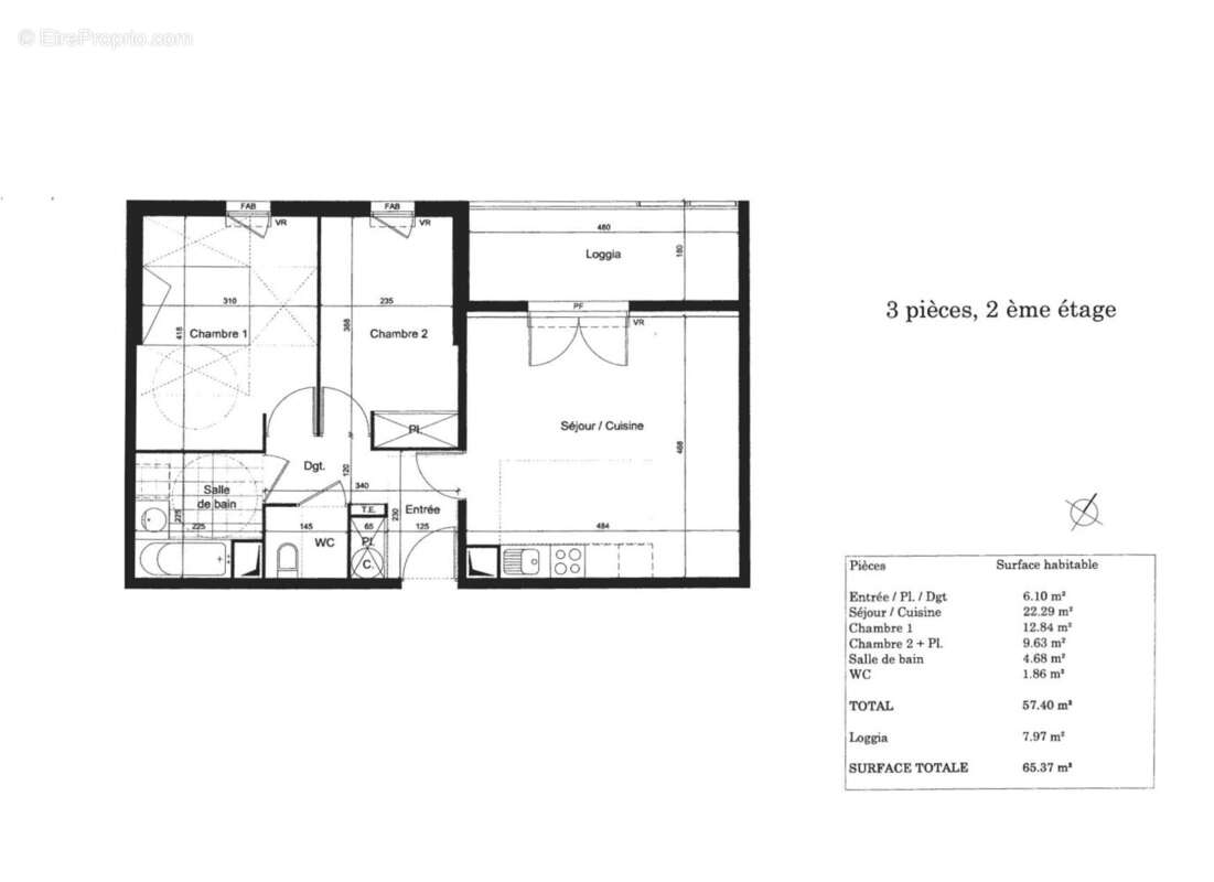
Forom Immobilier vous propose cet appartement T3 d'une surface d'environ 57,40 m² au 2ème étage situé dans une résidence sécurisée sur la commune de Toulouse.

Le logement dispose d'un séjour donnant sur une loggia, une cuisine, deux chambres, une salle de bains, un WC et une place de parking.

• Loyer mensuel : 629,51€ / mois soit 554,51€ HC + 75€ CL
• Rentabilité : 7,59% brute
• Charges : 112,23€ / mois
• Taxe foncière : 1 115€ / an
• Date de fin de bail : 15/03/2027
• DPE : C
• Nombre de lots : 53
• Honoraires charge vendeur

Honoraires à la charge du vendeur. Dans une copropriété de 53 lots. Aucune procédure n'est en cours. Classe énergie C, Classe climat A Montant moyen estimé des dépenses annuelles d'énergie pour un usage standard, établi à partir des prix de l'énergie de l'année 2024 : entre 640.00 et 920.00 €. Les informations sur les risques auxquels ce bien est exposé sont disponibles sur le site Géorisques : georisques.gouv.fr.
Voir plus

Référence: 3882-FOROM
Bien en copropriété. Nombre de lots : 53.
Honoraires à la charge du vendeur.
Barème des honoraires
DPE
A
B
C
D
E
F
G
GES
A
B
C
D
E
F
G

Prêt immobilier

Vous souhaitez connaître votre capacité d’emprunt et trouver le meilleur crédit immobilier ?
Réaliser une simulation gratuite

Appartement à TOULOUSE
Appartement à TOULOUSE
Appartement à TOULOUSE
Appartement à TOULOUSE
Appartement à TOULOUSE
Ce site est protégé par reCAPTCHA la Politique de confidentialité et les Conditions d’utilisation de Google s’appliquent.
Obtenir un prêt immobilier au meilleur taux ?

En poursuivant votre navigation sans modifier vos paramètres, vous acceptez l'utilisation de cookies susceptibles de réaliser des statistiques de visite. Cliquez ici pour plus d'informations