Bénéficiez des services de nos partenaires locaux soigneusement sélectionnés
pour vous accompagner dans votre parcours d'achat immobilier

Maison 140m² à le pre-d'auge

— Le Pre-D'auge 14340 —
421 000 €
140 m² / 32 096 m²
5 pièces
parkingbalcon/terrassejardin

Nos partenaires locaux
Je vous emmène aujourd'hui en plein coeur du Pays d'Auge. Au fond d'une impasse résidentielle, se trouve un grand portail blanc qui cache l'accès à un havre de paix; Une maison Normande contemporaine de 1992 sur un terrain urbanisé de 2500 m²; Je précise car pour ce qui est du reste, ce sont des terres agricoles qui jouxtent la maison soit environ 3 hectares; Ces dernières accueillent quelques chevaux à ce jour; Ceux de la maison bien entendu ! Et c'est là où je veux en venir; Je ne compte plus les demandes où les propriétaires d'équidés cherchent un logis pouvant les accueillir ensemble.
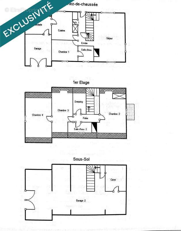
Mais parlons maintenant de la demeure; Un sous-sol complet avec cave, atelier, espaces de stockage et garage.
Au RDC, un salon / salle à manger, une suite parentale (chambre et salle d'eau), un WC séparé dans l'entrée, une cuisine, une buanderie et encore un garage qui peut très facilement se transformer en chambre.
À l'étage, Une grande chambre avec balcon côté soleil couchant (SUD / OUEST), une salle d'eau avec WC, deux chambres en enfilade. Le ballon d'eau chaude de 300l est alimenté par les panneaux solaires. Lisieux est à quelques minutes en voiture (gare et commerces) - Assainissement collectif (tout à l'égout)

Les informations sur les risques auxquels ce bien est exposé sont disponibles sur le site Géorisques : www.georisques.gouv.fr
Prix de vente : 421 000 ¤
Honoraires charge vendeur

Contactez votre conseiller SAFTI : Richard RICOUL, Tél. : [Coordonnées masquées], E-mail : [Coordonnées masquées] - EI - Agent commercial immatriculé au RSAC de LISIEUX sous le numéro 387 573 496.
Informations LOI ALUR :
Honoraires charge vendeur. (gedeon_26118_31622028)
Voir plus

Référence: 1428123
Honoraires à la charge du vendeur.
Barème des honoraires
DPE
A
B
C
D
E
F
G
GES
A
B
C
D
E
F
G

Prêt immobilier

Vous souhaitez connaître votre capacité d’emprunt et trouver le meilleur crédit immobilier ?
Réaliser une simulation gratuite

Photo 1 - Maison à LE PRE-D'AUGE
Photo 1
Photo 2 - Maison à LE PRE-D'AUGE
Photo 2
Photo 3 - Maison à LE PRE-D'AUGE
Photo 3
Photo 4 - Maison à LE PRE-D'AUGE
Photo 4
Photo 5 - Maison à LE PRE-D'AUGE
Photo 5
Photo 6 - Maison à LE PRE-D'AUGE
Photo 6
Photo 7 - Maison à LE PRE-D'AUGE
Photo 7
Photo 8 - Maison à LE PRE-D'AUGE
Photo 8
Photo 9 - Maison à LE PRE-D'AUGE
Photo 9
Ce site est protégé par reCAPTCHA la Politique de confidentialité et les Conditions d’utilisation de Google s’appliquent.
Obtenir un prêt immobilier au meilleur taux ?

En poursuivant votre navigation sans modifier vos paramètres, vous acceptez l'utilisation de cookies susceptibles de réaliser des statistiques de visite. Cliquez ici pour plus d'informations