Bénéficiez des services de nos partenaires locaux soigneusement sélectionnés
pour vous accompagner dans votre parcours d'achat immobilier

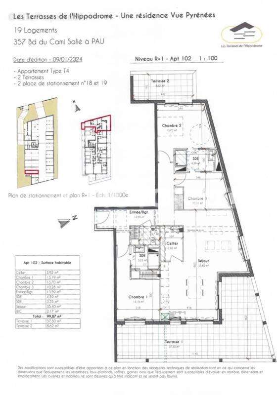
Appartement 4 pièces

— Pau 64000 —
355 000 €
99 m²
4 pièces
parkingbalcon/terrasseascenseur

Nos partenaires locaux
Chez Novarea, on aime investir sur l'avenir !

Ce confortable T4 se situe au 1er étage d'un immeuble neuf sur un secteur résidentiel prisé de Pau. Il se compose d'un séjour avec cuisine ouverte à aménager donnant sur une terrasse, de trois chambres dont une suite parentale et d'une salle d'eau. Pour le stationnement cet appartement est vendu avec deux places privatives sécurisées en sous-sol.

Ce que l'on aime chez Novarea : Chauffage au sol, batiment BBC, RT 2012, DPE en classe énergetique B

Cerise sur le gâteau : Choix des finitions et frais de notaire réduits. Prix promoteur.

Livraison Immédiate ; Envie d'en savoir plus ? Contactez vite Novarea !
Voir plus

Référence: 771-102
Bien en copropriété. Nombre de lots : 102.
Honoraires à la charge du vendeur.
DPE
A
B
C
D
E
F
G
GES
A
B
C
D
E
F
G

Prêt immobilier

Vous souhaitez connaître votre capacité d’emprunt et trouver le meilleur crédit immobilier ?
Réaliser une simulation gratuite

Appartement à PAU
Appartement à PAU
Appartement à PAU
Appartement à PAU
Ce site est protégé par reCAPTCHA la Politique de confidentialité et les Conditions d’utilisation de Google s’appliquent.
Obtenir un prêt immobilier au meilleur taux ?

En poursuivant votre navigation sans modifier vos paramètres, vous acceptez l'utilisation de cookies susceptibles de réaliser des statistiques de visite. Cliquez ici pour plus d'informations