Bénéficiez des services de nos partenaires locaux soigneusement sélectionnés
pour vous accompagner dans votre parcours d'achat immobilier

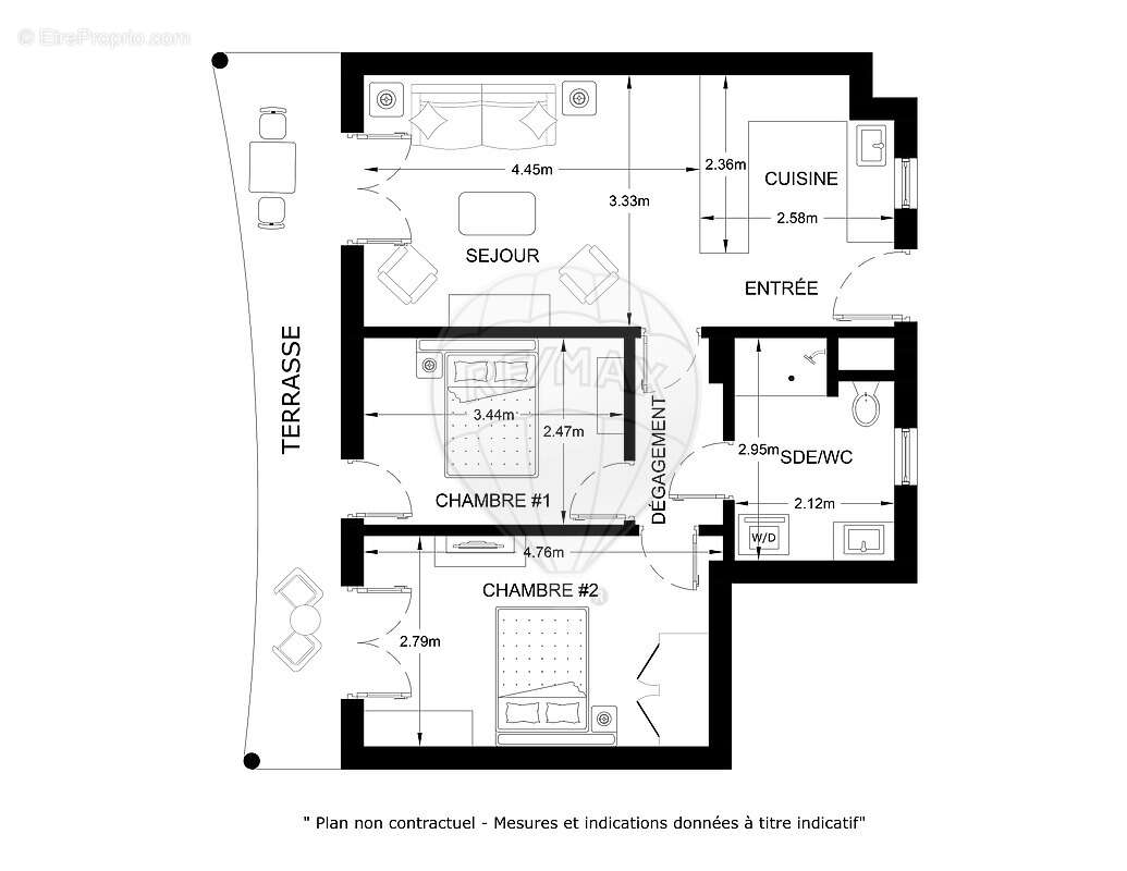
Appartement 2 chambre(s) à vendre

— Marseille-8e 13008 —
290 000 €
54 m²
3 pièces
balcon/terrassejardinascenseurpiscineaccès handicapé

Nos partenaires locaux
Appartement T3 de 54m2 - climatisé - idéalement situé à Sainte Anne Marseille 8eme dans une résidence de 2022 , il offre un cadre de vie agréable et moderne au milieu d'un parc.
Cet appartement se compose d'un séjour avec sa cuisine américaine équipée , de 2 chambres de 12 et 9 m2 , le tout donnant sur la terrasse sans vis à vis.
Profitez d'un accés privé à la piscine de l'immeuble, espace de détente privilégié, offrant une vue imprenable sur la baie de Marseille.
Il se trouve à proximité du parc Borély, des plages mais aussi des écoles, collèges et lycées, des transports en commun et des commerces .
Résidence sécurisée. Normes BBC (basse consommation) .

Bien en copropriété : 106 lots. Procédures en cours : 0. Montant moyen annuel de la quote-part de charges courantes : 1440 €/an. Estimation des coûts annuels d'énergie du logement : entre 270€ et 420€ par an. Les informations sur les risques auxquels ce bien est exposé sont disponibles sur le site Géorisques : www.georisques.gouv.fr Prix honoraires inclus : 290 000 € HAI Honoraires charges vendeurs. Agent commercial (EI) : Nathalie GEFFLOT - RSAC 918 579 814 Mandat n° 384 - Agence RCS 794 099 325 Carte professionnelle n° CPI 1310 2[Coordonnées masquées]15
Voir plus

Référence: 750211012-18
Honoraires à la charge du vendeur.
DPE
A
B
C
D
E
F
G
GES
A
B
C
D
E
F
G

Prêt immobilier

Vous souhaitez connaître votre capacité d’emprunt et trouver le meilleur crédit immobilier ?
Réaliser une simulation gratuite

Appartement à MARSEILLE-8E
Appartement à MARSEILLE-8E
Appartement à MARSEILLE-8E
Appartement à MARSEILLE-8E
Appartement à MARSEILLE-8E
Appartement à MARSEILLE-8E
Appartement à MARSEILLE-8E
Appartement à MARSEILLE-8E
Appartement à MARSEILLE-8E
Appartement à MARSEILLE-8E
Appartement à MARSEILLE-8E
Ce site est protégé par reCAPTCHA la Politique de confidentialité et les Conditions d’utilisation de Google s’appliquent.
Obtenir un prêt immobilier au meilleur taux ?

En poursuivant votre navigation sans modifier vos paramètres, vous acceptez l'utilisation de cookies susceptibles de réaliser des statistiques de visite. Cliquez ici pour plus d'informations