Commerce 514m² à annecy-le-vieux

— Annecy-Le-Vieux 74940 —
1 901 277 €
514 m²

Nouveau projet en VEFA d'un immeuble tertiaire ('l'atelier du Cairn') au sein du Parc des Glaisins à Annecy-le-Vieux (74940), livraison trimestre 1 de l'année 2025.

Au sein d'un immeuble de haut standing avec prestations haut de gamme, nous vous proposons à l'acquisition, des surfaces de bureaux de 112m² à 2 354m², avec 49 places de stationnements en sous-sol du bâtiment et 8 garages doubles privatifs.

Le programme est conforme aux normes relatives à la réglementation thermique RE 2020 en vigueur au moment du dépôt du Permis de Construire déposé le 10/11/22 et obtenu le 22/02/2023 par le promoteur, le tout faisant sous réglementation code du travail l'objet d'une certification BREEAM international new construction 2016 BREEAM GOOD.

Les locaux sont livrés avec planchers techniques (moquette répondant aux exigences du BREEAM) et faux plafonds (dalles minérales 600 x 600 mm). Reste le cloisonnement à prévoir selon votre concept.

Local à vélo sécurisé, parking extérieur, blocs sanitaires, ascenseur, ERP 5ème catégorie, etc. Notice descriptive complète sur demande.

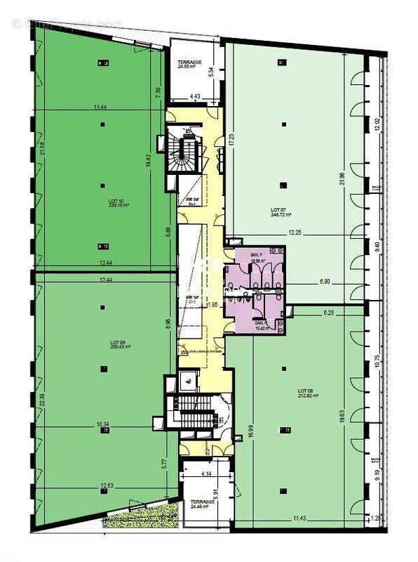
Détails des lots disponibles (possibilité de regrouper des lots) :
- R+1 - Lot 2 - 112,48m² - 403 829€ HT,
- R+1 - Lot 4 - 214,72m² - 774 116€ HT,
- R+1 - Lot 5 - 151,30m² - 545 481€ HT,
- R+2 - Lot 7 - 275,94m² + 31m² de balcon privatif - 1 020 989€ HT,
- R+2 - Lot 8 - 237,92m² + 28m² de balcon privatif - 880 288€ HT,
- R+2 - Lot 9 - 285,68m² + 24m² de terrasse privative - 1 057 033€ HT,
- R+2 - Lot 10 - 267,48m² + 24m² de terrasse privative - 989 662€ HT.

- Stationnement en sous-sol : 16 500€ HT / unité.
- Garage double en sous-sol : 40 000€ HT / unité.

Contact : [Coordonnées masquées] - [Coordonnées masquées].

RESEAU BROKERS® est le premier cabinet immobilier d'entreprise structuré en réseau de mandataires. Nous maillons avec notre équipe de 80 Brokers une grande partie du territoire national pour accompagner nos entreprises clientes dans leurs recherches de commerces, bureaux, locaux d'activités, immeubles et fonciers.
www.reseau-brokers.com

Honoraires à la charge du vendeur. DPE en cours. Les informations sur les risques auxquels ce bien est exposé sont disponibles sur le site Géorisques : georisques.gouv.fr.

Votre conseiller AVINIM RESEAU BROKERS : Nicolas PARROCHE
Agent commercial (Entreprise individuelle)
RSAC 478800212
RCP 7953190/S17093745
Voir plus

Référence: VP45442-BROKERS
Honoraires à la charge du vendeur.
Barème des honoraires

Prêt immobilier

Vous souhaitez connaître votre capacité d’emprunt et trouver le meilleur crédit immobilier ?
Réaliser une simulation gratuite

Commerce à ANNECY-LE-VIEUX
Commerce à ANNECY-LE-VIEUX
Commerce à ANNECY-LE-VIEUX
Commerce à ANNECY-LE-VIEUX
Commerce à ANNECY-LE-VIEUX
Commerce à ANNECY-LE-VIEUX
Commerce à ANNECY-LE-VIEUX
Commerce à ANNECY-LE-VIEUX
Commerce à ANNECY-LE-VIEUX
Ce site est protégé par reCAPTCHA la Politique de confidentialité et les Conditions d’utilisation de Google s’appliquent.
Obtenir un prêt immobilier au meilleur taux ?

En poursuivant votre navigation sans modifier vos paramètres, vous acceptez l'utilisation de cookies susceptibles de réaliser des statistiques de visite. Cliquez ici pour plus d'informations