Commerce 353m² à haubourdin

— Haubourdin 59320 —
164 000 €
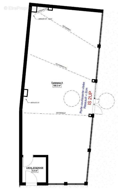
353 m²

Haubourdin – Bureaux / commerces neufs & réhabilités – à partir de 85 m²

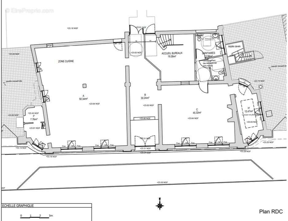
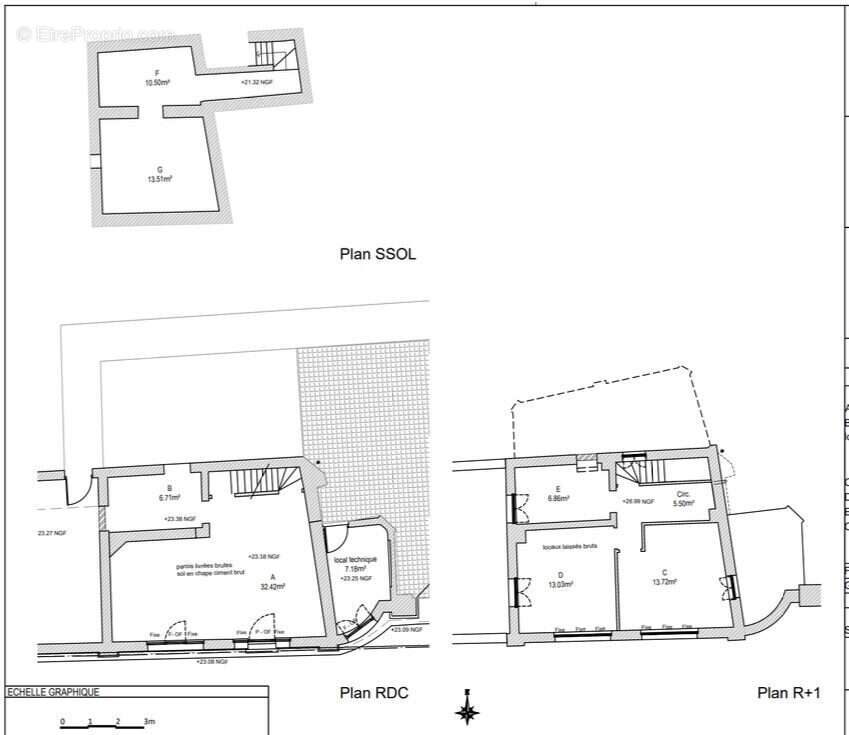
Dans un programme mixte livré fin 2026 (112 logements + commerces), plusieurs cellules commerciales ou bureaux à vendre, en RDC ou R+1, neufs ou réhabilités, livrés bruts à aménager (fluides en attente).

Surfaces disponibles : de 85 m² à 353 m²
Prix à partir de : 164 000 € HT
TVA 20% + frais notaire 8% + honoraires 5,5% HT

15 min de Lille centre 16 min en TER
Stationnements en sous-sol et en aérien

Idéal professions libérales, commerces, services, bureaux, ou investisseurs.

Contact : Thibault DELECROIX – [Coordonnées masquées] – Immo Pour Pro

Dans une copropriété de 120 lots. Aucune procédure n'est en cours. DPE en cours. Les informations sur les risques auxquels ce bien est exposé sont disponibles sur le site Géorisques : georisques.gouv.fr.

Votre conseiller Immo Pour Pro : Président - Thibault DELECROIX
Carte T CPI59[Coordonnées masquées]00073
RCP MRCSIMO202205FR00000000042709A00
Voir plus

Référence: VP360-IMMOPOURPRO
Bien en copropriété. Nombre de lots : 120.
Honoraires à la charge de l'acquéreur.
Barème des honoraires

Prêt immobilier

Vous souhaitez connaître votre capacité d’emprunt et trouver le meilleur crédit immobilier ?
Réaliser une simulation gratuite

Commerce à HAUBOURDIN
Commerce à HAUBOURDIN
Commerce à HAUBOURDIN
Commerce à HAUBOURDIN
Commerce à HAUBOURDIN
Commerce à HAUBOURDIN
Commerce à HAUBOURDIN
Commerce à HAUBOURDIN
Commerce à HAUBOURDIN
Ce site est protégé par reCAPTCHA la Politique de confidentialité et les Conditions d’utilisation de Google s’appliquent.
Obtenir un prêt immobilier au meilleur taux ?

En poursuivant votre navigation sans modifier vos paramètres, vous acceptez l'utilisation de cookies susceptibles de réaliser des statistiques de visite. Cliquez ici pour plus d'informations