Bénéficiez des services de nos partenaires locaux soigneusement sélectionnés
pour vous accompagner dans votre parcours d'achat immobilier

Duplex terrasse dernier etage

— Nancy 54000 —
351 000 €
110 m²
4 pièces
parkingbalcon/terrasse

Nos partenaires locaux
DUPLEX TERRASSE DERNIER ETAGE

Visitez ce bien autrement en vous rendant de suite sur notre site internet et découvrez plus de photos également.

Vue, volumes et vibes au sommet de Nancy !
Bienvenue dans ce duplex T4 perché au dernier étage, avec terrasse plein ciel qui va faire des jaloux !
Installé dans une résidence ultra récente avec ascenseur, ce bijou jamais habité vous attend sur les hauteurs de Nancy secteur Libération, à deux pas des commodités, des accès autoroutiers et à 10 minutes du centre-ville...
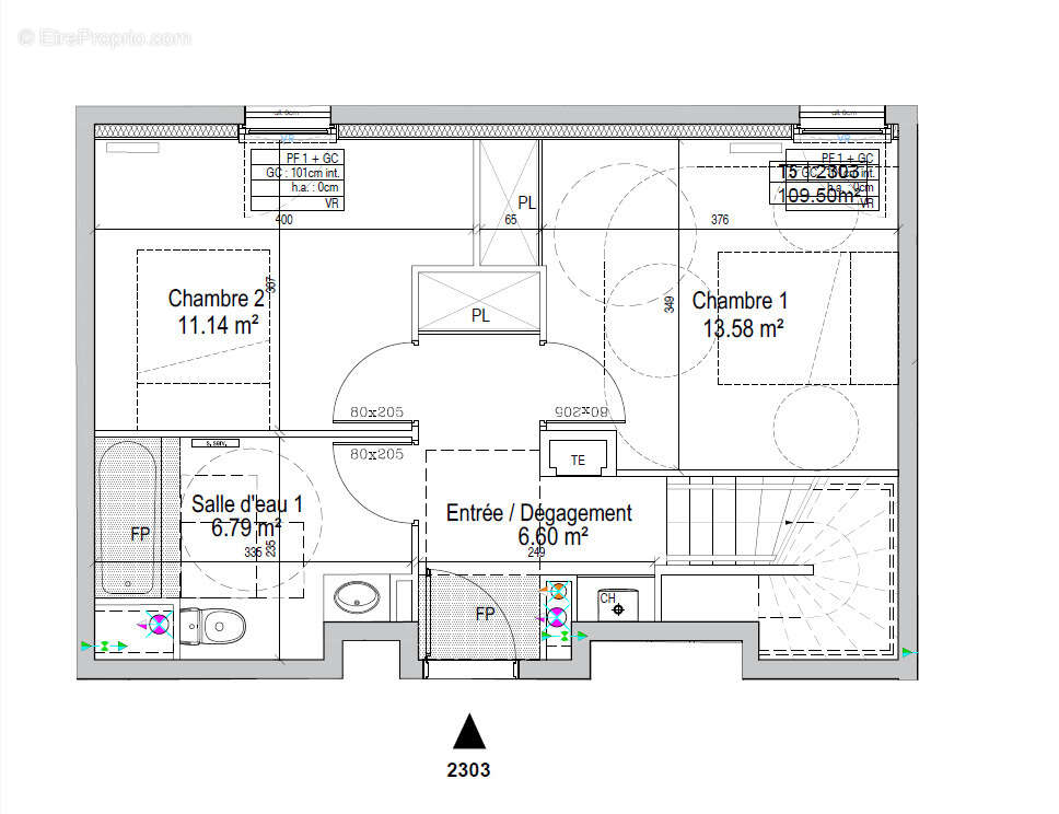
Au menu : un premier niveau avec une entrée, deux chambres, une salle de bain avec WC.
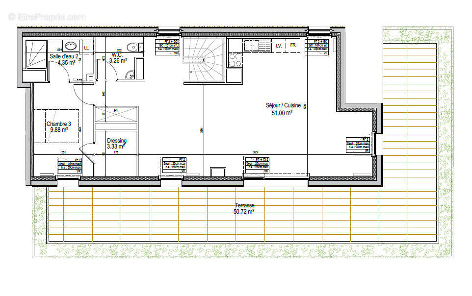
Puis on grimpe, et là… coup de cœur immédiat : une pièce de vie XXL de 51 m2 baignée de lumière, qui s’ouvre sur une terrasse de 50 m2 sans vis-à-vis, exposée Sud-Est. La dolce vita, version nancéienne.
Et ce n’est pas fini : une vraie suite parentale vous y attend avec dressing, salle d’eau privative, accès direct à la terrasse… et un deuxième WC, parce qu’on n’est jamais trop bien équipé.
Deux places de parking rien que pour vous !
Côté confort, on est au top : chauffage individuel au gaz, isolation thermique et acoustique au cordeau, prestations modernes et soignées et à deux pas de la forêt de Haye et de la zone de la Sapinière.
Bref, vous aimez l’espace, la lumière, l’intimité et le confort ? Ce duplex coche toutes les cases et vous en offre même un peu plus.

Votre agent commercial n’est pas glacial, il sait :
Estimer (sans louche)
Photographier (sans l’aide de Gérard et son smartphone)
Visiter (sans gaffe à la Pierre Richard, quoique !)
Tirer les plans (à l’échelle, pas sur la comète)
Vendre (si on change 4 lettres à BLIQUE, ça fait VENDUE, eh ouais !)
Cette annonce vous est proposée par - EIRL - NoRSAC: 829579358, Enregistré au Greffe du tribunal de commerce de Nancy
Voir plus

Bien en copropriété. Nombre de lots : 15. Charges de copropriété : 1200 €.
Barème des honoraires
DPE
A
B
C
D
E
F
G
GES
A
B
C
D
E
F
G

Prêt immobilier

Vous souhaitez connaître votre capacité d’emprunt et trouver le meilleur crédit immobilier ?
Réaliser une simulation gratuite

Appartement à NANCY
Appartement à NANCY
Appartement à NANCY
Appartement à NANCY
Appartement à NANCY
Appartement à NANCY
Appartement à NANCY
Appartement à NANCY
Appartement à NANCY
Appartement à NANCY
Appartement à NANCY
Appartement à NANCY
Appartement à NANCY
Appartement à NANCY
Appartement à NANCY
Appartement à NANCY
Appartement à NANCY
Appartement à NANCY
Appartement à NANCY
Appartement à NANCY
Appartement à NANCY
Appartement à NANCY
Appartement à NANCY
Appartement à NANCY
Ce site est protégé par reCAPTCHA la Politique de confidentialité et les Conditions d’utilisation de Google s’appliquent.
Obtenir un prêt immobilier au meilleur taux ?

En poursuivant votre navigation sans modifier vos paramètres, vous acceptez l'utilisation de cookies susceptibles de réaliser des statistiques de visite. Cliquez ici pour plus d'informations