Bénéficiez des services de nos partenaires locaux soigneusement sélectionnés
pour vous accompagner dans votre parcours d'achat immobilier

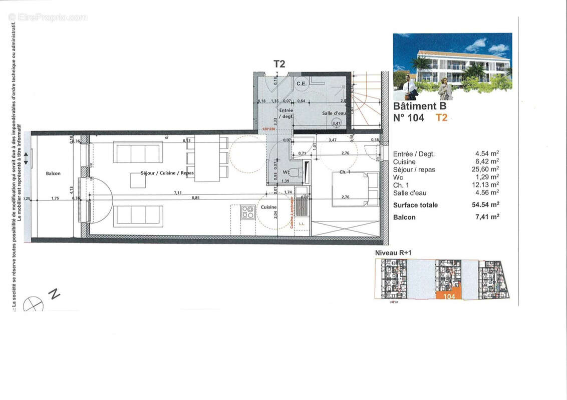
Appartement 2 pieces - 54.54 m2

— Saujon 17600 —
240 094 €
55 m²
2 pièces
balcon/terrasse

Nos partenaires locaux
SAUJON, à proximité immédiate du centre ville et de ses commerces, résidence sécurisée, avec ascenseur, Hemma Home vous propose cet appartement de 2 pièces de 54.54 m2 habitables, au 1er étage, composé d'une entrée/dégagement,salle d'eau, toilettes, d'un espace cuisine ouvert sur le séjour donnant sur un balcon plein SUD/OUEST, une chambre. PRIX TTC. VENTE VEFA. FRAIS DE NOTAIRES REDUITS. LIVRAISON 1er semestre 2027. NORMES RT2012. REF B104. Possibilité d'un parking en supplément. Honoraires agence à la charge du vendeur SITE : https://villajeannedarcsaujon.fr
Voir plus

Référence: 260
Honoraires à la charge du vendeur.
Barème des honoraires

Prêt immobilier

Vous souhaitez connaître votre capacité d’emprunt et trouver le meilleur crédit immobilier ?
Réaliser une simulation gratuite

Appartement à SAUJON
Appartement à SAUJON
Appartement à SAUJON
Appartement à SAUJON
Appartement à SAUJON
Appartement à SAUJON
Ce site est protégé par reCAPTCHA la Politique de confidentialité et les Conditions d’utilisation de Google s’appliquent.
Obtenir un prêt immobilier au meilleur taux ?

En poursuivant votre navigation sans modifier vos paramètres, vous acceptez l'utilisation de cookies susceptibles de réaliser des statistiques de visite. Cliquez ici pour plus d'informations