Sevrier - projet terrain + maison

— Sevrier 74320 —
1 035 000 €
183 m² / 877 m²
5 pièces
parkingpiscine

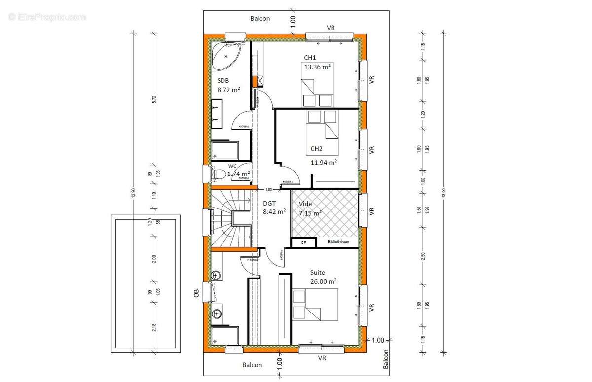
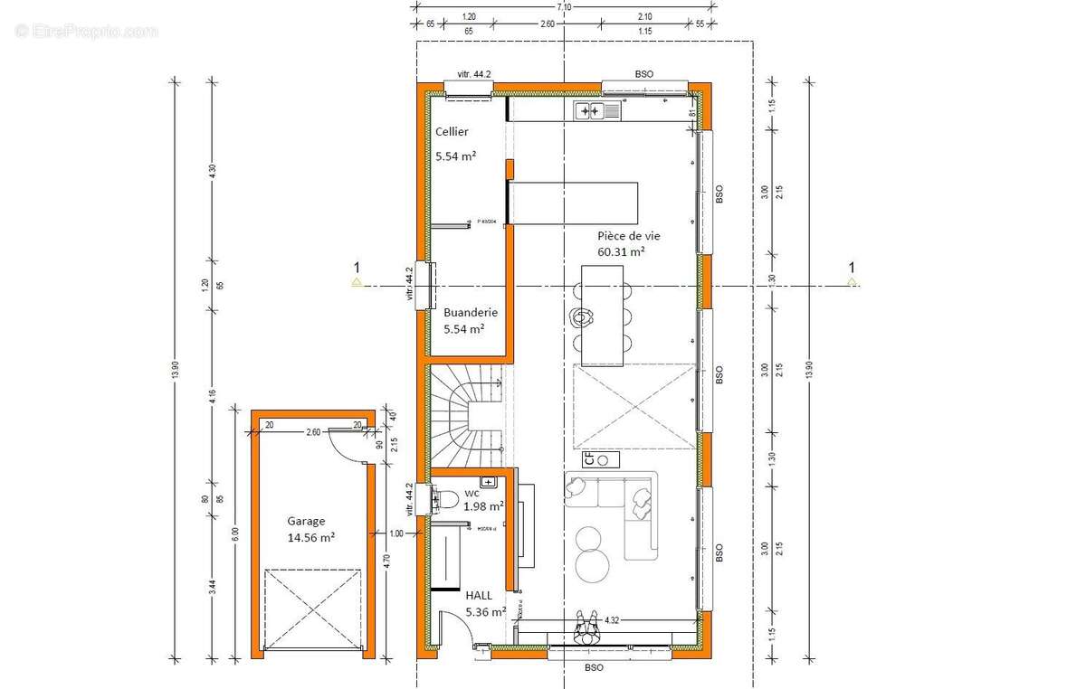
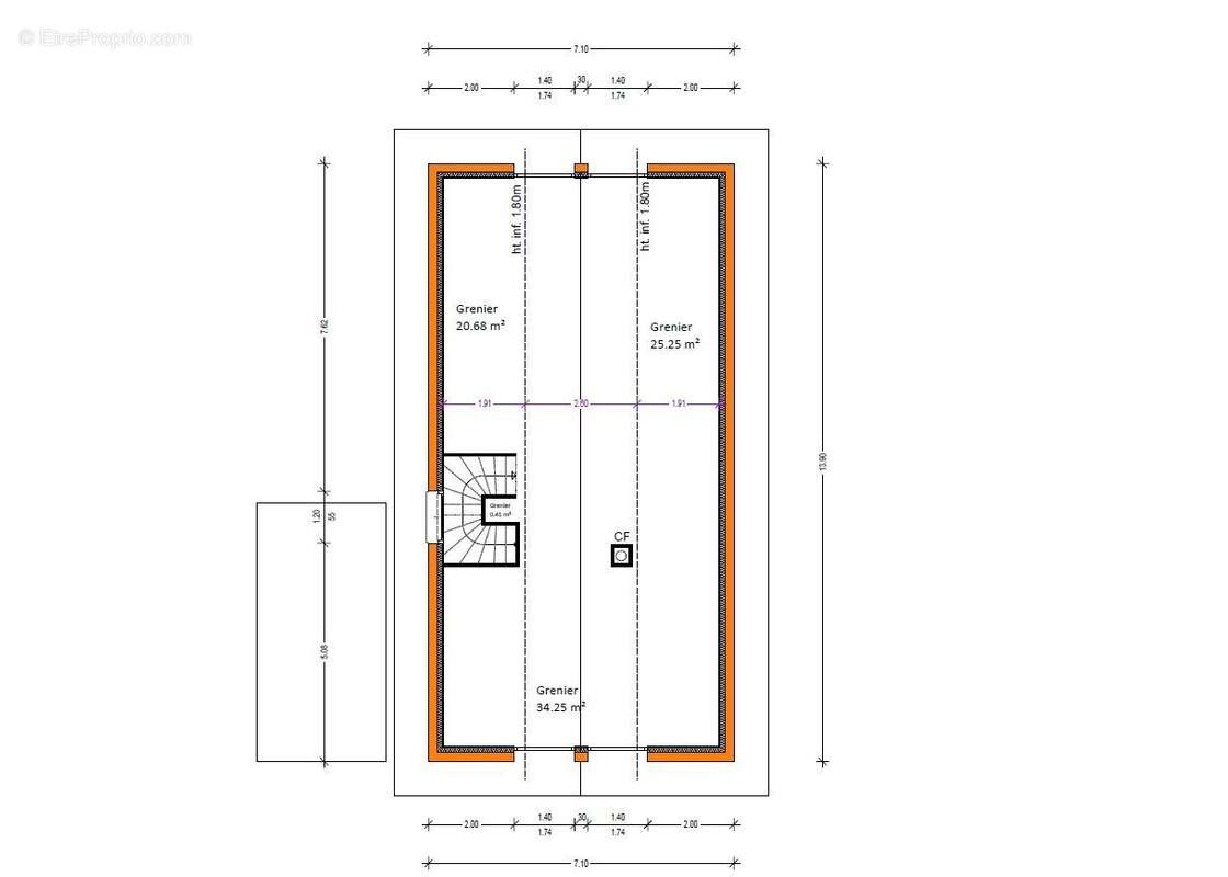
Sur la commune de SEVRIER, nous vous proposons un projet de Terrain + Maison avec permis de construire obtenu et levé de tout recours (démarage travaux trés rapide). Sur un terrain de 877m², venez construire votre maison d'une surface de 183.16m² habitable, avec au rez de chaussée, une grande pièce de vie de + 60m² ouverte sur la terrasse et le jardin, une buanderie et un cellier. A l'étage : Une suite parentale avec dressing et salle d'eau, 2 chambres, une salle de bains (douche et baignoire) et un WC séparé. Dans les combles, en fonction de vos besoins vous pourriez créer 1 ou 2 chambres supplémentaires, permettant de profiter d'un maximum de 5 chambres. En annexe, vous disposerez d'un garage et de 3 stationnements extérieurs. Inclus dans les Prestations : Volets roulants BSO, domotique, plancher chauffant rdc + etage, parquet et carrelage, ... Il restera à votre charge l'aménagement des placards, les meubles des salles d'eau, la cuisine et la piscine 3x6m. 1 035 000€ Terrain + Maison (Frais de Notaire + VRD + Etudes de sols + Frais annexes, compris dans le prix) Les informations sur les risques auxquels ce bien est exposé sont disponibles sur le site Géorisques : www.georisques.gouv.fr
Voir plus

Référence: 250505
Honoraires à la charge du vendeur.
Barème des honoraires

Prêt immobilier

Vous souhaitez connaître votre capacité d’emprunt et trouver le meilleur crédit immobilier ?
Réaliser une simulation gratuite

Maison à SEVRIER
Maison à SEVRIER
Maison à SEVRIER
Maison à SEVRIER
Maison à SEVRIER
Maison à SEVRIER
Maison à SEVRIER
Ce site est protégé par reCAPTCHA la Politique de confidentialité et les Conditions d’utilisation de Google s’appliquent.
Obtenir un prêt immobilier au meilleur taux ?

En poursuivant votre navigation sans modifier vos paramètres, vous acceptez l'utilisation de cookies susceptibles de réaliser des statistiques de visite. Cliquez ici pour plus d'informations