Bénéficiez des services de nos partenaires locaux soigneusement sélectionnés
pour vous accompagner dans votre parcours d'achat immobilier

Rare - maison de campagne, au calme 4/5 chambres sur terrain > 2 500 m2

— Fontaine-Simon 28240 —
149 000 €
160 m² / 2 640 m²
6 pièces
parkingbalcon/terrasse

Nos partenaires locaux
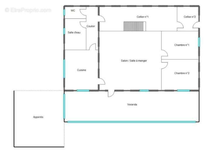
FONTAINE-SIMON (28240) – Au cœur du Parc naturel régional du Perche, Maison de campagne d'environ 160 m2, en lisière de forêt. - Au rez-de-chaussée, un salon-cheminée, une grande cuisine dinatoire, 2 CHAMBRES, une salle d'eau, des toilettes séparées. Belle VERANDA offrant un cadre de vie unique et une vue imprenable sur le jardin. - Au 1er étage, 2 CHAMBRES, des toilettes séparées, un grenier à aménager. Chauffage gaz de ville – Tout-à-l'égout (assainissement conforme) - TOITURE NEUVE (mars 2025) A RENOVER – BEAU POTENTIEL Jardin arboré de plus de 2 640 m2 au calme avec beaux arbres fruitiers (cerisier, noyer, poiriers, pommiers, …) DEPENDANCES, ATELIER - Carport 2 voitures VUE DEGAGEE sur jardin et campagne. Proche de toutes les commodités : commerces du village (boucherie, poste, épicerie, … Camping et activités de loisirs proches (téléski nautique et parc aquatique) Proche gare de La Loupe reliant Paris, à moins de 10 km, desservie par des TER depuis Paris Montparnasse, trajets d'environ 1h20 min pour Paris . Idéal pour rejoindre également Chartres, Dreux et l'agglomération eurélienne. Bretoncelles (~12 km), Courville-sur-Eure (~17 km), Nogent-le-Rotrou (~25 km) En voiture, environ 1h40 min de Paris A voir très vite ! Pour toute demande de renseignements et visites, contactez Caroline LOGEAIS - 5 PIECES ET PLUS, 1ère agence immobilière spécialisée dans les biens familiaux de minimum 3 CHAMBRES (Paris, Ile-de-France / Bordeaux, Bassin d'Arcachon) www.5piecesetplus.com (réf. 9201111893) Prix TTC et Honoraires à charge vendeur TTC . Prix TTC et Honoraires à charge vendeur TTC Les informations sur les risques auxquels ce bien est exposé sont disponibles sur le site georisques.gouv.fr
Voir plus

Référence: 1049
Honoraires à la charge du vendeur.
Barème des honoraires
DPE
A
B
C
D
E
F
G
GES
A
B
C
D
E
F
G

Prêt immobilier

Vous souhaitez connaître votre capacité d’emprunt et trouver le meilleur crédit immobilier ?
Réaliser une simulation gratuite

Maison à FONTAINE-SIMON
Maison à FONTAINE-SIMON
Maison à FONTAINE-SIMON
Maison à FONTAINE-SIMON
Maison à FONTAINE-SIMON
Maison à FONTAINE-SIMON
Maison à FONTAINE-SIMON
Maison à FONTAINE-SIMON
Maison à FONTAINE-SIMON
Maison à FONTAINE-SIMON
Maison à FONTAINE-SIMON
Maison à FONTAINE-SIMON
Maison à FONTAINE-SIMON
Maison à FONTAINE-SIMON
Maison à FONTAINE-SIMON
Maison à FONTAINE-SIMON
Ce site est protégé par reCAPTCHA la Politique de confidentialité et les Conditions d’utilisation de Google s’appliquent.
Obtenir un prêt immobilier au meilleur taux ?

En poursuivant votre navigation sans modifier vos paramètres, vous acceptez l'utilisation de cookies susceptibles de réaliser des statistiques de visite. Cliquez ici pour plus d'informations