Pas de maison à Soumaintrain pour le moment. Découvrez dès maintenant les maisons dans le département Yonne.
Bénéficiez des services de nos partenaires locaux soigneusement sélectionnés
pour vous accompagner dans votre parcours d'achat immobilier

Appartement 2 pièces + mezzanine - jean jaures / jamin

— Reims 51100 —
135 000 €
57 m²
2 pièces

Nos partenaires locaux
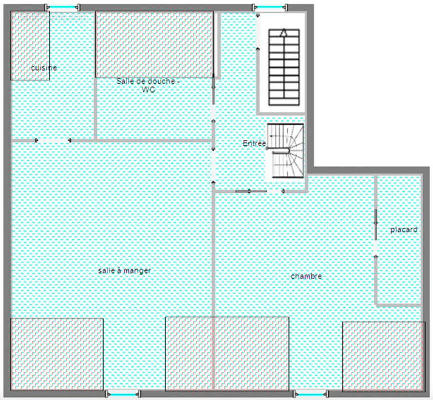
Découvrez cet appartement lumineux situé au 3ème et dernier étage d'une superficie de 57 m2 au sol (39m2 carrez ) qui se compose d'une entrée s'ouvrant sur un escalier qui vous amène salon lumineux, une cuisine aménagée et équipée, une chambre, une mezzanine et une salle d'eau avec WC séparé. Vendu Loué 560 euros/mois (525 euros+35 euros) (Projection de départ 08/2026) Caractéristiques principales : Belle pièce de vie spacieuse et lumineuse, Cuisine ouverte entièrement équipée, Une chambre, une salle d'eau avec wc séparé une Mezzanine Un cellier accessible des communs complète ce bien. Possibilité d'acquérir en sus un parking au sein de la copropriété. Surface : 57,10m2 au sol - 39m2 loi carrez Référence du bien : 2507 Prix du bien : 135 000 euros Honoraires à la charge du Vendeur Honoraires TTC : 10 000 euros Prix net vendeur : 125 000 euros Charges copropriété 480 euros/an -27 lots de copropriété -Pas de procédure en cours. Date de réalisation des diagnostics : 10/01/2025 DPE : E Consommation énergie Primaire : 328/kWh/m2/an Consommation énergie Final : 142/ kWh/m2/an GES : B Émissions de gaz à effet de serre : 10kgCO2/m2.an Chauffage individuel électrique, huisserie en PVC Double Vitrage. Les informations sur les risques auxquels ce bien est exposé sont disponibles sur le site Géorisques : www.georisques.gouv.fr Annonce rédigée par CLEMENT RABET agent commercial immatriculé au RSAC de Reims sous le numéro 910618032 Titulaire de la carte de démarchage immobilier pour le compte de la SAS ATELIER IMMO N° SIREN : 888 682 002 Copropriété de 27 lots (Pas de procédure en cours). Charges annuelles : 480 euros.
Voir plus

Référence: 2507
Bien en copropriété. Nombre de lots : 27. Charges de copropriété : 480 €.
Honoraires à la charge du vendeur.
DPE
A
B
C
D
E
F
G
GES
A
B
C
D
E
F
G

Prêt immobilier

Vous souhaitez connaître votre capacité d’emprunt et trouver le meilleur crédit immobilier ?
Réaliser une simulation gratuite

Appartement à REIMS
Appartement à REIMS
Appartement à REIMS
Appartement à REIMS
Appartement à REIMS
Appartement à REIMS
Appartement à REIMS
Appartement à REIMS
Appartement à REIMS
Ce site est protégé par reCAPTCHA la Politique de confidentialité et les Conditions d’utilisation de Google s’appliquent.
Obtenir un prêt immobilier au meilleur taux ?

En poursuivant votre navigation sans modifier vos paramètres, vous acceptez l'utilisation de cookies susceptibles de réaliser des statistiques de visite. Cliquez ici pour plus d'informations