Maison des années 60 avec grand potentiel à brioude*

— Brioude 43100 —
131 000 €
143 m² / 725 m²
8 pièces
parkingjardin

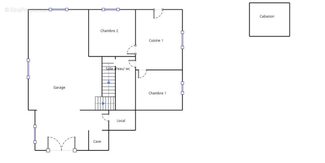
Située sur les hauteurs de Brioude, à proximité du centre-ville, cette maison des années 1960 offre un beau potentiel après rénovation. Sur un terrain de 725 m2, cette propriété d'une surface totale d'environ 143 m2 se compose d'une maison principale d'environ 100 m2 à l'étage, comprenant 4 chambres spacieuses, et d'un appartement indépendant en rez-de-chaussée d'environ 43 m2 avec 2 chambres, idéal pour du locatif ou un projet d'aménagement complémentaire.
Elle dispose d'un chauffage central au fuel
La toiture est en bon état ainsi que la plupart des menuiseries, mais des travaux sont à prévoir au niveau de l'électricité, de l'isolation, ainsi que pour la rénovation intérieure (cuisine, salle de bain, etc.). Un grand garage vient compléter cette maison, offrant ainsi de nombreuses possibilités d'aménagement. Ne manquez pas cette opportunité sur les hauteurs de Brioude !
 
Pour toutes demandes d'informations Veuillez contacter Sandy o760356681
Cette annonce vous est proposée par BERNARD SANDY - - NoRSAC: 888 824 125, Enregistré au Greffe du tribunal de commerce de brioude Les informations sur les risques auxquels le bien est exposé sont disponibles sur le site Géorisques : www.georisques.gouv.fr
Voir plus

Référence: 460
Honoraires à la charge du vendeur.
Barème des honoraires
DPE
A
B
C
D
E
F
G
GES
A
B
C
D
E
F
G

Prêt immobilier

Vous souhaitez connaître votre capacité d’emprunt et trouver le meilleur crédit immobilier ?
Réaliser une simulation gratuite

Maison à BRIOUDE
Maison à BRIOUDE
Maison à BRIOUDE
Maison à BRIOUDE
Maison à BRIOUDE
Maison à BRIOUDE
Maison à BRIOUDE
Maison à BRIOUDE
Maison à BRIOUDE
Maison à BRIOUDE
Maison à BRIOUDE
Maison à BRIOUDE
Maison à BRIOUDE
Maison à BRIOUDE
Maison à BRIOUDE
Maison à BRIOUDE
Maison à BRIOUDE
Maison à BRIOUDE
Maison à BRIOUDE
Maison à BRIOUDE
Ce site est protégé par reCAPTCHA la Politique de confidentialité et les Conditions d’utilisation de Google s’appliquent.
Obtenir un prêt immobilier au meilleur taux ?

En poursuivant votre navigation sans modifier vos paramètres, vous acceptez l'utilisation de cookies susceptibles de réaliser des statistiques de visite. Cliquez ici pour plus d'informations