Maison 130m² à saint-cesaire

— Saint-Cesaire 17770 —
272 000 €
130 m² / 3 300 m²
5 pièces
parkingbalcon/terrassejardin

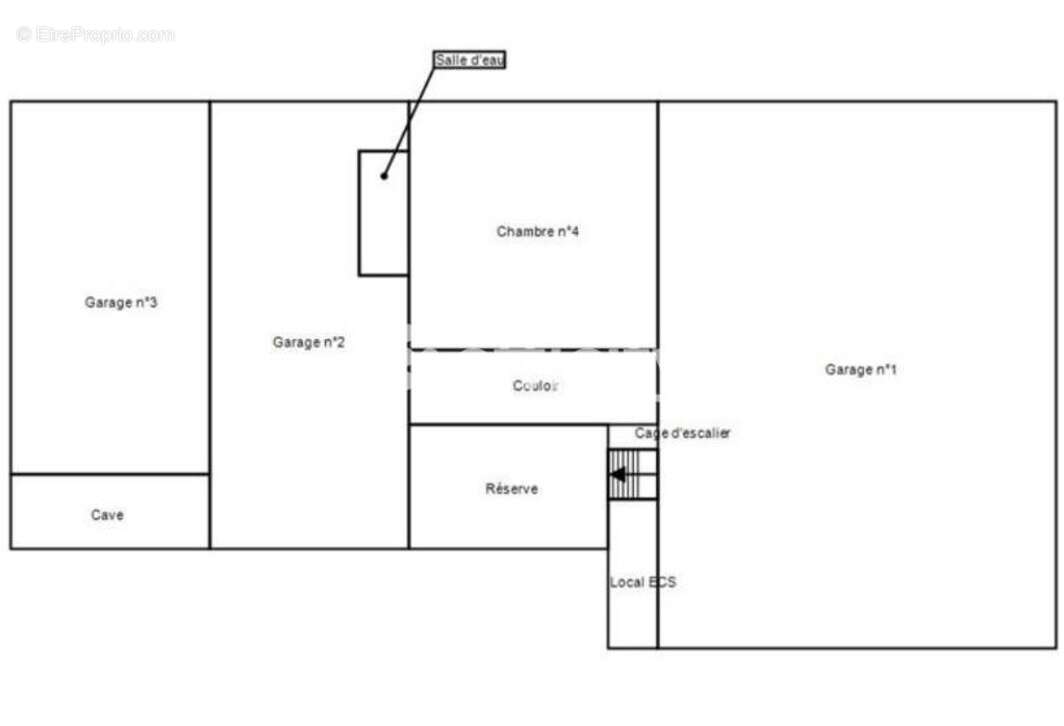
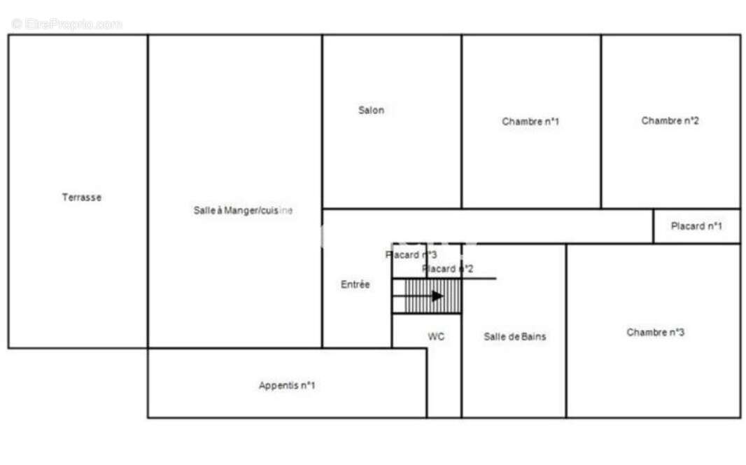
17700 SAINT CESAIRE - MAISON DE 130M² AVEC TERRAIN - DOUBLE GARAGE DE 90M² - 4 CHAMBRES - ABRI CAMPING CAR - 10 MIN DE SAINTES - EffiCity, l'Agence qui estime votre bien en ligne, vous propose en EXCLUSIVITÉ cette maison familiale, située au calme, d'une surface de 130 m². Elle est édifiée sur un terrain paysagé de 3300 m². Cette maison nous offre de plain-pied un séjour de 52m² avec cuisine équipée, 3 CHAMBRES, une salle de bain avec douche et baignoire de 10m² et un WC séparé. Vous retrouverez au rez de jardin, une chambre de 16m² avec salle d'eau et un double GARAGE de 90m². (La maison est raccordée au tout à l'égout, la taxe foncière est de 1000€/an, présence d'un insert à bois, abri pour camping-car). Pour plus d'informations, contactez Malik BENOUEDDANE par téléphone au [Coordonnées masquées] ou mail : [Coordonnées masquées]
Les informations sur les risques auxquels ce bien est exposé sont disponibles sur le site Georisque : georisques. gouv. fr
Malik Benoueddane - EI - est Agent Commercial mandataire en immobilier, immatriculé au Registre Spécial des Agents Commerciaux du Tribunal de Commerce de Saintes sous le n°834561946.
Siège social du mandant : effiCity, 48 avenue de Villiers - 75017 PARIS - Société par Actions Simplifiée, société au capital de 132 373,05 euros, immatriculée au RCS Paris 497 617 746 et titulaire de la Carte professionnelle CPI 75[Coordonnées masquées]02 025 - CCI Paris IDF - Caisse de Garantie : GALIAN Assurances 89 rue de la Boétie 75008 Paris
Voir plus

Référence: 173797
Honoraires d'agence de 4.62% à la charge de l'acquéreur
Barème des honoraires
DPE
A
B
C
D
E
F
G
GES
A
B
C
D
E
F
G

Prêt immobilier

Vous souhaitez connaître votre capacité d’emprunt et trouver le meilleur crédit immobilier ?
Réaliser une simulation gratuite

Maison à SAINT-CESAIRE
Maison à SAINT-CESAIRE
Maison à SAINT-CESAIRE
Maison à SAINT-CESAIRE
Maison à SAINT-CESAIRE
Maison à SAINT-CESAIRE
Maison à SAINT-CESAIRE
Maison à SAINT-CESAIRE
Maison à SAINT-CESAIRE
Maison à SAINT-CESAIRE
Maison à SAINT-CESAIRE
Maison à SAINT-CESAIRE
Maison à SAINT-CESAIRE
Maison à SAINT-CESAIRE
Maison à SAINT-CESAIRE
Maison à SAINT-CESAIRE
Maison à SAINT-CESAIRE
Maison à SAINT-CESAIRE
Maison à SAINT-CESAIRE
Ce site est protégé par reCAPTCHA la Politique de confidentialité et les Conditions d’utilisation de Google s’appliquent.
Obtenir un prêt immobilier au meilleur taux ?

En poursuivant votre navigation sans modifier vos paramètres, vous acceptez l'utilisation de cookies susceptibles de réaliser des statistiques de visite. Cliquez ici pour plus d'informations