Bénéficiez des services de nos partenaires locaux soigneusement sélectionnés
pour vous accompagner dans votre parcours d'achat immobilier

Lovagny - sur les hauteurs

— Lovagny 74330 —
672 000 €
120 m² / 780 m²
5 pièces
parkingjardin

Nos partenaires locaux
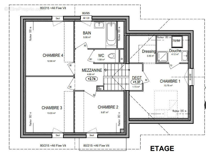
Au calme, bien exposé, et bénéficiant d'une belle vue, découvrez ce projet de construction d'une maison de 120 m2, conçue pour s'adapter à son environnement et offrir un confort de vie optimal.
Implantée sur un terrain de 780 m2, cette villa propose une architecture en cohérence et adptée à son contexte local.
Conçue en demi niveaux, vous bénéficierez en rez de jardin d'un agréable espace de vie baigné en lumière, ouvert sur une terrasse exposée sud-ouest.
A l'étage, vous disposerez de quatres belles chambres (dont une suite parentale et sa propre salle d'eau) ainsi qu'une salle de bain indépendante.
Pour plus de commodités, la maison dispose d'un garage accolé. Le modèle présenté est une base évolutive : chaque élément peut être revu et ajusté pour répondre à vos attentes et besoins, tout en respectant le contraintes techniques et réglementaires.
Le prix présenté comprend le terrain, le coût de construction, un estimatif des taxes et des vrd. Hors frais de mutation.
Voir plus

Barème des honoraires

Prêt immobilier

Vous souhaitez connaître votre capacité d’emprunt et trouver le meilleur crédit immobilier ?
Réaliser une simulation gratuite

Maison à LOVAGNY
Maison à LOVAGNY
Maison à LOVAGNY
Maison à LOVAGNY
Maison à LOVAGNY
Ce site est protégé par reCAPTCHA la Politique de confidentialité et les Conditions d’utilisation de Google s’appliquent.
Obtenir un prêt immobilier au meilleur taux ?

En poursuivant votre navigation sans modifier vos paramètres, vous acceptez l'utilisation de cookies susceptibles de réaliser des statistiques de visite. Cliquez ici pour plus d'informations