Maison 142m² à miremont

— Miremont 31190 —
355 000 €
142 m² / 2 266 m²
5 pièces
parkingbalcon/terrassejardinpiscine

Iad France - Fabien Heleine vous propose : * Maison Familiale avec Jardin Arboré à Miremont *

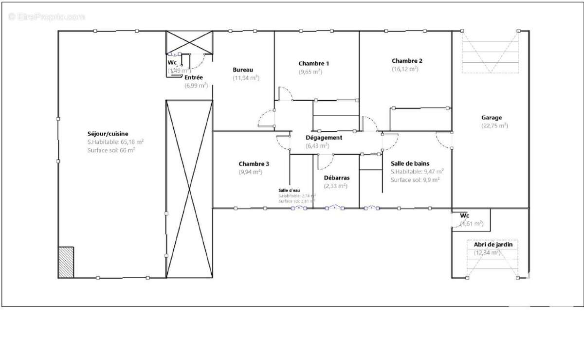
Maison individuelle d'environ 140 m² sur un terrain d'environ 2200 m² située sur la commune de Miremont. Construction des années 1960 avec une extension de 1997 et très bien entretenue.
Vendue libre de toutes occupations.

- 2 chambres avec placard.
- 1 chambre avec salle d'eau.
- 1 bureau avec placard.
- 1 salle de bain avec baignoire, wc et douche.
- Cuisine ouverte sur le séjour.
- Séjour / cuisine d'environ 65 m² lumineux et accueillant.
- 3 Wc dont 1 situé à l'extérieur près de la piscine.
- 1 garage d'environ 22 m².
- 1 cellier.
- 2 petites dépendances.
- 1 abri de jardin.

* Ses atouts * :
- Jardin arboré de 2260 m² : arbres fruitiers (figuiers, cerisier, pruniers, noisetier).
- 2 belles terrasses carrelées dont une couverte.
- Volets roulants motorisés thermiques et phoniques.
- Grand espace pour le stationnement des véhicules.
- Piscine chauffée par pompe à chaleur.
- Fibre Optique.
- Climatisation réversible.
- Interphone et alarme vidéo.
- Orientation sud.
- chauffage par gaz et / ou pompe à chaleur et cheminée avec insert.

* VIE PRATIQUE *
- Commerces et services de proximité : pizzéria - boulangerie - boucherie - épicier - coiffeur - cabinet médical (infirmières, kiné / ostéo, psychologue, sages femmes, orthophoniste), pharmacie.
- Micro-crèche à 4 km.
- Ecole (du CP au CM2) à 1.5 km.
- Supermarchés à Auterive (Carrefour Market à 6km) et Eaunes (Super U à 6 km).
- Gare SNCF ligne Auterive / Toulouse-Matabiau à 8 km.
- Toulouse centre (Capitole) à 34 km.
- Aéroport Toulouse Blagnac à 35 km.
- Accès autoroute : A64 à 15 km et A61 à 25 km.

Pour plus d'informations, contactez-moi : Fabien HELEINE, conseiller immobilier indépendant, disponible 7 jours sur 7.
D'autres détails sont disponibles sur iadfrance. fr - Mandat 1805179

Honoraires d'agence à la charge du vendeur.
Information d'affichage énergétique sur ce bien : classe ENERGIE C indice 168 et classe CLIMAT C indice 18. Les informations sur les risques auxquels ce bien est exposé, y compris l'obligation légale de débroussaillement, sont disponibles sur le site Géorisques : http://www.georisques.gouv.fr.
La présente annonce immobilière a été rédigée sous la responsabilité éditoriale de M Fabien Heleine mandataire indépendant en immobilier (sans détention de fonds), agent commercial de la SAS I@D France immatriculé au RSAC de Toulouse sous le numéro 510560790, titulaire de la carte de démarchage immobilier pour le compte de la société I@D France SAS.
Informations LOI ALUR :
Honoraires charge vendeur. (gedeon_6727_31652843)
Voir plus

Référence: 1805179
Honoraires à la charge du vendeur.
DPE
A
B
C
D
E
F
G
GES
A
B
C
D
E
F
G

Prêt immobilier

Vous souhaitez connaître votre capacité d’emprunt et trouver le meilleur crédit immobilier ?
Réaliser une simulation gratuite

Photo 1 - Maison à MIREMONT
Photo 1
Photo 2 - Maison à MIREMONT
Photo 2
Photo 3 - Maison à MIREMONT
Photo 3
Photo 4 - Maison à MIREMONT
Photo 4
Photo 5 - Maison à MIREMONT
Photo 5
Photo 6 - Maison à MIREMONT
Photo 6
Photo 7 - Maison à MIREMONT
Photo 7
Photo 8 - Maison à MIREMONT
Photo 8
Photo 9 - Maison à MIREMONT
Photo 9
Ce site est protégé par reCAPTCHA la Politique de confidentialité et les Conditions d’utilisation de Google s’appliquent.
Obtenir un prêt immobilier au meilleur taux ?

En poursuivant votre navigation sans modifier vos paramètres, vous acceptez l'utilisation de cookies susceptibles de réaliser des statistiques de visite. Cliquez ici pour plus d'informations