A vendre bureaux équipés nanterre (92) – proche rer a, a86 & a14

— Nanterre 92000 —
1 207 000 €
527 m²
1 pièce
parkingascenseur

Localisation : Nanterre (92000), à 10 minutes à pied de la station Nanterre Préfecture (RER A)
Transports en commun : Bus 159, 160, 163, 304 et 305
Accès routiers : À proximité immédiate des autoroutes A86 et A14

Descriptif du bien :

Nous vous proposons à la vente des bureaux entièrement équipés, situés au 4ème étage d'un immeuble sécurisé et facilement accessible. Idéal pour toute activité tertiaire souhaitant allier confort, accessibilité et image professionnelle.

Caractéristiques principales :

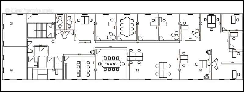
Surface totale : 527m2.
Bureaux cloisonnés. (voir plan)
Salle de réunion. (voir plan)
Climatisation réversible.
Accès PMR.
Ascenseur.
Contrôle d'accès & vidéosurveillance.
Accès local au RdC 14m2.
4 places de parking incluses.
10 places de parking supplémentaires disponibles en option pour 100 000 €.

Atouts :

Environnement calme et professionnel.
Accès rapide à La Défense et à Paris.
Très bonne desserte en transports en commun.( + Lignes 15 & 18 en 2027)
Excellent rapport qualité/emplacement/équipements.
Immeuble bien entretenu et sécurisé.
DPE B.

Contact : Pour plus d'informations ou planifier une visite, contactez-nous au [Coordonnées masquées] ou par e-mail à [Coordonnées masquées] Nombre de lots de la copropriété : 255, Montant moyen annuel de la quote-part de charges (budget prévisionnel) : 16500€ soit 1375€ par mois. Les honoraires d'agence sont à la charge de l'acquéreur, soit 4,96% TTC du prix hors honoraires.
Les informations sur les risques auxquels ce bien est exposé sont disponibles sur le site Géorisques : www. georisques. gouv. fr.

Réseau Immobilier CAPIFRANCE - Votre agent commercial (RSAC N°340 138 858 - Greffe de NANTERRE) Vincent UETTWILLER Entrepreneur Individuel [Coordonnées masquées] - Réf.916479
Voir plus

Référence: 340939817186
Bien en copropriété. Nombre de lots : 255. Charges de copropriété : 1375 €.
DPE
A
B
C
D
E
F
G
GES
A
B
C
D
E
F
G

Prêt immobilier

Vous souhaitez connaître votre capacité d’emprunt et trouver le meilleur crédit immobilier ?
Réaliser une simulation gratuite

Commerce à NANTERRE
Commerce à NANTERRE
Commerce à NANTERRE
Commerce à NANTERRE
Commerce à NANTERRE
Commerce à NANTERRE
Commerce à NANTERRE
Ce site est protégé par reCAPTCHA la Politique de confidentialité et les Conditions d’utilisation de Google s’appliquent.
Obtenir un prêt immobilier au meilleur taux ?

En poursuivant votre navigation sans modifier vos paramètres, vous acceptez l'utilisation de cookies susceptibles de réaliser des statistiques de visite. Cliquez ici pour plus d'informations