Immeuble de rapport

— Audierne 29770 —
2 375 000 €
1 035 m²

L'agence Foncia Achat / Vente de DOUARNENEZ vous propose le bien immobilier ci-dessous :
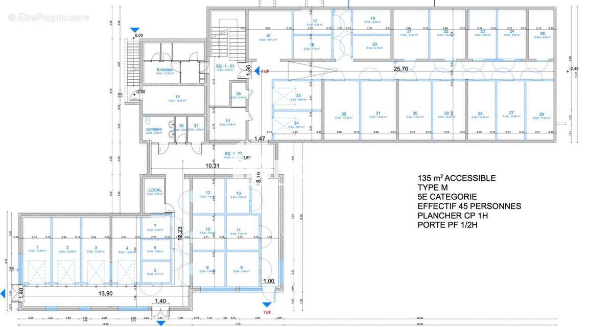
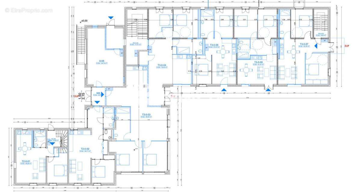
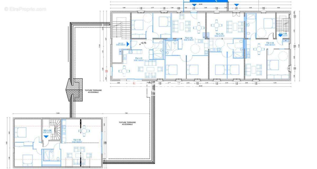
Immeuble comprenant 16 appartements (14 T3 et 2 T2) et 37 box en cours de création sur un terrain constructible de 6 283m2.

Rentabilité annuelle prévisionnelle de 180 000€.
Travaux restant à financer de 580 000€. (devis et factures disponibles)

La vente de l'immeuble se fait par la cession des parts de la société qui en est propriétaire.

Les informations sur les risques auxquels ce bien est exposé sont disponibles sur le site Géorisques.
Voir plus

Référence: 00684542
Barème des honoraires

Prêt immobilier

Vous souhaitez connaître votre capacité d’emprunt et trouver le meilleur crédit immobilier ?
Réaliser une simulation gratuite

Appartement à AUDIERNE
Appartement à AUDIERNE
Appartement à AUDIERNE
Appartement à AUDIERNE
Appartement à AUDIERNE
Appartement à AUDIERNE
Appartement à AUDIERNE
Appartement à AUDIERNE
Appartement à AUDIERNE
Appartement à AUDIERNE
Appartement à AUDIERNE
Ce site est protégé par reCAPTCHA la Politique de confidentialité et les Conditions d’utilisation de Google s’appliquent.
Obtenir un prêt immobilier au meilleur taux ?

En poursuivant votre navigation sans modifier vos paramètres, vous acceptez l'utilisation de cookies susceptibles de réaliser des statistiques de visite. Cliquez ici pour plus d'informations