Bénéficiez des services de nos partenaires locaux soigneusement sélectionnés
pour vous accompagner dans votre parcours d'achat immobilier

Terrain 1000m² à le trevoux

— Le Trevoux 29380 —
86 500 €
1 000 m²

Nos partenaires locaux
Iad France - Lauriane Le Cam vous propose : EXCLUSIVITE - Terrain constructible de 1000 m²

Terrain borné à vendre sur la commune du Trévoux. Il offre une opportunité exceptionnelle de construire votre future maison dans un environnement verdoyant. Implantation libre sur le terrain et pas d'emprise au sol maximale. Avec une exposition sud, vous pourrez y construire une maison avec une luminosité optimale tout au long de la journée, idéale pour créer des espaces de vie agréables. Réseaux et tout à l'égout à proximité!

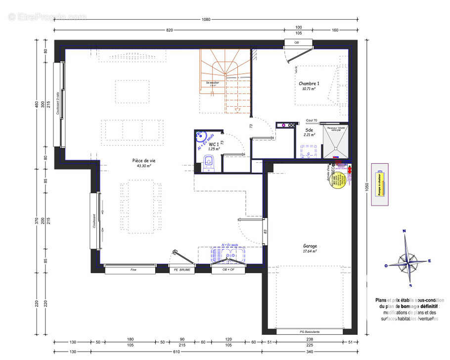
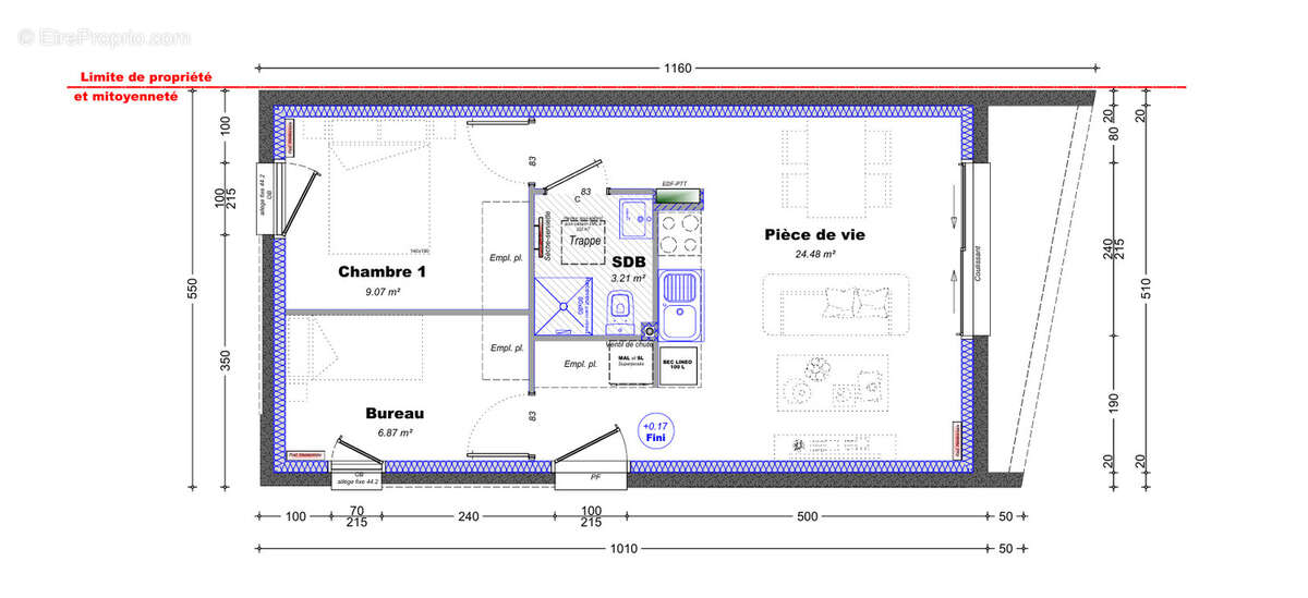
Les plans, devis et photos de synthèse établis par TRECOBAT de toutes les options possibles sur ce terrain sont disponibles sur demande, qu'il s'agisse de l'implantation d'une maison de plain pied, d'une maison à étage ou encore de deux maisons de 50 m² pour investissement locatif.

Ce terrain vous fera profiter d'un cadre agréable par sa proximité immédiate au centre bourg, aux commodités du quotidien, aux transports et aux écoles.

Le PLU est disponible également sur demande, n'hésitez pas à me solliciter pour plus d'informations ou pour organiser une visite.
Votre projet de construction commence ici!

Honoraires d'agence à la charge du vendeur.
Bien non soumis au DPE. Les informations sur les risques auxquels ce bien est exposé, y compris l'obligation légale de débroussaillement, sont disponibles sur le site Géorisques : http://www.georisques.gouv.fr.
La présente annonce immobilière a été rédigée sous la responsabilité éditoriale de Mme Lauriane Le Cam mandataire indépendant en immobilier (sans détention de fonds), agent commercial de la SAS I@D France immatriculé au RSAC de LORIENT sous le numéro 925227100, titulaire de la carte de démarchage immobilier pour le compte de la société I@D France SAS.
Informations LOI ALUR :
Honoraires charge vendeur. (gedeon_6727_30484747)
Voir plus

Référence: 1671352
Honoraires à la charge du vendeur.

Prêt immobilier

Vous souhaitez connaître votre capacité d’emprunt et trouver le meilleur crédit immobilier ?
Réaliser une simulation gratuite

Photo 1 - Terrain à LE TREVOUX
Photo 1
Photo 2 - Terrain à LE TREVOUX
Photo 2
Photo 3 - Terrain à LE TREVOUX
Photo 3
Photo 4 - Terrain à LE TREVOUX
Photo 4
Photo 5 - Terrain à LE TREVOUX
Photo 5
Photo 6 - Terrain à LE TREVOUX
Photo 6
Photo 7 - Terrain à LE TREVOUX
Photo 7
Photo 8 - Terrain à LE TREVOUX
Photo 8
Photo 9 - Terrain à LE TREVOUX
Photo 9
Ce site est protégé par reCAPTCHA la Politique de confidentialité et les Conditions d’utilisation de Google s’appliquent.
Obtenir un prêt immobilier au meilleur taux ?

En poursuivant votre navigation sans modifier vos paramètres, vous acceptez l'utilisation de cookies susceptibles de réaliser des statistiques de visite. Cliquez ici pour plus d'informations