Appartement 38m² à beynes

— Beynes 78650 —
107 000 €
38 m²
1 pièce
parking

Iad France - Audrey Fronton vous propose : BEYNES - Dans ce quartier calme et recherché - Idéal investisseur !
Studio fonctionnel et lumineux sans vis à vis, déjà loué, offrant une rentabilité immédiate.

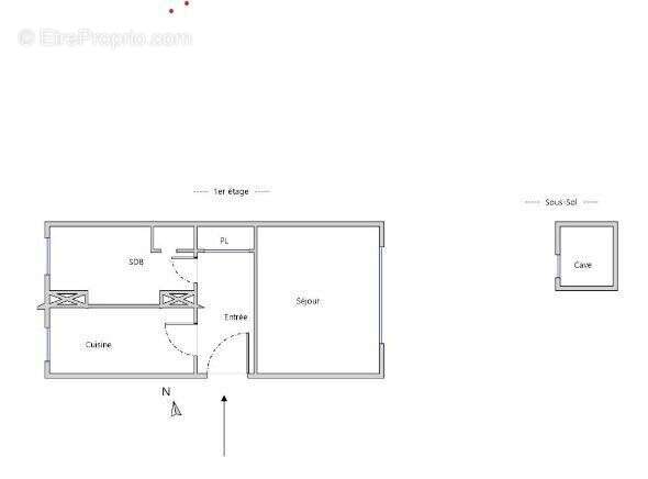
Situé au 1er étage sans ascenseur, appartement type studio d'environ 38 m² composé d'une entrée avec rangements, séjour, cuisine séparée, salle de bains avec WC et rangements.
Une cave et une place de parking extérieur complètent ce bien.

Appartement vendu loué avec bail renouvelé pour 3 ans depuis mars 2025.
Loyer mensuel : 600 euros charges comprises.

SES ATOUTS : Rentabilité brute attractive d'environ 7%, proche gare, double vitrage PVC.


La presente annonce immobiliere vise 3 lots situés dans une copropriété de 723 lots au total et ne faisant l'objet d'aucune procédure en cours citée à l'article L. 721-1 du code de la construction et de l'habitation. Montant moyen mensuel de charges déclaré par le vendeur : 105.42¤ par mois (soit 1265 ¤ annuel). Honoraires d'agence à la charge du vendeur.
Information d'affichage énergétique sur ce bien : classe ENERGIE E indice 244 et classe CLIMAT E indice 52. Les informations sur les risques auxquels ce bien est exposé, y compris l'obligation légale de débroussaillement, sont disponibles sur le site Géorisques : http://www.georisques.gouv.fr.
La présente annonce immobilière a été rédigée sous la responsabilité éditoriale de Mme Audrey Fronton mandataire indépendant en immobilier (sans détention de fonds), agent commercial de la SAS I@D France immatriculé au RSAC de VERSAILLES sous le numéro 883457087, titulaire de la carte de démarchage immobilier pour le compte de la société I@D France SAS.
Informations LOI ALUR :
Soumis au régime de copropriété.
Nombre de lots : 723.
Quote part annuelle(moyenne) : 1265 euros.
Honoraires charge vendeur. (gedeon_6727_31687266)
Voir plus

Référence: 1818625
Bien en copropriété. Nombre de lots : 723. Charges de copropriété : 1265 €.
Honoraires à la charge du vendeur.
DPE
A
B
C
D
E
F
G
GES
A
B
C
D
E
F
G

Prêt immobilier

Vous souhaitez connaître votre capacité d’emprunt et trouver le meilleur crédit immobilier ?
Réaliser une simulation gratuite

Photo 1 - Appartement à BEYNES
Photo 1
Photo 2 - Appartement à BEYNES
Photo 2
Photo 3 - Appartement à BEYNES
Photo 3
Photo 4 - Appartement à BEYNES
Photo 4
Photo 5 - Appartement à BEYNES
Photo 5
Photo 6 - Appartement à BEYNES
Photo 6
Ce site est protégé par reCAPTCHA la Politique de confidentialité et les Conditions d’utilisation de Google s’appliquent.
Obtenir un prêt immobilier au meilleur taux ?

En poursuivant votre navigation sans modifier vos paramètres, vous acceptez l'utilisation de cookies susceptibles de réaliser des statistiques de visite. Cliquez ici pour plus d'informations