Bénéficiez des services de nos partenaires locaux soigneusement sélectionnés
pour vous accompagner dans votre parcours d'achat immobilier

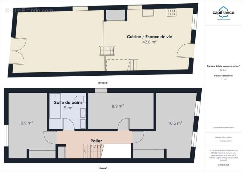
Dpt haute garonne (31), à vendre proche de villefranche de lauragais maison p4 de 83 m²

— Villefranche-De-Lauragais 31290 —
130 000 €
83 m² / 56 m²
4 pièces

Nos partenaires locaux
Exclusivité - Spécial investisseur
Maison de village dans un charmant village Audois à 10 minutes de Villefranche de Lauragais, proche de toutes commodités à pied.
Au rez-de-chaussée, séjour/cuisine aménagée traversant.
A l'étage, 3 chambres, salle de bains/wc.
Les plus : rénovée intégralement en 2013, idéalement située à pied des commerces et écoles, climatisation, libre de toute occupation. La maison n'a pas d'extérieur
A visiter sans tarder ! Les honoraires sont à la charge du vendeur.
Les informations sur les risques auxquels ce bien est exposé sont disponibles sur le site Géorisques : www. georisques. gouv. fr.

Réseau Immobilier CAPIFRANCE - Votre agent commercial (RSAC N°817 569 403 - Greffe de TOULOUSE) Alain ARTICO Entrepreneur Individuel à Responsabilité Limitée [Coordonnées masquées] - Réf.900488
Voir plus

Référence: 340936201634
Honoraires à la charge du vendeur.
DPE
A
B
C
D
E
F
G
GES
A
B
C
D
E
F
G

Prêt immobilier

Vous souhaitez connaître votre capacité d’emprunt et trouver le meilleur crédit immobilier ?
Réaliser une simulation gratuite

Maison à VILLEFRANCHE-DE-LAURAGAIS
Maison à VILLEFRANCHE-DE-LAURAGAIS
Maison à VILLEFRANCHE-DE-LAURAGAIS
Maison à VILLEFRANCHE-DE-LAURAGAIS
Maison à VILLEFRANCHE-DE-LAURAGAIS
Maison à VILLEFRANCHE-DE-LAURAGAIS
Maison à VILLEFRANCHE-DE-LAURAGAIS
Maison à VILLEFRANCHE-DE-LAURAGAIS
Maison à VILLEFRANCHE-DE-LAURAGAIS
Maison à VILLEFRANCHE-DE-LAURAGAIS
Maison à VILLEFRANCHE-DE-LAURAGAIS
Maison à VILLEFRANCHE-DE-LAURAGAIS
Maison à VILLEFRANCHE-DE-LAURAGAIS
Maison à VILLEFRANCHE-DE-LAURAGAIS
Maison à VILLEFRANCHE-DE-LAURAGAIS
Maison à VILLEFRANCHE-DE-LAURAGAIS
Ce site est protégé par reCAPTCHA la Politique de confidentialité et les Conditions d’utilisation de Google s’appliquent.
Obtenir un prêt immobilier au meilleur taux ?

En poursuivant votre navigation sans modifier vos paramètres, vous acceptez l'utilisation de cookies susceptibles de réaliser des statistiques de visite. Cliquez ici pour plus d'informations