Bénéficiez des services de nos partenaires locaux soigneusement sélectionnés
pour vous accompagner dans votre parcours d'achat immobilier

Appartement 236m² à liguge

— Liguge 86240 —
160 000 €
236 m²
10 pièces
parking

Nos partenaires locaux
86240 LIGUGÉ – ENSEMBLE IMMOBILIER EN MONOPROPRIÉTÉ – LOCAL COMMERCIAL + MAISON – SURFACE TOTALE 236,5 M² – IMMEUBLE LIBRE DE TOUTE OCCUPATION – COUR INTÉRIEURE – ÉLECTRICITÉ REFAITE POUR LE LOCAL AVEC PRÉSENCE DE TRIPHASÉ.

****** Le local a été rénové en 2019 dans le cadre d'une activité professionnelle. ******

EffiCity, l'agence qui estime votre bien en ligne, vous propose, au cœur de Ligugé, un ensemble immobilier constitué d'un local commercial et d'une maison. La surface totale de l'immeuble est de 236,5 m². Anciennement, cet immeuble était constitué de deux maisons indépendantes. L'immeuble est vendu libre de toute occupation. Vous retrouverez également une cour intérieure permettant l'accès au local. L'électricité du local a été refaite il y a peu pour un projet de boulangerie.

L'ensemble immobilier est composé de la façon suivante :
Local commercial
- Surface de 131 m²
- Ballon d'eau chaude électrique
- Compteur d'eau général pour l'ensemble
- Tableau électrique avec présence du 380V
- Double vitrage & Simple vitrage pour la vitrine

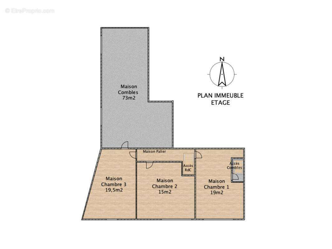
Maison
- Surface de 116 m² + Combles 73 m²
- 3 chambres
- Ballon d'eau chaude électrique
- Combles isolés
- Double vitrage

Ensemble immobilier non soumis au statut de copropriété, pas de syndic.
****** Bien non soumis au DPE ******

Idéalement situé dans Ligugé. À visiter rapidement.
Contactez LOUIS-EUGÈNE Morgan.
Les informations sur les risques auxquels ce bien est exposé sont disponibles sur le site Georisque : georisques. gouv. fr
Morgan Louis-Eugene - EI - est Agent Commercial mandataire en immobilier, immatriculé au Registre Spécial des Agents Commerciaux du Tribunal de Commerce de Poitiers sous le n°910697812.
Siège social du mandant : effiCity, 48 avenue de Villiers - 75017 PARIS - Société par Actions Simplifiée, société au capital de 132 373,05 euros, immatriculée au RCS Paris 497 617 746 et titulaire de la Carte professionnelle CPI 75[Coordonnées masquées]02 025 - CCI Paris IDF - Caisse de Garantie : GALIAN Assurances 89 rue de la Boétie 75008 Paris
Voir plus

Référence: 190332
Honoraires à la charge du vendeur.
Barème des honoraires

Prêt immobilier

Vous souhaitez connaître votre capacité d’emprunt et trouver le meilleur crédit immobilier ?
Réaliser une simulation gratuite

Appartement à LIGUGE
Appartement à LIGUGE
Appartement à LIGUGE
Appartement à LIGUGE
Appartement à LIGUGE
Appartement à LIGUGE
Appartement à LIGUGE
Appartement à LIGUGE
Appartement à LIGUGE
Appartement à LIGUGE
Appartement à LIGUGE
Appartement à LIGUGE
Appartement à LIGUGE
Appartement à LIGUGE
Appartement à LIGUGE
Appartement à LIGUGE
Appartement à LIGUGE
Appartement à LIGUGE
Appartement à LIGUGE
Ce site est protégé par reCAPTCHA la Politique de confidentialité et les Conditions d’utilisation de Google s’appliquent.
Obtenir un prêt immobilier au meilleur taux ?

En poursuivant votre navigation sans modifier vos paramètres, vous acceptez l'utilisation de cookies susceptibles de réaliser des statistiques de visite. Cliquez ici pour plus d'informations