Bénéficiez des services de nos partenaires locaux soigneusement sélectionnés
pour vous accompagner dans votre parcours d'achat immobilier

Superbe penthouse avec vue mer

— Cannes 06400 —
3 180 000 €
132 m²
4 pièces
parkingbalcon/terrasse

Nos partenaires locaux
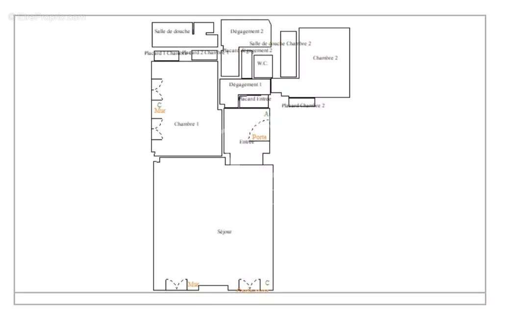
Dans un immeuble emblématique de style Art Déco, ce superbe penthouse occupe le dernier étage d’une adresse rare, en plein centre de Cannes, au cœur du quartier de la Banane. À seulement quelques pas de la Croisette et du Palais des Festivals, il offre un calme absolu, loin de l’effervescence citadine.

Ce bien de 131 m² a été entièrement repensé avec des prestations haut de gamme. Il dispose de trois suites confortables, d’un grand séjour lumineux avec cuisine ouverte, d’un espace buanderie discret et de toilettes séparées.

L’atout maître de cet appartement ? Une magnifique terrasse d’angle de 71 m², véritable prolongement de l’espace de vie, d’où l’on profite de vues spectaculaires sur la mer, le Suquet et les reliefs environnants.

Les larges baies vitrées inondent l’intérieur de lumière naturelle et renforcent cette sensation d’ouverture et de sérénité.

Ce bien rare sur le marché bénéficie en outre d’un stationnement privé, un véritable privilège en centre-ville.

Ce qu’on apprécie particulièrement :

- Les panoramas sur la Méditerranée et la vieille ville
- Le dernier étage et l’exposition idéale
- La vaste terrasse ensoleillée
- Le calme en plein centre
- La qualité de la rénovation et de l’immeuble
- Le confort du parking privé

Les informations sur les risques auxquels ce bien est exposé sont disponibles sur le site Géorisques : georisques.gouv.fr
Voir plus

Référence: 86135872
Barème des honoraires
DPE
A
B
C
D
E
F
G
GES
A
B
C
D
E
F
G

Prêt immobilier

Vous souhaitez connaître votre capacité d’emprunt et trouver le meilleur crédit immobilier ?
Réaliser une simulation gratuite

Appartement à CANNES
Appartement à CANNES
Appartement à CANNES
Appartement à CANNES
Appartement à CANNES
Appartement à CANNES
Appartement à CANNES
Appartement à CANNES
Appartement à CANNES
Appartement à CANNES
Appartement à CANNES
Appartement à CANNES
Appartement à CANNES
Appartement à CANNES
Appartement à CANNES
Appartement à CANNES
Appartement à CANNES
Appartement à CANNES
Appartement à CANNES
Appartement à CANNES
Ce site est protégé par reCAPTCHA la Politique de confidentialité et les Conditions d’utilisation de Google s’appliquent.
Obtenir un prêt immobilier au meilleur taux ?

En poursuivant votre navigation sans modifier vos paramètres, vous acceptez l'utilisation de cookies susceptibles de réaliser des statistiques de visite. Cliquez ici pour plus d'informations