Bénéficiez des services de nos partenaires locaux soigneusement sélectionnés
pour vous accompagner dans votre parcours d'achat immobilier

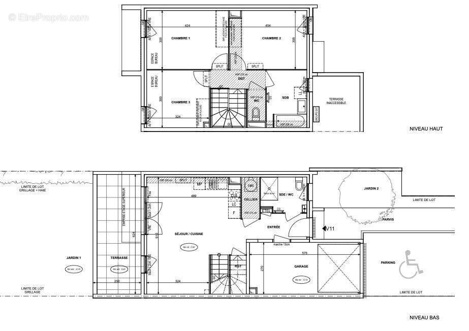
Maison 4 pièces - fréjus

— Frejus 83600 —
474 000 €
83 m²
4 pièces
parkingpiscine

Nos partenaires locaux
Fréjus, ville dynamique du département du Var, attire par son patrimoine historique, ses plages de sable fin, son port de plaisance et son art de vivre typiquement méditerranéen. Elle offre un cadre de vie privilégié, agréable en toute saison. Votre agence Abry Immobilier vous propose un bien à la vente situé à seulement 10 minutes du centre-ville de Fréjus et des plages de la Côte d'Azur. Idéalement localisé entre la zone commerciale de Puget-sur-Argens et le centre de Fréjus, ce quartier résidentiel en plein essor bénéficie d'un environnement calme tout en étant proche de toutes les commodités : commerces, écoles, axes routiers et services du quotidien. 43 maisons mitoyennes au design contemporain, nichées dans un domaine clos et sécurisé avec piscine. Chaque maison de 3 ou 4 pièces comprise entre 70 et 84m2, dispose d'un garage, d'une place de stationnement et d'un jardin privatif, assurant un confort de vie optimal pour les familles comme pour les couples. Ce bien représente une opportunité idéale, que ce soit pour une résidence principale, une résidence secondaire ou un investissement locatif sur la Côte d'Azur. Le lot présenté (V11), est une charmante maison de 4 pièces d'une superficie de 83 m², répartie sur deux niveaux. Elle est exposée Ouest, ce qui lui garantit une belle luminosité naturelle en fin de journée. Pour plus d'informations ou pour recevoir la documentation complète, contactez dès maintenant l'agence ABRY au [Coordonnées masquées]
Voir plus

Référence: 1789
Barème des honoraires

Prêt immobilier

Vous souhaitez connaître votre capacité d’emprunt et trouver le meilleur crédit immobilier ?
Réaliser une simulation gratuite

Maison à FREJUS
Maison à FREJUS
Maison à FREJUS
Maison à FREJUS
Ce site est protégé par reCAPTCHA la Politique de confidentialité et les Conditions d’utilisation de Google s’appliquent.
Obtenir un prêt immobilier au meilleur taux ?

En poursuivant votre navigation sans modifier vos paramètres, vous acceptez l'utilisation de cookies susceptibles de réaliser des statistiques de visite. Cliquez ici pour plus d'informations