Bénéficiez des services de nos partenaires locaux soigneusement sélectionnés
pour vous accompagner dans votre parcours d'achat immobilier

Maison neuve type t4 avec jardin

— Bellegarde-Sur-Valserine 01200 —
350 000 €
86 m² / 301 m²
4 pièces
parkingjardin

Nos partenaires locaux
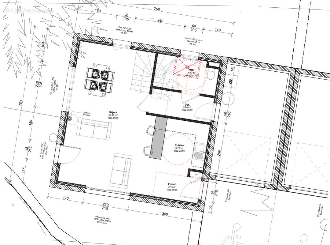
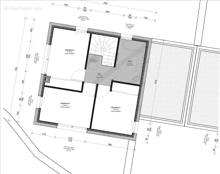
A Valserhône (01200), secteur Châtillon-en-Michaille, découvrez un nouveau programme de 11 villas individuelles de type T4, allant de 86 m² à 110 m², sur des parcelles de 290 m² à 911 m². Permis de construire purgé de tout recours. travaux en cours. Prestations complètes : carrelage grand format, faience toute hauteur dans les pièces d'eau, volets roulants électriques, peinture. Rendus et plans disponibles. exemple : Lot B, villa T4 de 86 m² sur une parcelle de 301 m². Dossier complet sur demande. Non soumis au DPE. Livraison prévue pour 1er semestre 2027
Voir plus

Prêt immobilier

Vous souhaitez connaître votre capacité d’emprunt et trouver le meilleur crédit immobilier ?
Réaliser une simulation gratuite

Maison à BELLEGARDE-SUR-VALSERINE
Maison à BELLEGARDE-SUR-VALSERINE
Maison à BELLEGARDE-SUR-VALSERINE
Ce site est protégé par reCAPTCHA la Politique de confidentialité et les Conditions d’utilisation de Google s’appliquent.
Obtenir un prêt immobilier au meilleur taux ?

En poursuivant votre navigation sans modifier vos paramètres, vous acceptez l'utilisation de cookies susceptibles de réaliser des statistiques de visite. Cliquez ici pour plus d'informations